237 m² große Bürofläche im Unternehmer-Park Duisburg l ausreichend Stellplätze vorhanden

  • 7,00€
  • 7,00€ pro m²
47198 Duisburg
Zu Vermieten
237 m² große Bürofläche im Unternehmer-Park Duisburg l ausreichend Stellplätze vorhanden
47198 Duisburg
  • 7,00€
  • 7,00€ pro m²

Details

Aktualisiert am Juni 13, 2025 beim 4:43 p.m.
  • Immobilien-ID:311/E1
  • Preis: 7,00€
  • Gesamtfläche des Objekts:237 m²
  • Baujahr:1990
  • Art der Immobilie:Büroflächen
  • Eigenschaftenstatus:Zu Vermieten

Beschreibung

Das moderne Bürogebäude besticht durch seine Ecklage und dessen hervorragende Werbemöglichkeiten. Vor dem Objekt stehen ausreichende Parkflächen zur Anmietung bereit.

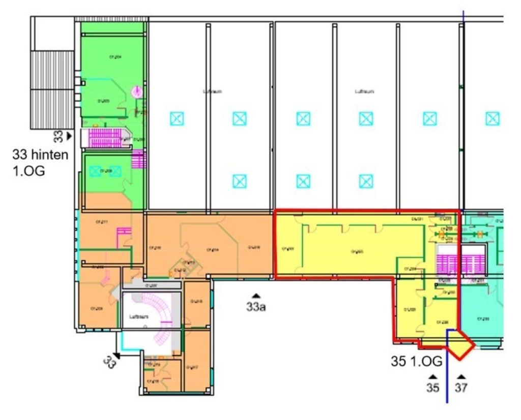
Derzeit stehen folgende Flächen zur Disposition:

Bauteil A:

1. OG (35): ca. 237 m²
EG (45): ca. 463 m²
1. OG (45): ca. 713 m²

Die Büroimmobilie befindet sich im Duisburger Stadtteil im bekannten Unternehmer Park. Eine direkte Anbindung an die A40 ist innerhalb weniger Fahrminuten gegeben.

Bedeutende Unternehmen in der Büromarktzone: JMS Investments, Firma Markus Heucher, allmineral Aufbereitungstechnik

Hotels der Umgebung: Hotel zum Bügeleisen, Hotel Rheingarten

• Bodenbelag: Teppichboden
• Verkabelung: CAT-5 Verkabelung vom Vormieter
• Kabelführung: Fensterbankkabelkanal
• Beleuchtung: Deckenleuchten
• Teeküche: voll ausgestattet
• Barrierearm: Ja, ebenerdiger Zugang
• Heizungsart: Fernwärme
• Kühlung /Lüftung: nach Vereinbarung

Die Ausstattung kann kann bei Bedarf angepasst werden!

Es gelten ausschließlich unsere AGB (www.ruhr-real.de/agb). Wir möchten Sie darauf hinweisen, dass die Angaben ausschließlich auf den uns vom Eigentümer übermittelten Unterlagen und Informationen basieren. Für Richtigkeit und Vollständigkeit übernehmen wir keine Gewähr. Zwischenvermietung vorbehalten.

Energieeffizienz

  • Energieausweis-Art: Bedarf
  • Primärenergieträger: Fernwärme
  • Stromverbrauchskennwert: 95 kWh/(m²*a)
  • Energieausweis-Jahrgang: ab Mai 2014

  • Stadt Duisburg
  • PLZ 47198
  • Stadtteil Alt-Homberg
  • Land Deutschland

Grundrisse

image

Beschreibung:

image

Beschreibung:

image

Beschreibung:

Compare listings

Vergleichen
Samuel Kruse
  • Samuel Kruse