Exklusiv über RUHR REAL: Büroräume in zentraler Lage von Bochum | hervorragende Anbindung

  • 12,90€
  • 11,50€ pro m²
44787 Bochum
Zu Vermieten
Exklusiv über RUHR REAL: Büroräume in zentraler Lage von Bochum | hervorragende Anbindung
44787 Bochum
  • 12,90€
  • 11,50€ pro m²

Details

Aktualisiert am September 25, 2025 beim 3:14 p.m.
  • Immobilien-ID:167/E2
  • Preis: 12,90€
  • Gesamtfläche des Objekts:344 m²
  • Art der Immobilie:Büroflächen
  • Eigenschaftenstatus:Zu Vermieten

Beschreibung

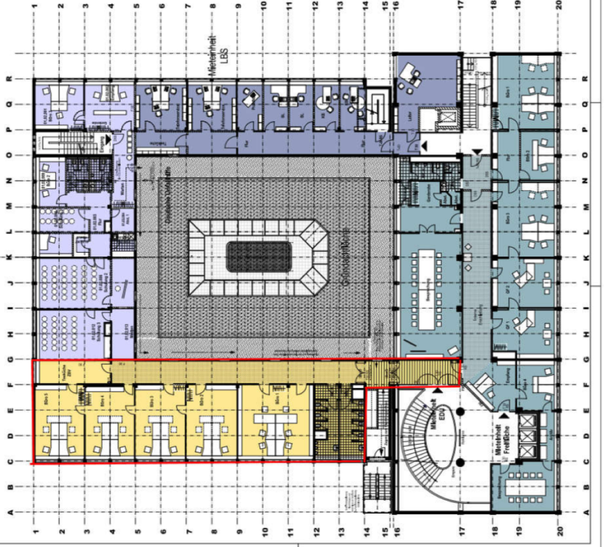
Bei der angebotenen Liegenschaft handelt es sich um eine gepflegte Büroimmobilie. Die vakante Fläche befindet sich im ersten Obergeschoss und kann sowohl über ein Treppenhaus, als auch barrierefrei mithilfe eines Personenaufzuges erreicht werden.
Die Büroräume sind teilweise klimatisiert und verfügen über eine voll ausgestattete Teeküche, sowie einen außenliegenden, elektrischen Sonnenschutz.

Derzeit steht die folgende Fläche zur Disposition:

2. OG: 310 m²

Das Objekt befindet sich in der Bochumer Innenstadt, direkt gegenüber vom Hauptbahnhof. Die Autobahn A40 ist in wenigen Fahrminuten zu erreichen. Zahlreiche Unternehmen der Gastronomie und Handelsbranche sorgen für eine optimale Nahversorgung. Aufgrund der Nähe zum Hauptbahnhof ist eine optimale Anbindung an den ÖPNV gewährleistet.

Bedeutende Unternehmen in der Büromarktzone: IHK Mittleres Ruhrgebiet, Sparkasse Bochum, ARAL BP, Stadtwerke Bochum, KONE Aufzüge

Hotels der Umgebung: Mercure Hotel, acora Hotel, ibis styles, Hotel Claudius

• Bodenbelag: Teppichboden
• EDV-Verkabelung: CAT-7 Verkabelung
• Kabelführung: Fensterbankkabelkanal
• Sonnenschutz: außenliegend, elektrisch
• Beleuchtung: Rasterleuchten
• Aufzug: Personenaufzug
• Teeküche: voll ausgestattet

Es gelten ausschließlich unsere AGB (www.ruhr-real.de/agb). Wir möchten Sie darauf hinweisen, dass die Angaben ausschließlich auf den uns vom Eigentümer übermittelten Unterlagen und Informationen basieren. Für Richtigkeit und Vollständigkeit übernehmen wir keine Gewähr. Zwischenvermietung vorbehalten.

Energieeffizienz

  • Energieausweis-Jahrgang: nicht verfügbar

  • Stadt Bochum
  • PLZ 44787
  • Land Deutschland

Grundrisse

image

Beschreibung:

Compare listings

Vergleichen
Frederic Jeschke
  • Frederic Jeschke