Moderne Büroeinheit nähe HBF | Ausbau nach Mieterwunsch | Provisionsfrei

  • 9,00€
45879 Gelsenkirchen
Zu Vermieten
Moderne Büroeinheit nähe HBF | Ausbau nach Mieterwunsch | Provisionsfrei
45879 Gelsenkirchen
  • 9,00€

Details

Aktualisiert am September 26, 2025 beim 3:11 p.m.
  • Immobilien-ID:582/E2
  • Preis: 9,00€
  • Gesamtfläche des Objekts:252 m²
  • Baujahr:2009
  • Art der Immobilie:Büroflächen
  • Eigenschaftenstatus:Zu Vermieten

Beschreibung

Das moderne Büro und Geschäftshaus verfügt über 5 Etagen, welche alle mit einem Personenaufzug barrierearm erschlossen sind. Die aktuelle Raumaufteilung besteht im wesentlichen aus einem Großraumbüro und mehreren Einzelbüros.
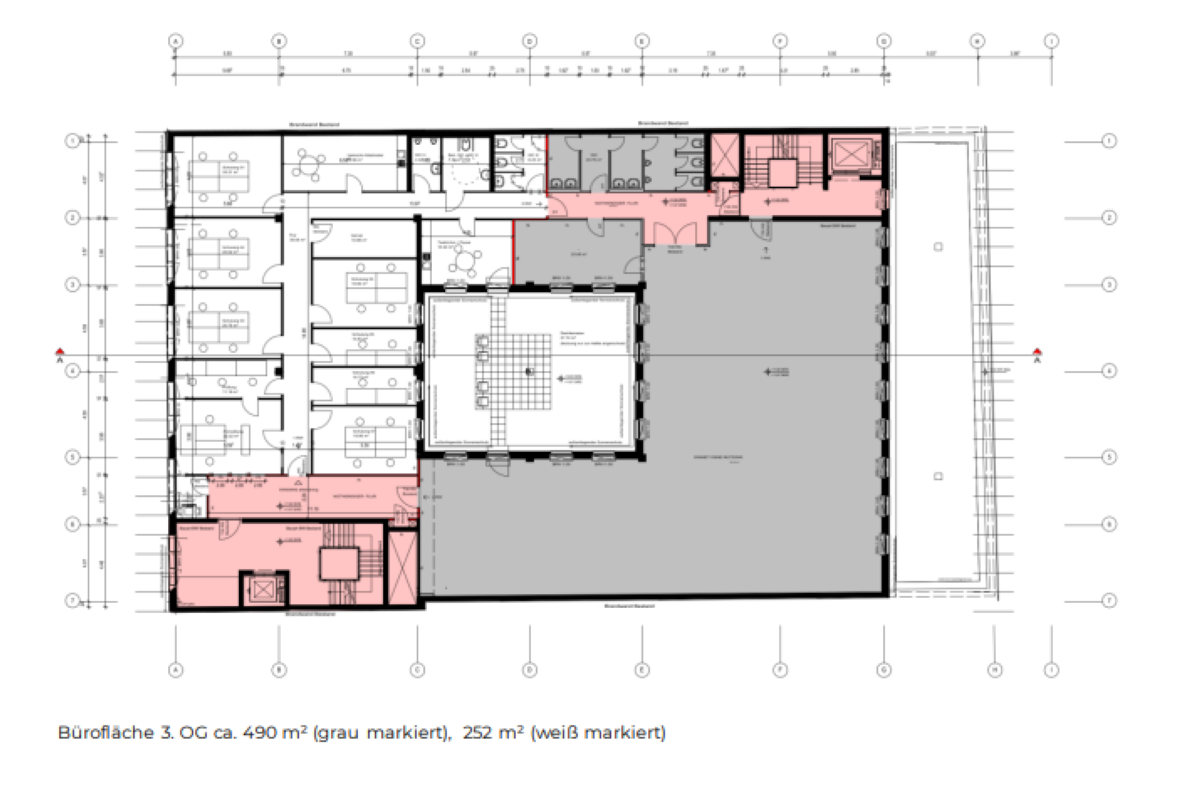
Die Bürofläche im dritten Obergeschoss kann am Stück oder bei Bedarf auch geteilt angemietet werden.

Eine etwaige angegebene Ausstattung kann nach Mieterbedarf angepasst werden.

Folgende Flächen stehen derzeit zur Disposition:

3. OG: 252 m²
3. OG: 490 m²

Die Liegenschaft befindet sich in zentraler Innenstadtlage, wenige Minuten von dem Gelsenkirchener Hauptbahnhof entfernt. Die Gewerbeimmobilie zeichnet sich durch eine optimale Anbindung an den öffentlichen Personennahverkehr aus. Zahlreiche Händler des täglichen Bedarfs und Gastronomen gewährleisten eine ideale Nahversorgung.

Hotels in der Umgebung: Ibis Styles, Maritim Hotel

• Bodenbelag: Teppich
• Teeküche: voll ausgestattet
• Aufzug: Personenaufzug + Lastenaufzug
• Barrierearm: ebenerdiger Zugang
• Beleuchtung: Rasterdeckenleuchten
• Heizungsart: Fernheizung
• Klima/Lüftung: Deckenkühlkassetten / Wandgeräte

Die Ausstattung kann bei Bedarf angepasst werden!

Es gelten ausschließlich unsere AGB (www.ruhr-real.de/agb). Wir möchten Sie darauf hinweisen, dass die Angaben ausschließlich auf den uns vom Eigentümer übermittelten Unterlagen und Informationen basieren. Für Richtigkeit und Vollständigkeit übernehmen wir keine Gewähr. Zwischenvermietung vorbehalte

Energieeffizienz

  • Energieausweis-Art: Bedarf
  • Primärenergieträger: Fernwärme
  • Baujahr (Energieausweis): 2009
  • Energieausweis-Jahrgang: ab Mai 2014

  • Stadt Gelsenkirchen
  • PLZ 45879
  • Land Deutschland

Grundrisse

image

Beschreibung:

Compare listings

Vergleichen
Frederic Jeschke
  • Frederic Jeschke