Die hier angebotene Liegenschaft besticht durch eine einzigartige Bauweise, die viel Raum für Gestaltungsmöglichkeit offen lässt. Durch die großzügigen Fensterfronten gelangt viel Tageslicht in die Flächen. Auf Grund der Bauweise eignet sich das Objekt optimal für Ausstellungen oder Büroarbeitsplätze.
Sofern Sie auf der Suche nach einem Kaufobjekt sind, steht diese Liegenschaft ebenfalls zum Verkauf.
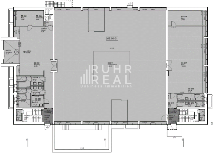
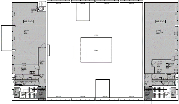
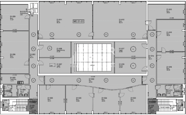
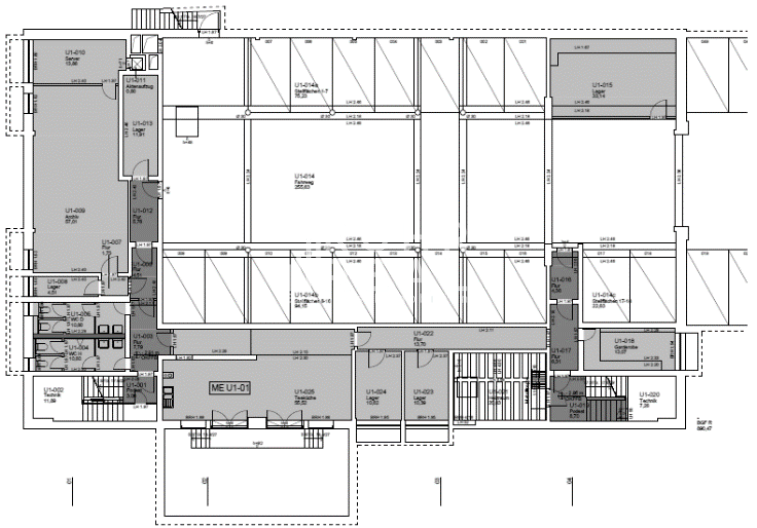
Folge Flächen sind verfügbar:
UG: ca. 257 m² Lagerfläche
EG: ca. 843 m²
ZG: ca. 302 m²
OG: ca. 779 m²
Gesamt:
Lager: ca. 257 m²
Büro: ca. 1.924 m²
Stellplätze: 17 Stk.
Der Standort befindet sich in zentraler Lage Leverkusens mit direkter Anbindung an den öffentlichen Nahverkehr. Bus- und S-Bahnhaltestellen liegen nur wenige Gehminuten entfernt und ermöglichen eine schnelle Verbindung in die umliegenden Stadtteile sowie nach Köln und Düsseldorf. Der Hauptbahnhof ist fußläufig erreichbar, der Flughafen Köln/Bonn in etwa 30 Minuten und der Flughafen Düsseldorf in rund 40 Minuten mit dem Auto. Die nahegelegenen Autobahnen A1, A3 und A59 sorgen für eine ausgezeichnete überregionale Anbindung. In unmittelbarer Umgebung finden sich zahlreiche gastronomische Angebote, Einzelhandelsgeschäfte und Dienstleister.
großzügiger Eingangsbereich
• große Fensterfronten
• Lichtkuppeln
• moderne Außengestaltung
• Tiefgarage
• hohe Decken
Es gelten ausschließlich unsere AGB (www.ruhr-real.de/agb). Die Halle ist nicht für Veranstaltungsräume geeignet. Wir möchten Sie darauf hinweisen, dass die Angaben ausschließlich auf den uns vom Eigentümer übermittelten Unterlagen und Informationen basieren. Für Richtigkeit und Vollständigkeit übernehmen wir keine Gewähr. Zwischenvermietung vorbehalten.
Compare listings
Vergleichen