Schulungsanbieter aufgepasst! | flexible Schulungsfläche in der Innenstadt | RUHR REAL
- 0
- 0
Details
Updated on September 26, 2025 at 3:11 p.m.-
Immobilien-ID 821/E5
-
Preis Auf Anfrage
-
Gesamtfläche des Objekts 859 m²
-
Baujahr 1989
-
Art der Immobilie Büroflächen
-
Eigenschaftenstatus Zu Vermieten
-
Nebenkosten Auf Anfrage
Beschreibung
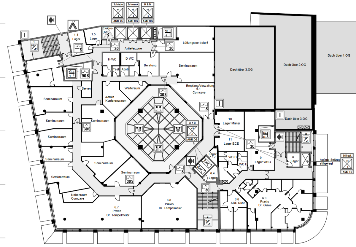
Das Geschäftsgebäude “City Point” wurde im Jahre 1989 gebaut und bildet eine der bekanntesten Adressen in der Bochumer Innenstadt. Die Büroeinheiten befinden sich zum jetzigen Zeitpunkt im Rohbauzustand und werden Mieterwunsch entsprechend ausgebaut. Dem potentiellen Mieter bietet dies individuelle Mitgestaltungsmöglichkeiten. Alle Etagen sind über einen Personenaufzug erschlossen.
Zur Zeit stehen folgende Flächen zur Disposition:
1. OG: 460 m²
2.OG: 487 m²
2. OG: 326 m²
4. OG: 767 m² Schulungsfläche
Das Objekt befindet sich in der Bochumer Innenstadt, in direkter Nähe zum Hauptbahnhof. Die Autobahn A40 ist in 5 Minuten zu erreichen. Der Flughafen Dortmund liegt nur 25 Fahrminuten entfernt. Der Kortumpark befindet sich auf der gegenüberliegenden Seite des Gebäudes und sorgt für Naherholung in der Mittagspause.
Bedeutende Unternehmen in der Büromarktzone: IHK Mittleres Ruhrgebiet, Sparkasse Bochum, ARAL BP, Stadtwerke Bochum, KONE Aufzüge
Hotels in der Umgebung: Mercure Hotel, acora Hotel, ibis styles, Hotel Claudius
Bodenbelag: Teppichboden
EDV-Verkabelung: KAT-7 vom Vormieter
Kabelführung: Fensterbankkabelkanäle
Sonnenschutz: innenliegend, manuell
Teeküche: Anschlüsse vorhanden
Beleuchtung: LED
Es gelten ausschließlich unsere AGB (www.ruhr-real.de/agb). Wir möchten Sie darauf hinweisen, dass die Angaben ausschließlich auf den uns vom Eigentümer übermittelten Unterlagen und Informationen basieren. Für Richtigkeit und Vollständigkeit übernehmen wir keine Gewähr. Zwischenvermietung vorbehalten.
Adresse
Auf Google Maps öffnen-
Stadt: Bochum
-
PLZ: 44787
-
Land: Deutschland










