825 m² attraktive Bürofläche mit flexibler Ausstattung | ausgezeichnete Verkehrsinfrastruktur
- 0
- 0
Details
Updated on März 17, 2026 at 6:04 p.m.-
Immobilien-ID 4721/E5
-
Preis Auf Anfrage
-
Gesamtfläche des Objekts 290 m²
-
Baujahr 1989
-
Art der Immobilie Büroflächen
-
Eigenschaftenstatus Zu Vermieten
-
Nebenkosten Auf Anfrage
Beschreibung
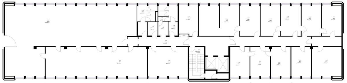
Die zuletzt im Jahr 2015 modernisierte Immobilie bietet insgesamt 5.353 m² vakante Bürofläche. Neben Teppichboden sind die Räumlichkeiten derzeit mit Bodentanks und Rasterdeckenleuchten ausgestattet und können nach Vereinbarung flexibel an die Wünsche des Nutzers angepasst werden. Vom großzügigen Empfangsbereich führt ein Treppenhaus sowie zwei Personenaufzüge zu den Flächen in den OG. Darüber hinaus steht auf dem Gelände eine Vielzahl an Stellplätzen zur Verfügung.
Zur Zeit stehen folgende Flächen zur Disposition:
Büro:
EG: ca. 942 m²
1. OG: ca. 726 m²
2. OG: ca. 735 m²
3. OG: ca. 725 m²
Archivflächen:
UG: ca. 621 m²
(Quergebäude) Büro:
EG: ca. 825 m², teilbar ab ca. 290 m²
1. OG: ca. 1.400 m²
Die angebotene Liegenschaft ist im Kröger Gewerbegebiet situiert und bietet eine sehr gute Verkehrsanbindung. Über die B 224 ist die A 42 in 6 Fahrminuten erreicht und auch der ÖPNV ist durch naheliegende Bus- und Stadtbahnhaltestellen bestens angebunden.
Der internationale Düsseldorfer Flughafen liegt circa 30 Fahrminuten entfernt und der Essener HBF ist in weniger als 10 Fahrminuten erreicht.
Eine gute Nahversorgung wird u.a. durch den gastronomischen Nachbarn XIAO sowie verschiedene Einkaufsmöglichkeiten des täglichen Bedarfs sichergestellt.
• Bodenbelag: Teppichboden
• Sonnenschutz: nach Vereinbarung/ teilw. vorhanden
• Beleuchtung: Rasterdeckenleuchten
• Kühlung: optional möglich
• Verkabelung: Mietersache
• Verkabelungsort: Bodentanks
• Aufzug: Personenaufzug
• Teeküche: voll ausgestattet
• Heizungsart: Fernwärme
Die Ausstattung kann bei Bedarf flexibel an die Nutzerwünsche angepasst werden!
Es gelten ausschließlich unsere AGB (www.ruhr-real.de/agb). Wir möchten Sie darauf hinweisen, dass die Angaben ausschließlich auf den uns vom Eigentümer übermittelten Unterlagen und Informationen basieren. Für Richtigkeit und Vollständigkeit übernehmen wir keine Gewähr. Zwischenvermietung vorbehalten.
Adresse
Auf Google Maps öffnen-
Stadt: Essen
-
PLZ: 45141
-
Land: Deutschland








