922 m² im beliebten Europark in Krefeld | großzügige Räumlichkeiten | Ausstattung nach Mieterwunsch
- 8,50€
- 8,50€ pro m²
- 8,50€
- 8,50€ pro m²
Details
Updated on April 2, 2026 at 3:59 p.m.-
Immobilien-ID 1071/E3
-
Preis 8,50€ / m²
-
Gesamtfläche des Objekts 922 m²
-
Baujahr 1995
-
Art der Immobilie Büroflächen
-
Eigenschaftenstatus Zu Vermieten
-
Nebenkosten Auf Anfrage
Beschreibung
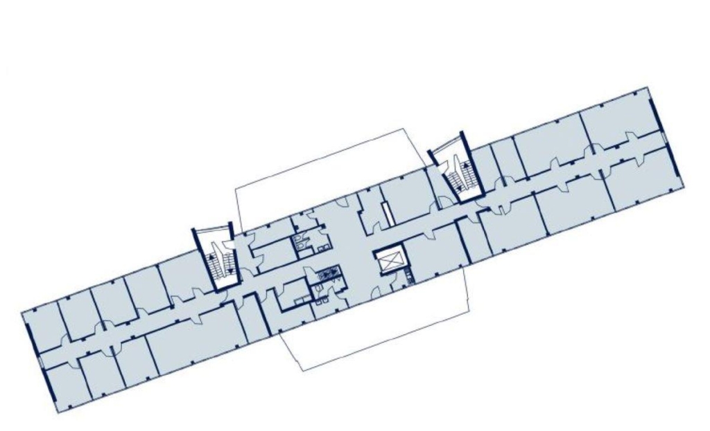
Die Gewerbeimmobilie im Europark Fichtenhain wurde im Jahre 1995 erbaut. Die Fensterfassade des Gebäudes sorgt für ausreichend Licht in den Büroflächen. Die Etagen sind über ein Treppenhaus, sowie über einen Personenaufzug problemlos zu erschließen. Alle Büroflächen sind mit einem Teppichboden ausgestattet und verfügen über eine CAT-6 Verkabelung. Das Objekt bietet dem Nutzer eine individuelle Grundrissgestaltung. Nach der Modernisierung verfügen einige Büroetagen über Glastrennwände. Ferner stehen dem Nutzer rund 161 Stellplätze im Außenbereich zur Verfügung.
Zur Zeit stehen die folgenden Flächen zur Verfügung:
EG: 922 m²
1. OG: 922 m²
2. OG: 922 m²
3. OG: 922 m²
4. OG: 922 m²
Die Büroimmobilie befindet sich im beliebten Gewerbegebiet Fischeln im Krefelder Norden. Das Gewerbegebiet zählt zu den nachgefragtesten Büromarktlagen in Krefeld und Umgebung. Der Düsseldorfer Flughafen sowie das Messegelände Düsseldorf können in ca. 10 Minuten erreicht werden.
Die Autobahn A44 Krefeld-Fichtenhain (AS 25) ist direkt an das Gewerbegebiet angeschlossen.
Weitere wesentliche Verkehrswege des Rhein-Ruhrgebiets wie die A3, A40 und A57 sind ebenfalls angebunden.
Über die Buslinie 47 ist das Objekt direkt erreichbar. Krefeld liegt ca. 25 Autokilometer nordwestlich von Düsseldorf und etwa 30 km von der niederländischen Stadt Venlo entfernt.
Bedeutende Unternehmen in der Büromarktzone: Canon, Hitachi, Okuma, Microtrac, DEVK Versicherungen
Hotels der Umgebung: Hotel Bayrischer Hof, ibos Hotel, B&B Hotel
• Sonnenschutz: außenliegend, elektrisch
• Bodenbelag: Teppichboden
• Verkabelung: vom Vormieter
• Beleuchtung: Pendelleuchten
• Verkabelungsort: Doppelboden
• Fenster: Isolierverglasung
Es gelten ausschließlich unsere AGB (www.ruhr-real.de/agb). Wir möchten Sie darauf hinweisen, dass die Angaben ausschließlich auf den uns vom Eigentümer übermittelten Unterlagen und Informationen basieren. Für Richtigkeit und Vollständigkeit übernehmen wir keine Gewähr. Zwischenvermietung vorbehalten.
Adresse
Auf Google Maps öffnen-
Stadt: Krefeld
-
PLZ: 47807
-
Land: Deutschland








