EXKLUSIV über RUHR REAL | Fachhandel/Showroom/Büro/Lager | ERSTBEZUG Q1/2027
- 0
- 0
Details
Updated on April 8, 2026 at 3:10 p.m.-
Immobilien-ID 3743/E6
-
Preis Auf Anfrage
-
Gesamtfläche des Objekts 771 m²
-
Baujahr 2027
-
Art der Immobilie Lager- und Produktionsflächen
-
Eigenschaftenstatus Zu Vermieten
-
Nebenkosten Auf Anfrage
Beschreibung
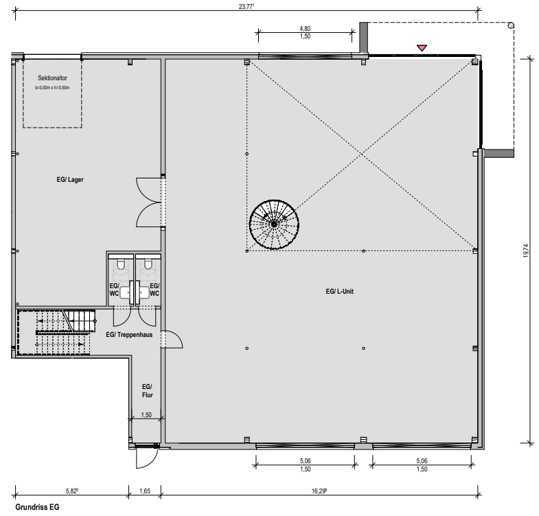
Diese moderne Gewerbeeinheit mit einer Gesamtfläche von ca. 771,97 m² bietet vielseitige Nutzungsmöglichkeiten für Showroom, Fachhandel oder Büro und ist unterteilt in eine Verkaufsfläche mit Galerie im Obergeschoss sowie einen Lagerbereich . Die Fläche befindet sich in einem hochwertigen Neubau und kann individuell nach Mieterwunsch gestaltet werden. Die lichte Deckenhöhe variiert zwischen ca. 3,54 m und 6,63 m (UKB) und schafft ein großzügiges, offenes Raumgefühl – ideal zur Präsentation von Produkten oder für repräsentative Arbeitsbereiche. Die Bodentraglast im Erdgeschoss beträgt 5 t/m² und ermöglicht somit auch den Einsatz schwerer Geräte oder Waren. Zur Ausstattung gehören moderne WC-Anlagen im Erdgeschoss sowie eine Teeküche, die den täglichen Arbeitskomfort unterstützt. Für Mitarbeiter und Besucher stehen bis zu 14 Stellplätze direkt am Objekt zur Verfügung. Diese Einheit überzeugt durch ihre flexible Raumaufteilung, moderne Ausstattung und ausgezeichnete Erreichbarkeit – perfekt geeignet für Unternehmen, die Wert auf Funktionalität und repräsentative Flächen legen.
Das Objekt befindet sich im Norden Oberhausens. Durch den in ca. 15 PKW-Fahrminuten erreichbaren Hauptbahnhof besteht eine sehr gute Anbindung an das öffentliche Verkehrsnetz, eine Bushaltestelle befindet sich direkt vor dem Gebäude. Mittels der nahe gelegenen Autobahnen A3, A40 und A42 ist das gesamte Ruhrgebiet in Ost-West-Richtung innerhalb einer halben Stunde erreichbar. Der Flughafen Düsseldorf ist nur ca. 32 Minuten mit dem PKW entfernt. Viele Restaurants sowie eine S-Bahn-Station sind in wenigen Gehminuten schnell erreicht.
• hochwertige Holzbauweise mit Holzfassade
• Eingangsbereich mit Glasfassade für maximale Sichtbarkeit
• ebenerdiges Sektionaltor mit 3,00 m Breite und 3,50 m Höhe
• LED-Deckenleuchten
• Photovoltaikanlage mit Mieterstrommodell
• Wärmepumpe mit Umluftgeräten für Heizung und Kühlung
• mögliche Bürofläche/Sozialraum im OG
• WC-Anlage für Besucher und Personal separat möglich
• Ladepunkte mit 22 kW für die Mieter
• Smarte Türschlösser, Kameraüberwachung, Zaun- und Toranlage
Es gelten ausschließlich unsere AGB (www.ruhr-real.de/agb). Da der Eigentümer ausschließlich Lager/Logistik, Produktion und Light Industrial als Nutzung wünscht, bitten wir Sie zu berücksichtigen, dass Anfragen zu folgenden Nutzungen nicht bearbeitet werden können: Veranstaltungen/Events, Gastronomie/Vergnügungsstätten, religiöse Einrichtungen sowie Sport- und Spielstätten. Wir möchten Sie darauf hinweisen, dass die Angaben ausschließlich auf den uns vom Eigentümer übermittelten Unterlagen und Informationen basieren. Für Richtigkeit und Vollständigkeit übernehmen wir keine Gewähr. Zwischenvermietung vorbehalten.
Adresse
Auf Google Maps öffnen-
Stadt: Oberhausen
-
PLZ: 46119
-
Land: Deutschland
- Christopher Schürk







