Exklusiv: Umfassende Revitalisierung in Oberhausen | Stellplätze | repräsentative Büroflächen
  • 8,00€

Details

Updated on April 11, 2025 at 4:36 p.m.
  • Immobilien-ID 3373/G1/E6
  • Preis 8,00€ / m²
  • Gesamtfläche des Objekts 550 m²
  • Art der Immobilie Büroflächen
  • Eigenschaftenstatus Zu Vermieten
  • Nebenkosten Auf Anfrage

Beschreibung

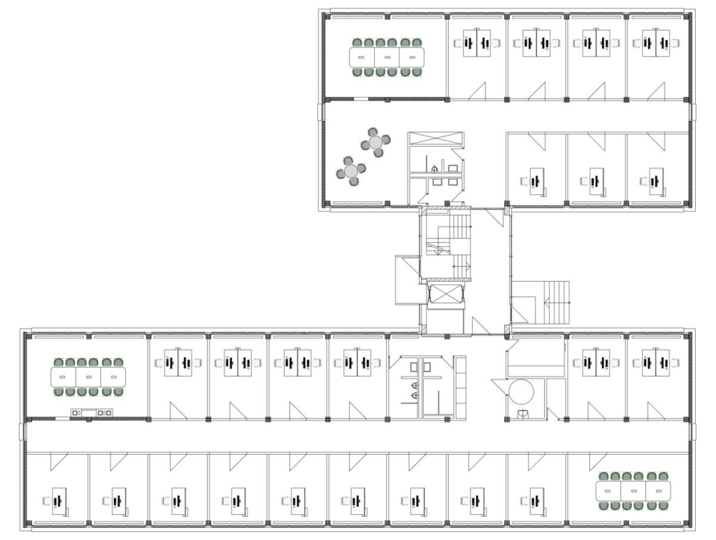
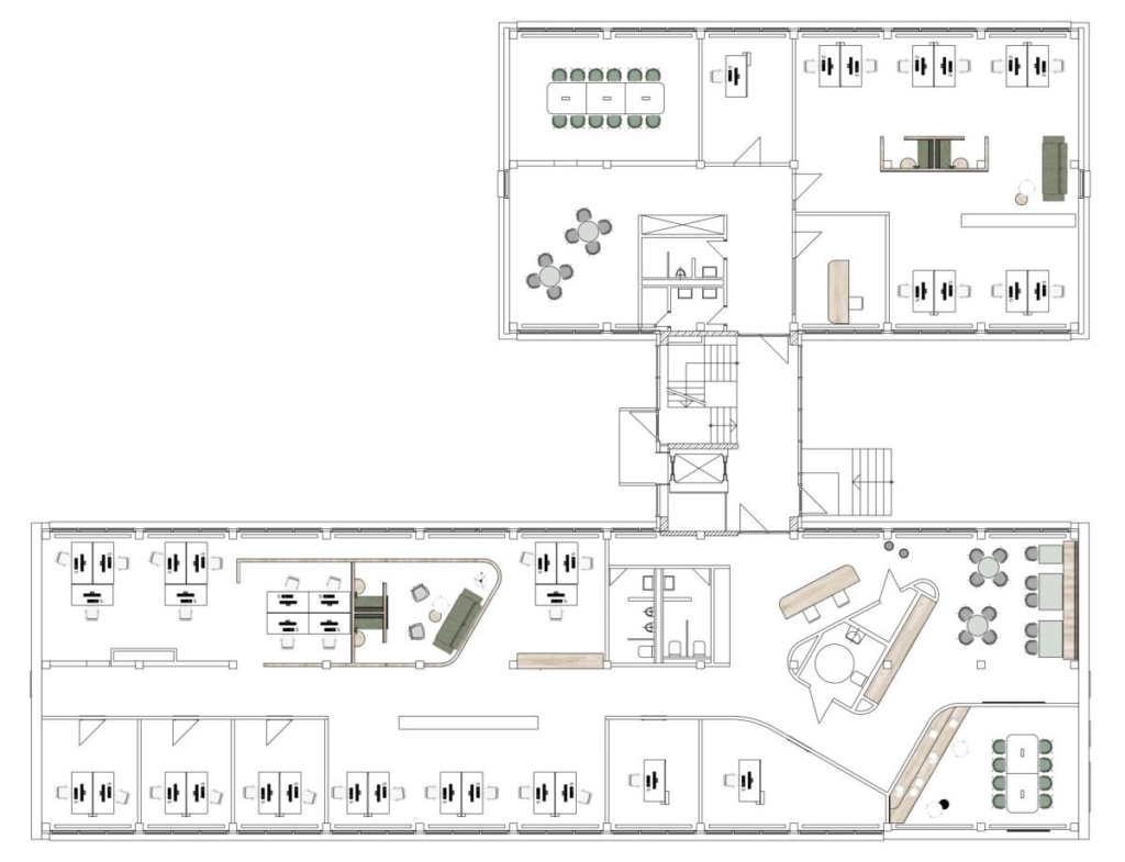
Die angebotene Liegenschaft setzt sich aus einem vierteiligen Gebäudekomplex zusammen, bestehend aus einem Bürogebäude, Lagerhallen und Werkstätten. Die Büroflächen befinden sich in einem, gepflegten Allgemeinzustand, verfügen über einen flexiblen Grundriss und sind durch die vielen Fenster lichtdurchflutet. Zahlreiche Parkmöglichkeiten mit etwa 90 Außenstellplätzen befinden sich direkt am Objekt.

Derzeit stehen folgende Flächen zur Disposition:

EG: 737 m²
1. OG: 713 m²
2. OG: 550 m²

Das Objekt befindet sich in beliebter Lage in unmittelbarer Umgebung des Westfield CentrOs in Oberhausen. Innerhalb weniger Fahrminuten können die Autobahnen A 42 und A 516 sowie die Bundesstraße B 223 erreicht werden. Darüber hinaus befinden sich Bus- und Bahnhaltestellen in direkter Nähe, sodass eine hervorragende Anbindung gewährleistet wird. Die Nahversorgung wird durch Geschäfte des täglichen Bedarfs und gastronomische Angebote wie XIAO, L’Osteria oder The Ash erzielt. Ferner kann das CentrO in wenigen Minuten fußläufig erreicht werden. Der Düsseldorfer Flughafen befindet sich knapp eine halbe Stunde von dem Objekt entfernt.

Bedeutende Unternehmen in der Büromarktzone: Barmer, Sparkasse, Air Liquide Deutschland, MAN

Hotels der Umgebung: Mercure Hotel am Centro, B&B Hotel, Tryp Centro Oberhausen

Bürogebäude:
• Bodenbelag: nach Mieterwunsch
• Beleuchtung: indirekte Deckenbeleuchtung
• Sonnenschutz: außenliegend, elektrisch
• Verkabelung: nach Vereinbarung
• Personenaufzug

Die Ausstattung kann flexibel modifiziert werden!

Es gelten ausschließlich unsere AGB (www.ruhr-real.de/agb). Da der Eigentümer ausschließlich Lager/Logistik, Produktion und Light Industrial als Nutzung wünscht, bitten wir Sie zu berücksichtigen, dass Anfragen zu folgenden Nutzungen nicht bearbeitet werden können: Veranstaltungen/Events, Gastronomie/Vergnügungsstätten, religiöse Einrichtungen sowie Sport- und Spielstätten. Wir möchten Sie darauf hinweisen, dass die Angaben ausschließlich auf den uns vom Eigentümer übermittelten Unterlagen und Informationen basieren. Für Richtigkeit und Vollständigkeit übernehmen wir keine Gewähr. Zwischenvermietung vorbehalten.

Energieeffizienz

  • Energieausweis-Jahrgang: nicht verfügbar

  • Stadt: Oberhausen
  • PLZ: 46047
  • Land: Deutschland

Grundrisse