Hallen-/Ausstellungs-/Büroflächen | Rampe + ebenerdig | kurzfristig verfügbar | RUHR REAL
- 0
- 0
Details
Updated on April 7, 2026 at 3:54 p.m.-
Immobilien-ID 2698/E3
-
Preis Auf Anfrage
-
Gesamtfläche des Objekts 1700 m²
-
Art der Immobilie Lager- und Produktionsflächen
-
Eigenschaftenstatus Zu Vermieten
-
Nebenkosten Auf Anfrage
Beschreibung
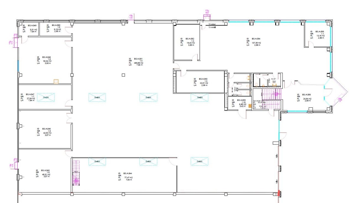
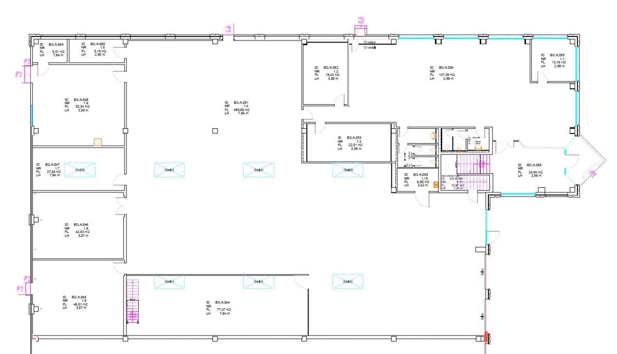
Bei der Liegenschaft handelt es sich um einen gepflegten Hallen- und Bürokomplex in Krefeld. Neben den knapp 1.000 m² Hallenfläche stehen dem Nutzer großzügige Büroflächen und auch Service-/Ausstellungsflächen zur Verfügung. Die Halle wird ebenerdig über ein Sektionaltor angedient und verfügt zudem über ein Rampentor.
Derzeit stehen folgende Flächen ausschließlich in Kombination zur Disposition:
Hallenfläche: ca. 1.00,00 m²
Bürofläche: 600,00 m² (davon ca. 75,00 m² Lagerbüro)
Die Immobilie befindet sich im beliebten Gewerbegebiet Fichtenhain im Krefelder Norden. Der Europark Fichtenhain zählt zu den nachgefragtesten Büro- und Logistikmarktlagen in Krefeld und Umgebung. Die zentrale Lage bietet perfekte ÖPNV- und Autobahnanbindungen. Die Autobahnen A44, A57 und die Bundesstraße B9 sind innerhalb weniger Fahrminuten erreichbar. Das Logistikzentrum bietet eine direkte Verbindung zwischen Rotterdam und dem Ruhrgebiet. Das ÖPNV-Netz ist zu Fuß zu erschließen.
• Andienung: ebenerdig und Rampe
• Tore: 1 Rampe, 1 ebenerdiges Sektionaltor
• Büro-/Serviceflächen anliegend vorhanden
• Gasheizung
• Stellplätze vorhanden
Es gelten ausschließlich unsere AGB (www.ruhr-real.de/agb). Die Halle ist nicht für Veranstaltungsräume geeignet. Wir möchten Sie darauf hinweisen, dass die Angaben ausschließlich auf den uns vom Eigentümer übermittelten Unterlagen und Informationen basieren. Für Richtigkeit und Vollständigkeit übernehmen wir keine Gewähr. Zwischenvermietung vorbehalten.
Adresse
Auf Google Maps öffnen-
Stadt: Krefeld
-
PLZ: 47807
-
Land: Deutschland




