Hochwertige Büroflächen im HAGENCAMPUS | ideale Anbindung | Provisionfrei
- 12,00€
- 12,00€ pro m²
- 12,00€
- 12,00€ pro m²
Details
Updated on April 2, 2026 at 3:56 p.m.-
Immobilien-ID 4564/G1/E5
-
Preis 12,00€ / m²
-
Gesamtfläche des Objekts 366 m²
-
Art der Immobilie Büroflächen
-
Eigenschaftenstatus Zu Vermieten
-
Nebenkosten 4,10 € / m²
Beschreibung
Die hochwertigen und modernen Büroflächen im HAGENCAMPUS bieten ideale Voraussetzungen für viele Nutzungsarten. Die Flächen sind flexibel und verfügen über einen Personenaufzug für eine barierrefreie Arbeitsweise sowie über ausreichend PKW-Stellplätze.
Folgende Mietflächen stehen zur Disposition:
ME 1.5 1. OG: 289,10 ²
ME 1.6 & 1.7 1. OG*: 730,42 m² (Laborflächen)
ME 2.12 2. OG: 372,39 m²
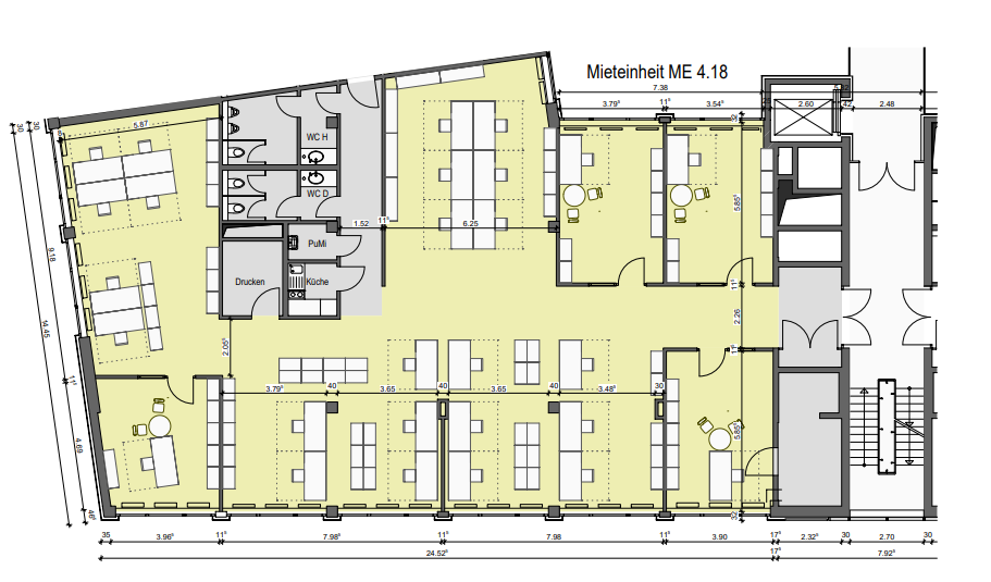
ME 4.18 & 4.19 4. OG**: 808,64 m²
ME 4.20 4. OG: 339,90 m²
*ME 1.6 und ME 1.7 können nur in Verbindung miteinander angemietet werden
**ME 4.18 und ME 4.19 können nur in Verbindung miteinander angemietet werden
Die Büroflächen befinden sich in einem etablierten und gut angebundenen Gewerbestandort im Kölner Stadtteil Poll. Das Umfeld ist geprägt von einer Mischung aus Büro-, Dienstleistungs- und Gewerbenutzungen und bietet eine angenehme, professionelle Arbeitsatmosphäre. Die Anbindung an den Individualverkehr ist sehr gut, sowohl die Kölner Innenstadt als auch die umliegenden Autobahnen sind in wenigen Minuten erreichbar. Öffentliche Verkehrsmittel befinden sich in fußläufiger Entfernung und gewährleisten eine komfortable Erreichbarkeit für Mitarbeiter und Kunden. Einkaufsmöglichkeiten sowie gastronomische Angebote zur täglichen Versorgung sind ebenfalls im näheren Umfeld vorhanden.
• Flexible Büroflächen mit variablen Nutzungskonzepten (Zellenbüros und Großraumbüros)
•
Repräsentativer Haupteingang mit hochwertigem Erscheinungsbild
•
Aufzugsanlage für komfortable und barrierearme Erschließung aller Etagen
•
Tiefgarage mit zugeordneten Stellplätzen
•
Notstromaggregat sowie flächendeckende Sprinkleranlage
• Klimaanlage und außenliegender Sonnenschutz für ein angenehmes Raumklima
• Moderner Hohlraumboden zur flexiblen Leitungsführung
•
Bandrasterdecke mit Akustikvlies für optimale Raumakustik
• Hochwertige Cat-7-Verkabelung
• LED-Beleuchtung
•
Glasfaserfähige Telekom-Anbindung
•
LTE- und WLAN-Verfügbarkeit
•
Attraktiver, begrünter Innenhof
Es gelten ausschließlich unsere AGB (www.ruhr-real.de/agb). Wir möchten Sie darauf hinweisen, dass die Angaben ausschließlich auf den uns vom Eigentümer übermittelten Unterlagen und Informationen basieren. Für Richtigkeit und Vollständigkeit übernehmen wir keine Gewähr. Zwischenvermietung vorbehalten.
Adresse
Auf Google Maps öffnen-
Stadt: Köln
-
PLZ: 51105
-
Land: Deutschland



