Ihre neue Büro-/Praxisfläche zentral am Stern | flexibler Grundriss | RUHR REAL
- 11,90€
- 11,90€
Details
Updated on März 26, 2026 at 1:49 p.m.-
Immobilien-ID 315/E4
-
Preis 11,90€ / m²
-
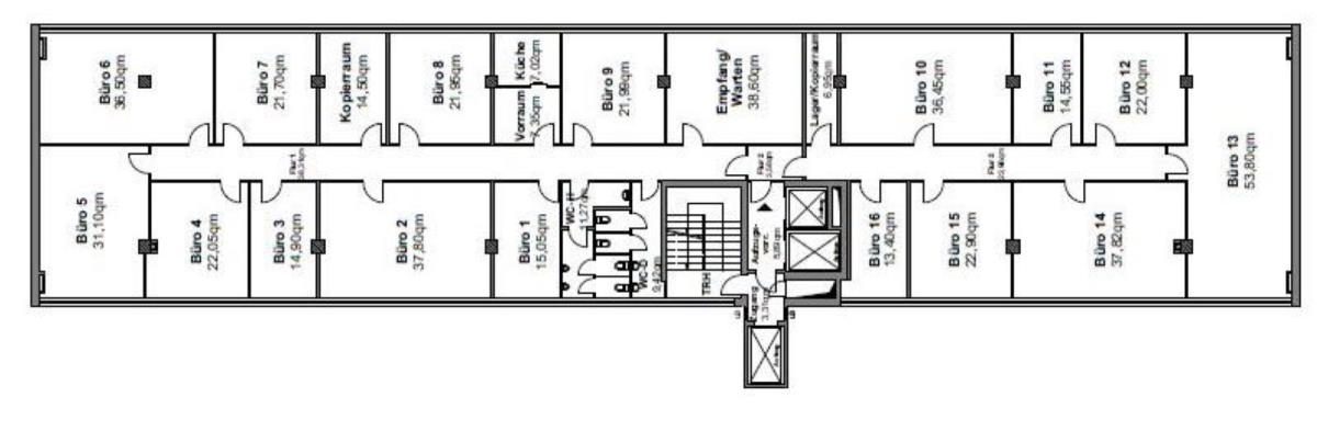
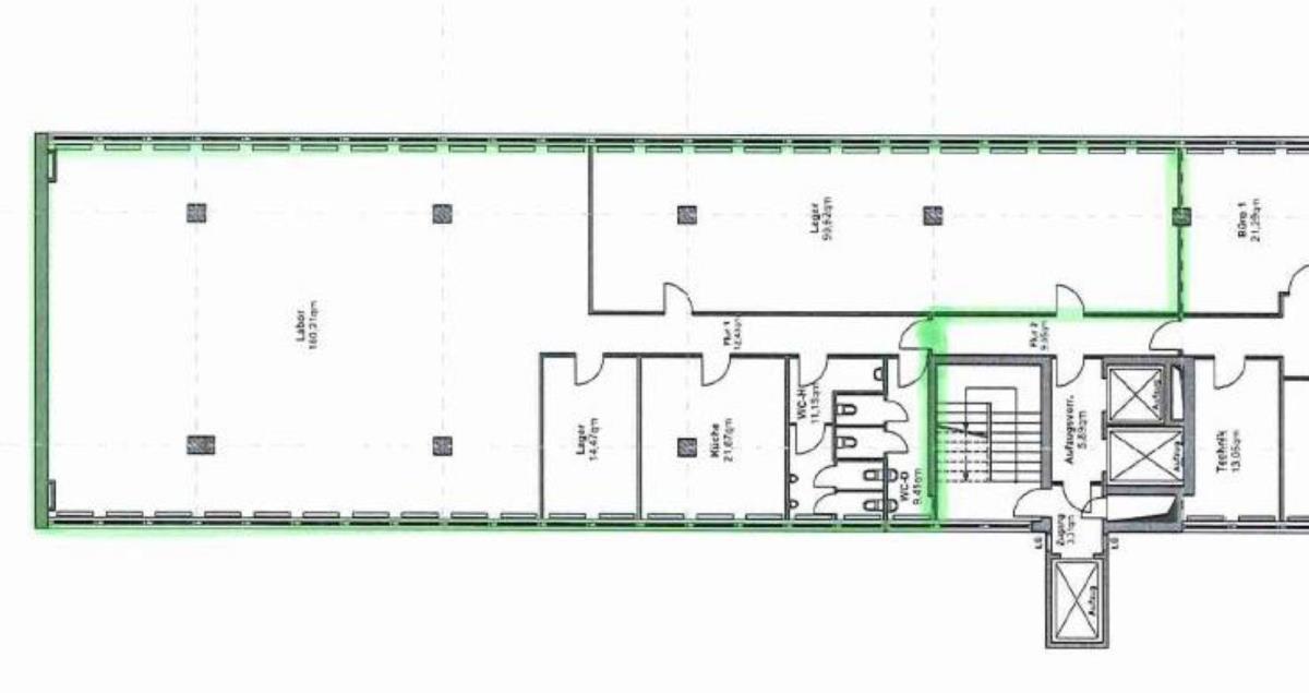
Gesamtfläche des Objekts 350 m²
-
Baujahr 1972
-
Art der Immobilie Büroflächen
-
Eigenschaftenstatus Zu Vermieten
-
Nebenkosten 3,70 € / m²
-
Heizkosten 225 €
Beschreibung
Bei der attraktiven Immobilie handelt es sich um ein Büro- und Geschäftshaus in bester Bürolage von Essen-Rüttenscheid. Die vakanten Büroflächen sind über das Treppenhaus sowie über einen Personenaufzug und einen Liegendaufzug zugänglich. Das Objekt bietet einen repräsentativen Eingangsbereich, dieser ermöglicht jedem Nutzer die Möglichkeit einer individuellen Darstellung bereits beim Eintritt in die Immobilie. Die ansprechende zeitlose Fassade des Objektes rundet das Bild ab.
Parkplätze stehen im Innenhof des Objektes sowie der hauseigenen Tiefgarage bereit.
Zur Zeit stehen folgende Flächen zur Disposition:
2. OG: 394 m²
4. OG: 350 m²
7. OG: 593 m²
*Archiv-/Lagerflächen stehen bei Bedarf zur Verfügung.
Das Objekt befindet sich in einer der gefragtesten Bürolagen von Essen. Attraktive Boutiquen, Restaurants, Cafés verleihen der “Rü”ihre besondere Atmosphäre. Darüber hinaus bietet Rüttenscheid eine gute Verkehrsinfrastruktur sowie eine excellente ÖPNV Anbindung. Mit der U-Bahn und dem Bus erreicht man von der Haltestelle “Martinstraße” kürzester Zeit den Essener Hbf. Die A 40 und A 52 liegen nur etwa vier PKW Minuten entfernt.
Bedeutende Unternehmen in der Büromarktzone: Atos, Brenntag, Ernst & Young, EON, Gagfah, Hochtief, ifm, ista, Küttner, Paul Wurth, Steag, TÜV Nord
Hotels in der Umgebung: Mercure Hotel Plaza, Hotel Rüttenscheider Stern, Hotel im Giradet-Haus, Hotel an der Gruga
• Sonnenschutz: außenliegend, elektrisch
• Bodenbelag: Teppichboden
• Verkabelung: CAT-5 vom Vormieter
• Kabelführung: Bodentanks
• Beleuchtung: Deckenleuchten
• Teeküche: voll ausgestattet
• Aufzug: nicht vorhanden
• Barrierearm: ebenerdiger Zugang
Die Ausstattung kann kann bei Bedarf angepasst werden!
Es gelten ausschließlich unsere AGB (www.ruhr-real.de/agb). Wir möchten Sie darauf hinweisen, dass die Angaben ausschließlich auf den uns vom Eigentümer übermittelten Unterlagen und Informationen basieren. Für Richtigkeit und Vollständigkeit übernehmen wir keine Gewähr. Zwischenvermietung vorbehalten.
Adresse
Auf Google Maps öffnen-
Stadt: Essen
-
PLZ: 45130
-
Stadtteil: Rüttenscheid
-
Land: Deutschland







