Lagerflächen in direkter Nähe zur A40/A43 | Rampen- und Ebenerdige Andienung | RUHR REAL

  • 5,70€
  • 5,70€ pro m²
44809 Bochum
Zu Vermieten
Lagerflächen in direkter Nähe zur A40/A43 | Rampen- und Ebenerdige Andienung | RUHR REAL
44809 Bochum
  • 5,70€
  • 5,70€ pro m²

Details

Aktualisiert am September 26, 2025 beim 3:10 p.m.
  • Immobilien-ID:439/E1
  • Preis: 5,70€
  • Gesamtfläche des Objekts:12931 m²
  • Art der Immobilie:Lager- und Produktionsflächen
  • Eigenschaftenstatus:Zu Vermieten

Beschreibung

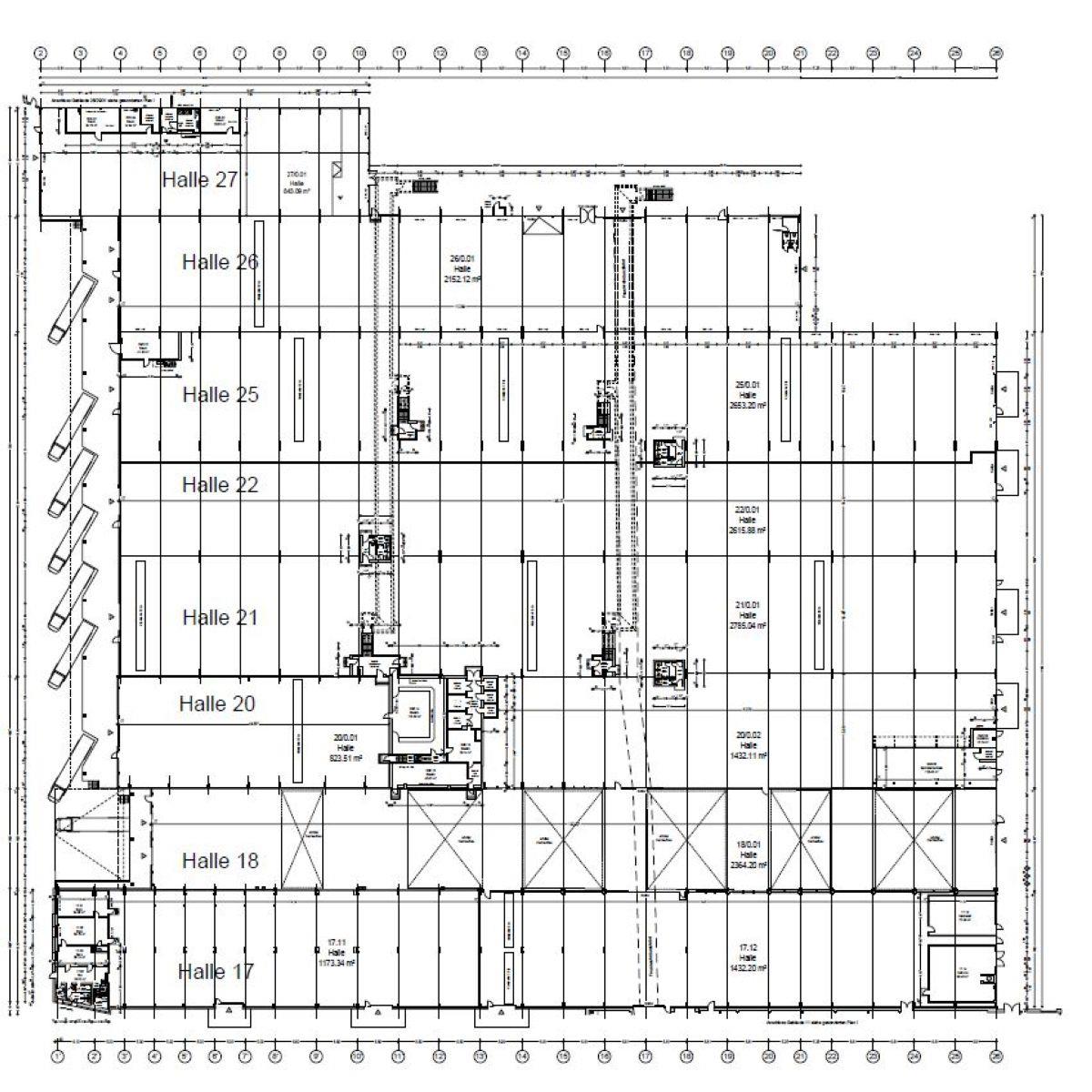
Bei dem Gewerbeobjekt handelt es sich um ein freistehendes Lagergebäude in Bochum. Auf einer Grundstücksgröße von ca. 85.000 m² befinden sich drei große Lagerhallen und ein Bürokomplex. Die zur Disposition stehende 12.931 m² große Produktionsfläche ist teilbar ab 2.500 m². Für einen problemlosen Lieferverkehr sorgen die zahlreichen ebenerdigen Rolltore. Zusätzlich können Büroflächen angemietet werden. Es stehen zudem genügend Stellplätze zur Verfügung.

Folgende Fläche stehen zur Disposition:

Hallenfläche: 12.931 m²

Das Objekt befindet sich in Bochum Riemke und ist nur 2 Fahrminuten von den Autobahnen A40 und A43 entfernt. ÖPNV Anbindungen (U35) befinden sich direkt am Objekt. Im direkten Umfeld befinden sich Supermärkte, sowie Restaurants.

• Heizung: beheizt
• Deckenhöhe: 14 m
• Bodenbelastbarkeit: 5t/m²
• Sprinklerung: vorhanden
• 24-Stundenbetrieb: vorhanden
• Andienung via Rampentore mit Überladebrücken sowie diverse ebenerdige Zugänge
• Klimatisierte Büros mit EDV-Verkabelung
• Schließanlage

Es gelten ausschließlich unsere AGB (www.ruhr-real.de/agb). Da der Eigentümer ausschließlich Lager/Logistik, Produktion und Light Industrial als Nutzung wünscht, bitten wir Sie zu berücksichtigen, dass Anfragen zu folgenden Nutzungen nicht bearbeitet werden können: Veranstaltungen/Events, Gastronomie/Vergnügungsstätten, religiöse Einrichtungen sowie Sport- und Spielstätten. Wir möchten Sie darauf hinweisen, dass die Angaben ausschließlich auf den uns vom Eigentümer übermittelten Unterlagen und Informationen basieren. Für Richtigkeit und Vollständigkeit übernehmen wir keine Gewähr. Zwischenvermietung vorbehalten.

Energieeffizienz

  • Energieausweis-Jahrgang: nicht verfügbar

  • Stadt Bochum
  • PLZ 44809
  • Land Deutschland

Grundrisse

image

Beschreibung:

image

Beschreibung:

Compare listings

Vergleichen
Marius Degenhardt
  • Marius Degenhardt