Moderne Büroflächen am Alten Markt | optimale ÖPNV Anbindung | sofort verfügbar
- 10,00€
- 10,00€ pro m²
- 10,00€
- 10,00€ pro m²
Details
Updated on Mai 19, 2026 at 10:59 a.m.-
Immobilien-ID 2890/E1
-
Preis 10,00€ / m²
-
Gesamtfläche des Objekts 1024 m²
-
Art der Immobilie Büroflächen
-
Eigenschaftenstatus Zu Vermieten
-
Nebenkosten 5 € / m²
Beschreibung
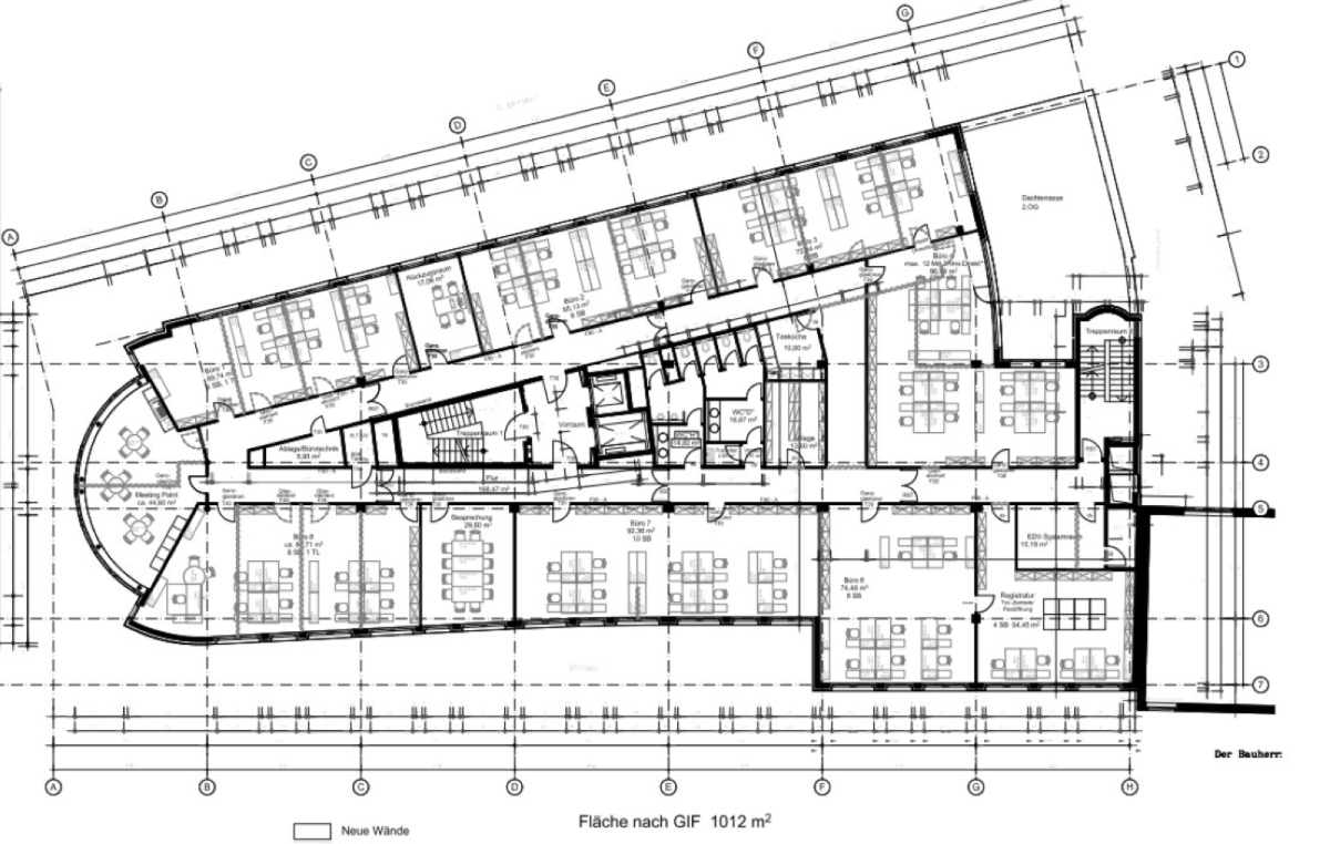
Das sechsgeschossige Büro- und Geschäftshaus verfügt über eine Bügeleisen- Form und wird vertikal durch zwei mittig angeordnete Aufzüge sowie ein Treppenhaus erschlossen. Der Zutritt zu den einzelnen Büroflächen erfolgt über die Erschließung des Mittelflures.
Die Mietflächen verfügen jeweils über eine Terrasse und sind wie folgt aufgeteilt:
2.OG: 1.024 m² inkl. 12 m² Terrasse
3.OG: 940 m² inkl. 20 m² Terrasse
5.OG: 778 m² inkl. 12 m² Terrasse
Die Fußgängerzone befindet sich in unmittelbarer Nähe zum Gebäude. Dort befinden sich auch zahlreiche Einkaufsmöglichkeiten sowie ein breites Gastronomieangebot. Das Objekt befindet sich in der Nähe zu dem gut ausgebauten Schienen-und Straßenbahnnetz. Die Wuppertaler Schwebebahn ist fußläufig in 3 min erreichbar. Auch die Nähe zur Autobahn ist sehr attraktiv. Das hochwertige Gebäude ist somit sehr gut erreichbar.
• Terrassenflächen
• mechanische Be- und Entlüftung
• Teppichboden
• Bodentanks
• Teeküche
• zwei Personenaufzüge
Es gelten ausschließlich unsere AGB (www.ruhr-real.de/agb). Die Halle ist nicht für Veranstaltungsräume geeignet. Wir möchten Sie darauf hinweisen, dass die Angaben ausschließlich auf den uns vom Eigentümer übermittelten Unterlagen und Informationen basieren. Für Richtigkeit und Vollständigkeit übernehmen wir keine Gewähr. Zwischenvermietung vorbehalten.
Adresse
Auf Google Maps öffnen-
Stadt: Wuppertal
-
PLZ: 42275
-
Land: Deutschland





