Provisionsfreie Büroflächen | hell & modern | ideale Anbindungen | Personenaufzug
- 15,50€
- 15,50€ pro m²
- 15,50€
- 15,50€ pro m²
Details
Updated on Januar 19, 2026 at 3:18 p.m.-
Immobilien-ID 4563/G1/E1
-
Preis 15,50€ / m²
-
Gesamtfläche des Objekts 694 m²
-
Art der Immobilie Büroflächen
-
Eigenschaftenstatus Zu Vermieten
-
Nebenkosten Auf Anfrage
Beschreibung
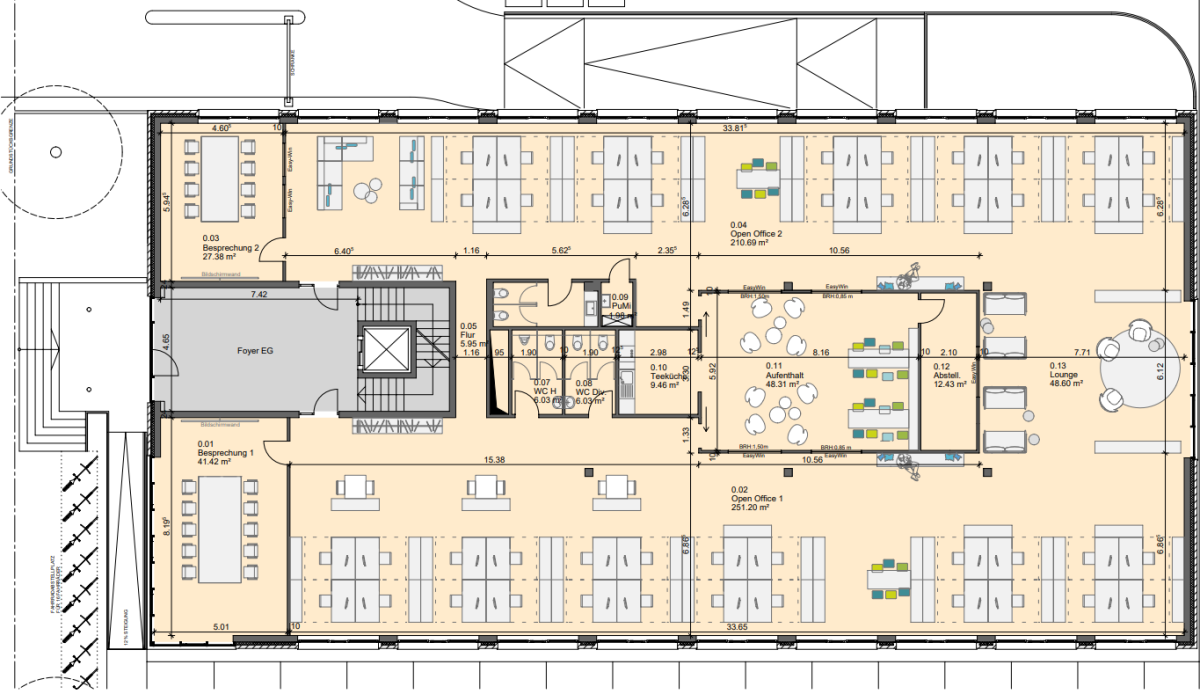
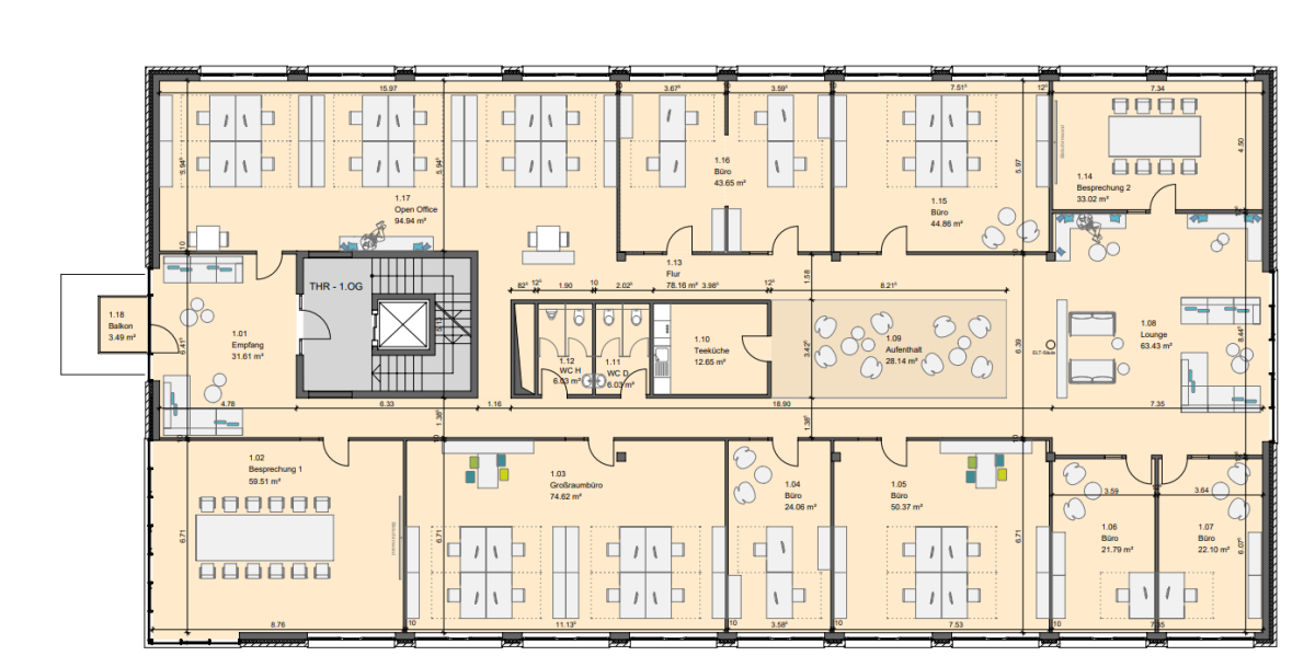
Das Büroobjekt bietet moderne und flexibel nutzbare Büroflächen in einem repräsentativen Gebäude, das im Jahr 2025 umfassend saniert wurde. Die Flächen eignen sich ideal für Unternehmen, die Wert auf zeitgemäße Ausstattung, effiziente Grundrisse und ein professionelles Arbeitsumfeld legen. Verfügbar sind folgende Einheiten:
EG: ca. 694,86 m² Bürofläche zu 15,50 EUR/m² zzgl. 2,80 EUR/m² Nebenkosten
1. OG: ca. 731,10 m² Bürofläche zu 15,50 EUR/m² zzgl. 2,80 EUR/m² Nebenkosten
2. OG: ca. 731,10 m² Bürofläche zu 15,50 EUR/m² zzgl. 2,80 EUR/m² Nebenkosten
Die Geschosse können einzeln oder kombiniert angemietet werden und bieten dank flexibler Raumaufteilung vielfältige Nutzungsmöglichkeiten.
Die Büroflächen befinden sich in einem etablierten und gut angebundenen Gewerbestandort im Kölner Stadtteil Kalk. Das Umfeld ist geprägt von einer Mischung aus Büro-, Dienstleistungs- und Gewerbenutzungen und bietet eine angenehme, professionelle Arbeitsatmosphäre. Die Anbindung an den Individualverkehr ist sehr gut, sowohl die Kölner Innenstadt als auch die umliegenden Autobahnen sind in wenigen Minuten erreichbar. Öffentliche Verkehrsmittel befinden sich in fußläufiger Entfernung und gewährleisten eine komfortable Erreichbarkeit für Mitarbeiter und Kunden. Einkaufsmöglichkeiten sowie gastronomische Angebote zur täglichen Versorgung sind ebenfalls im näheren Umfeld vorhanden.
• Sanierung (2025)
• Neue Fassade
•
Aufzug
•
Repräsentativer Eingangsbereich
• Abhangdecke
•
Moderne Beleuchtung
• Klimatisierung
•
Neuer Teppichboden
•
Flexible Raumaufteilung
Es gelten ausschließlich unsere AGB (www.ruhr-real.de/agb). Wir möchten Sie darauf hinweisen, dass die Angaben ausschließlich auf den uns vom Eigentümer übermittelten Unterlagen und Informationen basieren. Für Richtigkeit und Vollständigkeit übernehmen wir keine Gewähr. Zwischenvermietung vorbehalten.
Adresse
Auf Google Maps öffnen-
Stadt: Köln
-
PLZ: 51105
-
Land: Deutschland




