Sofort verfügbare Schulungsflächen | Stellplätze | Ausbau nach Mieterwunsch | ab 6,50 EUR

  • 6,50€
  • 6,50€ pro m²
44809 Bochum
Zu Vermieten
Sofort verfügbare Schulungsflächen | Stellplätze | Ausbau nach Mieterwunsch | ab 6,50 EUR
44809 Bochum
  • 6,50€
  • 6,50€ pro m²

Details

Aktualisiert am September 25, 2025 beim 3:21 p.m.
  • Immobilien-ID:3247/E2
  • Preis: 6,50€
  • Gesamtfläche des Objekts:284 m²
  • Art der Immobilie:Büroflächen
  • Eigenschaftenstatus:Zu Vermieten

Beschreibung

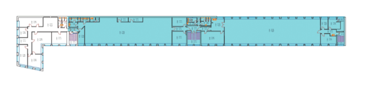
Aktuell stehen folgende Flächen zur Disposition:

1. OG: ca. 284 m²
1. OG: ca. 347 m²
2. OG: ca. 1.091 m² (teilbar ab 522 m²)

Das Objekt befindet sich auf der stark frequentierten Herner Straße und ist unweit von der Bochumer Innenstadt entfernt. Im direkten Umfeld befinden sich Supermärkte, Restaurants etc. Die Autobahnen A40 und A43 sind schnell zu erreichen. Das ÖPNV-Netz ist fußläufig erreichbar. Die U-Bahn Haltestelle “Zeche Constantin” befindet sich direkt vor Ort.

Namhafte Unternehmen in der Büromarktzone: Unitymedia, Breuer Motoren, Linde AG
Hotels in der Nähe: bon marché hôtel, acora Hotel, Mercure

• Verkabelung: nach Vereinbarung
• Verkabelungsort: nach Vereinbarung
• Klima: nach Vereinbarung
• Bodenbelag: Teppichboden
• Heizung: Gaszentralheizung
• Sonnenschutz: nach Vereinbarung
• Teeküche: voll ausgestattet

Es gelten ausschließlich unsere AGB (www.ruhr-real.de/agb). Wir möchten Sie darauf hinweisen, dass die Angaben ausschließlich auf den uns vom Eigentümer übermittelten Unterlagen und Informationen basieren. Für Richtigkeit und Vollständigkeit übernehmen wir keine Gewähr. Zwischenvermietung vorbehalten.

  • Stadt Bochum
  • PLZ 44809
  • Land Deutschland

Grundrisse

image

Beschreibung:

image

Beschreibung:

image

Beschreibung:

Compare listings

Vergleichen
Frederic Jeschke
  • Frederic Jeschke