Über 1.700 m² Logistikfläche | Rampen und ebenerdige Tore | Gewerbeparkneubau
- 8,00€
- 8,00€ pro m²
- 8,00€
- 8,00€ pro m²
Details
Updated on März 5, 2026 at 1:52 p.m.-
Immobilien-ID 3856/E13
-
Preis 8,00€ / m²
-
Gesamtfläche des Objekts 2297 m²
-
Baujahr 2025
-
Art der Immobilie Lager- und Produktionsflächen
-
Eigenschaftenstatus Zu Vermieten
-
Nebenkosten Auf Anfrage
Beschreibung
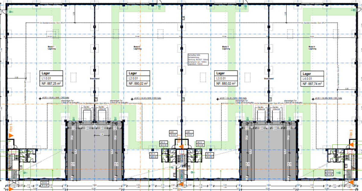
Halle A verfügt über insgesamt 4 Module, jedes Modul verfügt über ein Rampentor sowie über ein ebenerdiges Tor. Die Flächen sind mit einer RWA ausgestattet und werden mittels Wärmepumpen beheizt und könnendaher auch gekühlt werden. Zu jedem Modul gehört jeweils eine Büro- und Sozialfläche von ca. 265 m² in der oberen Etage. Das Hallendach ist mit einer PV-Anlage ausgestattet, die Dächer der Büroanbauten sind mit Dachbegrünung versehen. Ein Großteil der PKW-Stellplätze sind entweder bereits mit E-Ladesäulen ausgestattet oder haben Vorrichtungen für Nachrüstung. Die Deckenhöhe bei Halle A beträgt 8,00 m UKB. Die Lagerfläche eines Moduls beträgt ca. 1.016 m², die Fläche von zwei zusammenhängen angemieteten Modulen beträgt ca. 2.032 m².
Die Hallenabschnitte können zudem miteinander verbunden werden, sodass der Bedarf nach größeren Flächen auch erfüllt werden kann.
Mülheim an der Ruhr ist durch die nord-westliche Lage im Ruhrgebiet ein idealer Firmenstandort. Nahe der A40 in einem Gewerbegebiet gelegen befindet sich dieses vielseitige Neubau-Objekt. Sowohl eine Bushaltestelle, eine S-Bahn-Station und Restaurants sind fußläufig schnell erreicht. In nur 2 Fahrminuten erreicht man das Autobahnkreuz “Kreuz Kaiserberg”, wo sich die Autobahnen A40 und A3 kreuzen und hiermit optimale Anbindungen sowohl regional als auch überregional bieten. Den Rhein-Ruhr-Hafen Mülheim ist in nur 1 Minute mit dem PKW zu erreichen.
• LED-Beleuchtung
• 2 Rampentore
• 2 ebenerdige Tore
• PKW-Stellplätze (auch E-Säulen)
Es gelten ausschließlich unsere AGB (www.ruhr-real.de/agb). Da der Eigentümer ausschließlich Lager/Logistik, Produktion und Light Industrial als Nutzung wünscht, bitten wir Sie zu berücksichtigen, dass Anfragen zu folgenden Nutzungen nicht bearbeitet werden können: Veranstaltungen/Events, Gastronomie/Vergnügungsstätten, religiöse Einrichtungen sowie Sport- und Spielstätten. Wir möchten Sie darauf hinweisen, dass die Angaben ausschließlich auf den uns vom Eigentümer übermittelten Unterlagen und Informationen basieren. Für Richtigkeit und Vollständigkeit übernehmen wir keine Gewähr. Zwischenvermietung vorbehalten.
Adresse
Auf Google Maps öffnen-
Stadt: Mülheim an der Ruhr
-
PLZ: 45478
-
Land: Deutschland






