Umzäuntes Produktionsgebäude in Langenfeld | 2 Kranbahnen | angrenzende Bürofläche
- 0
- 0
Details
Updated on September 26, 2025 at 3:11 p.m.-
Immobilien-ID 3237/E1
-
Preis Auf Anfrage
-
Gesamtfläche des Objekts 2250 m²
-
Baujahr 1995
-
Art der Immobilie Lager- und Produktionsflächen
-
Eigenschaftenstatus Zu Vermieten
-
Nebenkosten Auf Anfrage
Beschreibung
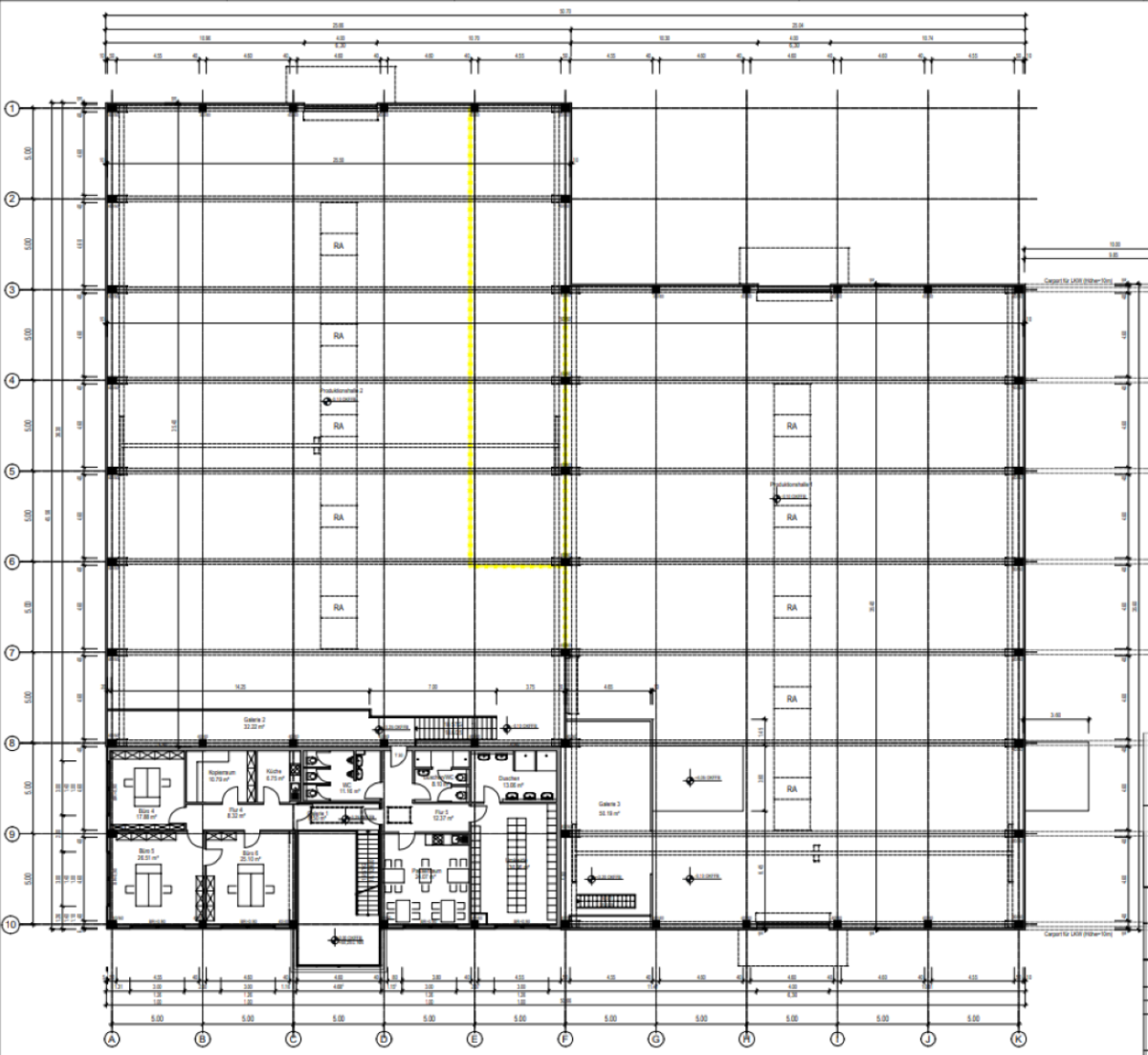
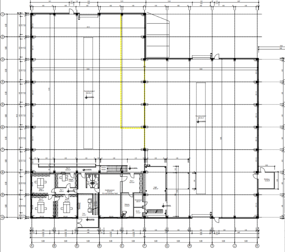
Bei der angebotenen Immobilie handelt es sich um eine vollständig umzäunte Solitäranlage in Langenfeld. Die Andienung erfolgt über 3 ebenerdige Sektionaltore.
Aktuell stehen folgende Flächen zur Disposition:
Halle: 1.800 m²
Büro: 450 m²
Die Liegenschaft befindet sich in zentraler Lage im Industriegebiet Langenfeld-Richrath. Innerhalb von wenigen Fahrminuten erreicht man die Autobahn A3, wodurch die umliegenden Metropolen Köln und Düsseldorf schnell erreicht sind. Durch die in unmittelbarere Nähe befindliche Bushaltestelle ist eine flexible An-/ und Abreise garantiert. Ferner ist der Düsseldorfer Flughafen in ca. 25 Fahrminuten zu erreichen.
• 2 Kranbahnen (3,2 t Traglast)
• 6,50 m UKB
• vollständig umfahrbar
• klimatisierte Büroflächen
Es gelten ausschließlich unsere AGB (www.ruhr-real.de/agb). Da ausschließlich Produktion als Nutzung gestattet ist, bitten wir Sie zu berücksichtigen, dass Anfragen zu folgenden Nutzungen nicht bearbeitet werden können: Veranstaltungen/Events, Gastronomie/Vergnügungsstätten, religiöse Einrichtungen sowie Sport- und Spielstätten. Wir möchten Sie darauf hinweisen, dass die Angaben ausschließlich auf den uns vom Eigentümer übermittelten Unterlagen und Informationen basieren. Für Richtigkeit und Vollständigkeit übernehmen wir keine Gewähr. Zwischenvermietung vorbehalten.
Adresse
Auf Google Maps öffnen-
Stadt: Langenfeld
-
PLZ: 40764
-
Land: Deutschland









