Ihr neues Büro am Duisburger Innenhafen | hochwertige Ausstattung und repräsentatives Außenbild
- 15,00€
- 15,00€ pro m²
- 15,00€
- 15,00€ pro m²
Details
Updated on April 2, 2026 at 3:52 pm-
Immobilien-ID 016/E5
-
Preis 15,00€ / m²
-
Gesamtfläche des Objekts 2524 m²
-
Baujahr 2007
-
Art der Immobilie Büroflächen
-
Eigenschaftenstatus Zu Vermieten
-
Nebenkosten 3 € / m²
Beschreibung
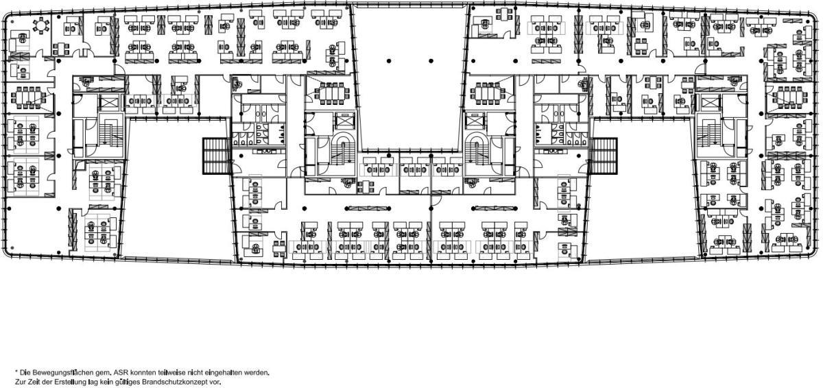
Die moderne Büroimmobilie liegt im begehrten Duisburger Innenhafen. Das Gebäude ist so konzipiert, dass alle Geschosse in zwei Abschnitte à ca. 1.200 m² nutzbar sind. Die Büroflächen können in Form von Einzelbüros, aber auch Open Space genutzt werden. Die gehobene Ausstattung und die vielen Fenster bieten eine optimale Voraussetzung für einen modernen Arbeitsplatz. Die Büroflächen sind mit einem Teppichboden, teils aber auch mit Laminatboden ausgestattet. Die CAT-7 Verkabelung verläuft über Bodentanks. Ferner sorgt ein außenliegender Sonnenschutz für die Abdunklung der Flächen. In der hauseigenen Tiefgarage stehen zahlreiche Parkplätze zur Anmietung bereit. Das Highlight der Immobilie bildet die großzügige Dachterrasse.
Zur Zeit stehen folgende Flächen zur Anmietung zur Verfügung:
EG: ca. 1.915 m², teilbar ab ca. 571 m²
1. OG: ca. 2.915 m²
2. OG: ca. 2.524 m²
3. OG: ca. 2.525 m²
5. OG: ca. 390 m²
Der Innenhafen, ein früherer Industriehafen, gilt als Musterbeispiel für den Strukturwandel im Ruhrgebiet. Der heutige Innenhafen zeichnet sich durch moderne Büroneubauten entlang der Schifferstraße, sowie umgenutzte, ehemalige Speichergebäude entlang des Philosophenwegs aus. Die Objekte bieten fast ausnahmslos einen direkten Blick auf das Wasser. Aufgrund der direkten Anbindung an die Autobahn A40, sowie der nahegelegenen ÖPNV-Anbindung, ist dieses Objekt besonders verkehrsgünstig gelegen.
Zu den bedeutenden Immobilien im Innenhafen zählen die Objekte: H2-Office, Looper, Five Boats, Küppersmühle, das Landesarchiv NRW usw.
Bedeutende Unternehmen in der Büromarktzone: Prodot GmbH, Novitas BKK, NGC Transmission Europe GmbH, SPAETER
Hotels der Umgebung: Wyndham Duisburger Hof, Mercure Hotel Duisburg City, Ibis Budget City
• Bodenbelag: Teppichboden, Laminatboden
• EDV-Verkabelung: höchste Verkabelungs-Kategorie CAT-7
• Verkabelungsort: Bodentanks
• Achsmaß: flexibles Achsmaß von 1,25 m
• Raumtiefen: ca. 4,20 bis 13,90 m
• Raumhöhen: ca. 2,80 bis 3,00 m
• aufgeständerte Hohlraumböden mit einer Konstruktionshöhe von 20 cm in den Büros und Besprechungsräumen
• Sonnenschutz: außenliegend, elektrisch
• Teeküche: voll ausgestattet
• Beleuchtung: arbeitsplatzgerechte Deckenbeleuchtung
• Kühlung: moderne Betonkernaktivierung zur alleinigen oder ergänzenden Raumheizung bzw. Kühlung des Gebäudes
• Aufzug: behindertenfreundliche Aufzugsanlagen
• Büronutzung: Einzelbüros / Open Space
• Besonderheit: Dachterrasse
Die Ausstattung kann bei Bedarf angepasst werden!
Es gelten ausschließlich unsere AGB (www.ruhr-real.de/agb). Wir möchten Sie darauf hinweisen, dass die Angaben ausschließlich auf den uns vom Eigentümer übermittelten Unterlagen und Informationen basieren. Für Richtigkeit und Vollständigkeit übernehmen wir keine Gewähr. Zwischenvermietung vorbehalten.
Adresse
Auf Google Maps öffnen-
Stadt: Duisburg
-
PLZ: 47059
-
Stadtteil: Kaßlerfeld
-
Land: Deutschland










