Renovierte Büroräume in beliebtem Südviertel | gehobene Ausstattung | Stellplätze
- 9,50€
- 11,30€ pro m²
- 9,50€
- 11,30€ pro m²
Details
Updated on April 2, 2026 at 3:57 pm-
Immobilien-ID 1342/E5
-
Preis 9,50€ / m²
-
Baujahr 1972/2023
-
Art der Immobilie Büroflächen
-
Eigenschaftenstatus Zu Vermieten
-
Nebenkosten 3 € / m²
-
Heizkosten 150 €
Beschreibung
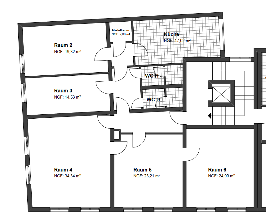
Der Haupteingang des Gebäudes liegt auf der ruhigen Gärtnerstraße unweit der Kronprinzenstraße. Die Büroräume werden durch das zentrale Treppenhaus mit Aufzug erreicht. Durch eine weiße Tür betreten Sie den mit Laminat mit heller Holzoptik ausgelegten Eingangsbereich. Die Wände werden weiß gestrichen übergeben. Im Eingangsbereich befindet sich auf der linken Seite Platz für eine Rezeption. Hier befinden sich auch die hell gefliesten Damen- und Herrentoiletten, jeweils mit 2 Kabinen und Fenstern. Entlang des Flurs befinden sich links und rechts 10 Büroräume, die meisten mit einer Größe von ca. 4,90 m² x 4,40 m² (~ 21 m²), der größte Raum hat 40 m². Teilweise sind die Büroräume durch interne Türen miteinander verbunden. Die Büroräume sind auch mit Laminat in heller Holzoptik und weißen Wänden ausgestattet. Die vom Flur links liegenden Büros blicken auf den hellen Innenhof Richtung Westen, die rechts liegenden auf die Gärtnerstraße Richtung Osten. Eine Küche mit Küchenzeile und ausreichend Platz für eine Sitzgelegenheit gehört ebenfalls zu den Büroräumen. Es stehen 1 Parkplatz auf dem Innenhof, der von der Gärtnerstraße durch eine Hofdurchfahrt erreicht wird, zur Verfügung. Ein Keller von ca. 11,5 m² rundet das Angebot ab. Die Gebäudeüberwachung sowie der Winterdienst sind organisiert und werden über die Nebenkosten abgerechnet.
Derzeit stehen die folgenden Flächen zur Disposition:
2. OG: 158 m²
Das Büro befindet sich im beliebten Südviertel, der Hauptbahnhof ist in 6 Minuten zu Fuß oder mit der Straßenbahn bzw. Bus mit einem Stopp erreichbar. Die A40 ist nah, ebenso die Auffahrt zur A52 Richtung Düsseldorf. Die Straßenbahnhaltestelle “Kronprinzenstraße” ist 100m entfernt.
Hotels in der Nähe: Sheraton Hotel, Intercity Hotel, Mercure Hotel, ibis Hotel, Select Hotel Handelshof
Bedeutende Unternehmen in der Büromarktzone: Santander Consumer Bank AG, Hapag-Lloyd Reisebüro, Philharmonie, Innogy, PWC
• Bodenbelag: Laminat-, Vinylboden
• Verkabelung: CAT-5-Verkabelung
• Sonnenschutz: außenliegend, elektrisch
• Teeküche: voll ausgestattet
• Beleuchtung: Rasterleuchten
• Aufzug: Personenaufzug
• Heizungsart: Zentralheizung
• Letzte Modernisierung: 2020
Die Ausstattung ist flexibel und kann bei Bedarf individuell an den Mieter angepasst werden!
Es gelten ausschließlich unsere AGB (www.ruhr-real.de/agb). Wir möchten Sie darauf hinweisen, dass die Angaben ausschließlich auf den uns vom Eigentümer übermittelten Unterlagen und Informationen basieren. Für Richtigkeit und Vollständigkeit übernehmen wir keine Gewähr. Zwischenvermietung vorbehalten.
Adresse
Auf Google Maps öffnen-
Stadt: Essen
-
PLZ: 45128
-
Stadtteil: Südostviertel
-
Land: Deutschland
