Altbau ganz modern | frei gestaltbare Büro- und Praxisflächen | Krügerhaus
- 12,50€
- 14,00€ pro m²
- 12,50€
- 14,00€ pro m²
Details
Updated on Juni 24, 2025 at 11:34 a.m.-
Immobilien-ID 627/E5
-
Preis 12,50€ / m²
-
Gesamtfläche des Objekts 224 m²
-
Baujahr 1912
-
Art der Immobilie Büroflächen
-
Eigenschaftenstatus Zu Vermieten
-
Nebenkosten Auf Anfrage
Beschreibung
Das Krügerhaus ist eines der bekanntesten Büro- und Geschäftshäuser in Dortmund und wurde im Jahr 1912 erbaut. Jahrelang war es der Sitz der Verlagsbuchhandlung Krüger. Neben der gut erhaltenen Fassade verfügt das Krügerhaus über eine ebenso schöne Passage, die die Kampstraße mit dem Westenhellweg verbindet.
Die Etagen drei, vier, fünf und ein Teil der zweiten Etage im Westenhellweg sowie die Etagen drei und vier in der Kampstraße werden kernsaniert und können nach Wunsch der zukünftigen Mieter aufgeteilt und ausgestattet werden. Die neuen Mieter erhalten somit Büroflächen auf dem neuesten Ausbaustandard in einem altehrwürdigen Geschäftshaus, welches stadtbekannt ist.
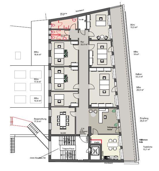
Folgende Flächen stehen derzeit zur Disposition:
Westenhellweg 9:
2. OG: ca. 140 m²
3. OG: ca. 380 m²
4. OG: ca. 380 m²
5. OG: ca. 380 m² inkl. Balkon
Kampstraße 4:
3. OG: ca. 289 m² (Praxisfläche)
4. OG: ca. 224 m² inkl. Balkon
Das Objekt befindet sich im Citykern, mitten in der Fußgängerzone von Dortmund. Die zentrale Lage gewährleistet eine exzellente Nahversorgung. Ferner ist die Liegenschaft hervorragend an den ÖPNV angebunden. In nur wenigen Fahrminuten erreicht man darüber hinaus das Autobahnnetz, welches problemlos in die umliegenden Städte führt.
Bedeutende Unternehmen in der Büromarktzone: Continentale, AOK, Ergo
Hotels in der Umgebung: Sport Hotel Dortmund, Hotel Esplanade, Hotel NH Dortmund, Mercure Hotel Dortmund
• EDV-Verkabelung: CAT-7
• Verkabelungsort: Brüstungskanäle
• Beleuchtung: Nach Vereinbarung
• Klimatisierung: Nach Vereinbarung
• Bodenbelag: Nach Vereinbarung
• Aufzug: Personenaufzug
*Die Räumlichkeiten können nach Absprache den Nutzeranforderungen angepasst werden
Es gelten ausschließlich unsere AGB (www.ruhr-real.de/agb). Wir möchten Sie darauf hinweisen, dass die Angaben ausschließlich auf den uns vom Eigentümer übermittelten Unterlagen und Informationen basieren. Für Richtigkeit und Vollständigkeit übernehmen wir keine Gewähr. Zwischenvermietung vorbehalten
Adresse
Auf Google Maps öffnen-
Stadt: Dortmund
-
PLZ: 44137
-
Land: Deutschland






