Attraktive Büroflächen im Essener Süden | Stellplätze vorhanden | optimale Anbindung
- 9,50€
- 9,50€ pro m²
- 9,50€
- 9,50€ pro m²
Details
Updated on November 20, 2025 at 12:22 p.m.-
Immobilien-ID 1170/E4
-
Preis 9,50€ / m²
-
Gesamtfläche des Objekts 626 m²
-
Art der Immobilie Büroflächen
-
Eigenschaftenstatus Zu Vermieten
-
Nebenkosten Auf Anfrage
Beschreibung
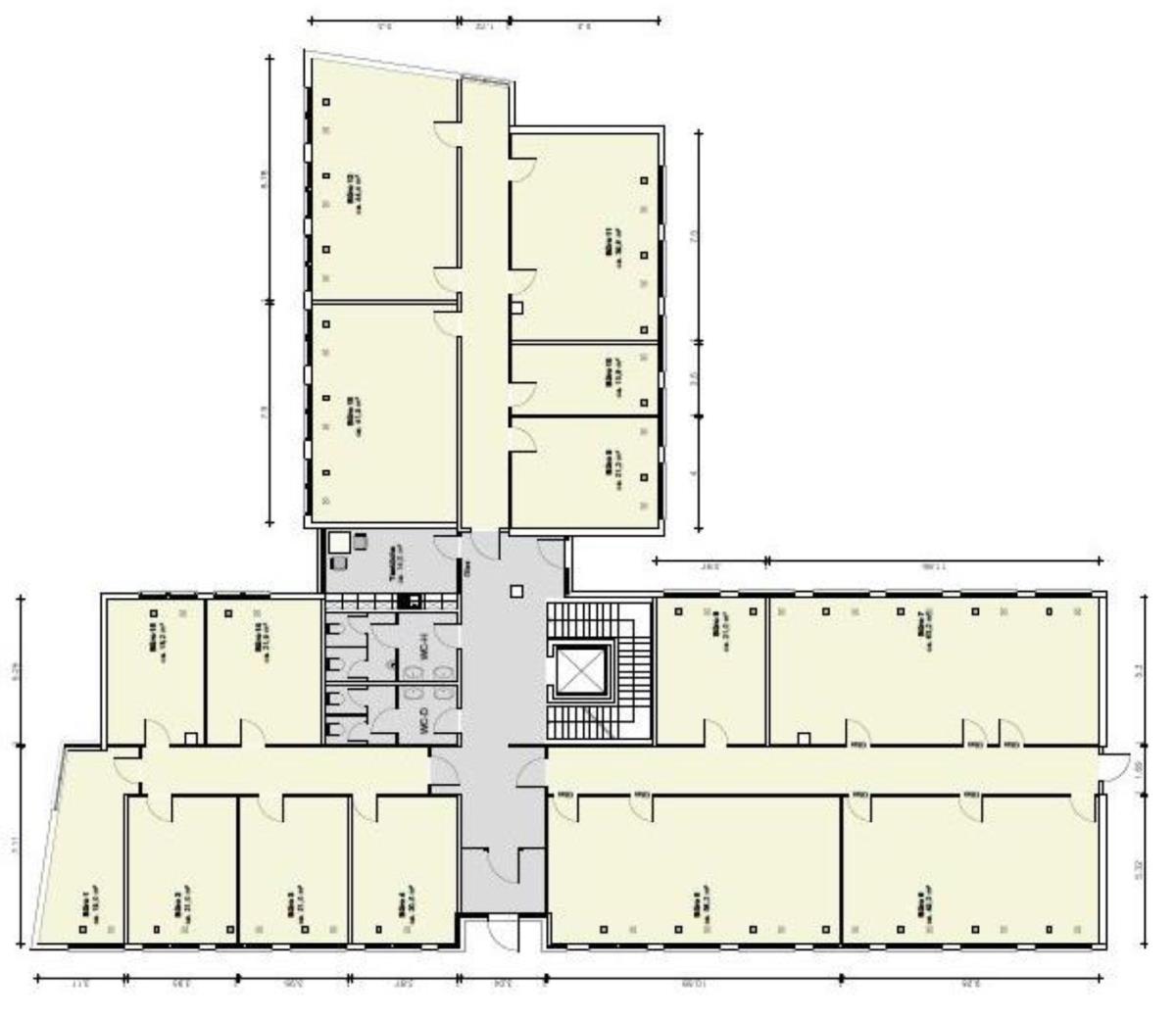
Bei der angebotenen Liegenschaft handelt es sich um ein dreigeschossiges Bürogebäude in attraktiver Lage von Essen. Die vakanten Büroflächen können nach Vereinbarung teilmöbliert übernommen werden. Die moderne Ausstattung der Flächen ermöglicht effizientes Arbeiten und der flexible Grundriss kann individuell an die Anforderungen des Mieters angepasst werden.
Derzeit stehen die folgende Flächen zur Disposition:
EG: 1.005,77 m², teilbar ab 380 m²
1. OG: 977,78 m², teilbar ab 354 m²
2. OG: 373 m²
Archiv:
UG: 193 m²
Die Büroimmobilie befindet sich im südlichen Teil von Essen, im beliebten Büropark Ruhrallee. In unmittelbarer Nähe befinden sich die Auffahrten zur A40, A52 und B227. ÖPVN-Anbindungen stehen dem Nutzer direkt zur Verfügung. Die Grünanlagen rund um den hochwertigen Gebäudekomplex sorgen für einen angenehmen Arbeitsplatz.
Bedeutende Unternehmen in der Büromarktzone: GEA Bischoff, PSI, Imex Dental, Kone
Hotels in der Umgebung: Hotel Franz, Webers Hotel, Petul Apart Hotel, Best Western Hotel
• Bodenbelag: Teppichboden
• Aufzug: Personenaufzug vorhanden
• Sonnenschutz: innen-/außenliegend, manuell
• Verkabelung: CAT-6
• Verkabelungsort: Bodentanks
• Beleuchtung: arbeitsplatzgerechte Deckenbeleuchtung
Die Ausstattung kann kann bei Bedarf angepasst werden!
Es gelten ausschließlich unsere AGB (www.ruhr-real.de/agb). Wir möchten Sie darauf hinweisen, dass die Angaben ausschließlich auf den uns vom Eigentümer übermittelten Unterlagen und Informationen basieren. Für Richtigkeit und Vollständigkeit übernehmen wir keine Gewähr. Zwischenvermietung vorbehalten.
Adresse
Auf Google Maps öffnen-
Stadt: Essen
-
PLZ: 45136
-
Land: Deutschland










