Attraktive, helle Büroräumlichkeiten | großzügig geschnitten | gute Verkehrsanbindung | Stellplätze vorhanden

  • 11,50€
  • 11,80€ pro m²
45127 Essen
Zu Vermieten
Attraktive, helle Büroräumlichkeiten | großzügig geschnitten | gute Verkehrsanbindung | Stellplätze vorhanden
45127 Essen
  • 11,50€
  • 11,80€ pro m²

Details

Aktualisiert am September 26, 2025 beim 3:11 p.m.
  • Immobilien-ID:1606
  • Preis: 11,50€
  • Gesamtfläche des Objekts:277 m²
  • Baujahr:1969
  • Art der Immobilie:Büroflächen
  • Eigenschaftenstatus:Zu Vermieten

Beschreibung

Bei der hier angebotenen Liegenschaft handelt es sich um einen attraktiven, hell ausgestalteten Büroflächenkomplex mit großzügig geschnittenen Büroflächen. Sowohl für Mitarbeiter als auch für Kunden stehen ausreichend Stellplätze vor dem Gebäude als auch in der hauseigenen Tiefgarage zur Verfügung.

Derzeit stehen die nachfolgenden Flächen zur Disposition:

4. OG: 277 m²
7. OG: 536 m²
8. OG: 437 m²

Das Objekt befindet sich zentraler Lage in Essen, unweit vom Essener Hauptbahnhof entfernt. Die Autobahnen A40, A52 sowie die Bundesstraße B224 sind in nur wenigen Fahrminuten zu erreichen. Die Anbindung an den öffentlichen Nahverkehr ist aufgrund der Nähe zum Essener Hauptbahnhof hervorragend. Zahlreiche, im direkten Umkreis liegende Restaurants und Geschäfte des täglichen Bedarfs sorgen für eine optimale Nahversorgung.

• Personenaufzug,
• Standardausstattung,
• Abhangdecke, Öffenbare Fenster,
• Teeküche, getr. Damen- u. Herren
• WCs, teilweise klimatisiert,
• Verkabelung nach Absprache,
• Abstellraum

Es gelten ausschließlich unsere AGB (www.ruhr-real.de/agb). Wir möchten Sie darauf hinweisen, dass die Angaben ausschließlich auf den uns vom Eigentümer übermittelten Unterlagen und Informationen basieren. Für Richtigkeit und Vollständigkeit übernehmen wir keine Gewähr. Zwischenvermietung vorbehalten.

Energieeffizienz

  • Energieausweis-Art: Verbrauch
  • Stromverbrauchskennwert: 43,2 kWh/(m²*a)
  • Heizenergieverbrauchskennwert: 264,4 kWh/(m²*a)
  • Energieausweis-Jahrgang: vor 2014

  • Stadt Essen
  • PLZ 45127
  • Land Deutschland

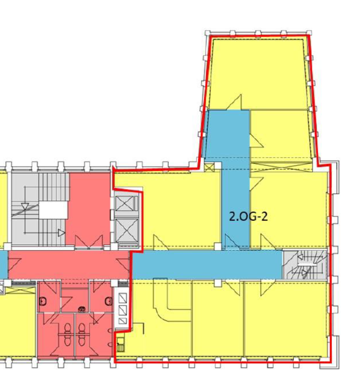
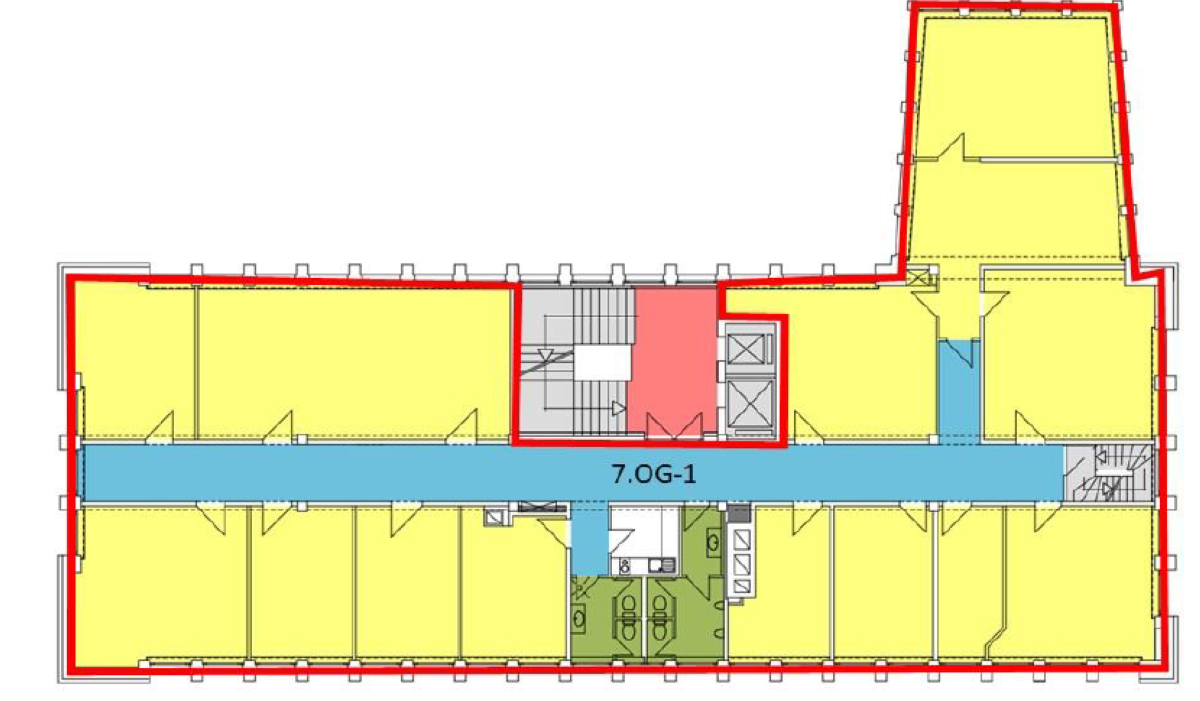
Grundrisse

image

Beschreibung:

image

Beschreibung:

image

Beschreibung:

Compare listings

Vergleichen
Samuel Kruse
  • Samuel Kruse