Attraktive und modernisierte Büroflächen in der Dortmunder Innenstadt | RUHR REAL

  • 14,00€
  • 14,00€ pro m²
44137 Dortmund
Zu Vermieten
Attraktive und modernisierte Büroflächen in der Dortmunder Innenstadt | RUHR REAL
44137 Dortmund
  • 14,00€
  • 14,00€ pro m²

Details

Aktualisiert am September 25, 2025 beim 3:22 p.m.
  • Immobilien-ID:1017/E1
  • Preis: 14,00€
  • Gesamtfläche des Objekts:684 m²
  • Baujahr:1960
  • Art der Immobilie:Büroflächen
  • Eigenschaftenstatus:Zu Vermieten

Beschreibung

Bei dem angebotenen Objekt handelt es sich um ein 1960 erbautes und stetig modernisiertes Bürogebäude. Situiert in der Dortmunder Innenstadt, nahe des Hauptbahnhofes ist es besonders attraktiv. Die Liegenschaft befindet sich in einem sehr modernen und gepflegtem Zustand und überzeugt neben der hervorragenden Lage auch durch sein äußeres Erscheinungsbild. Die hochwertige Marmor-Hausfassade lassen das Objekt edel wirken und die hellen Büroräume schaffen eine angenehme Arbeitsatmosphäre.
Darüber hinaus verfügt das Gebäude über einen flexiblen Grundriss und somit über optimale Aufteilungsmöglichkeiten. Vom Einzelbüro bis zum Großraumbüro ist in dieser Fläche alles darstellbar und die Gestaltung kann dabei individuell nach Mieterwunsch erfolgen.
Stellplätze sind nach Mieterwunsch ebenfalls flexibel anmietbar.

Zur Zeit stehen folgende Flächen zur Disposition:

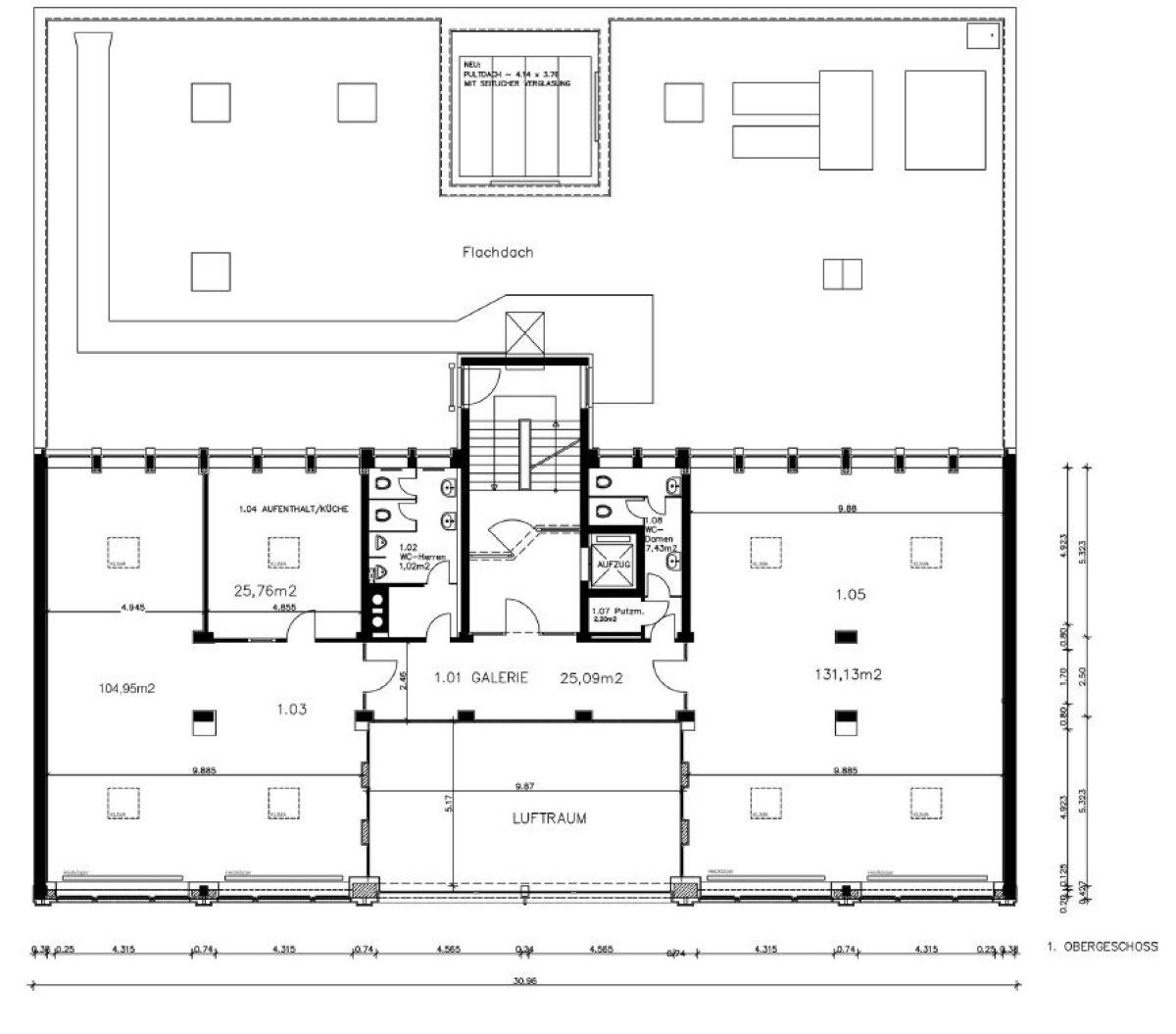
EG: 684,21 m²
1. OG: 310,92 m²
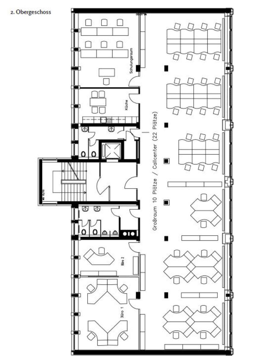
2. OG: 364,72 m²
3. OG: 353,72 m²
4. OG: 361,34 m²
5. OG: 340,49 m²

Die angebotene Bürofläche ist in der Dortmunder Innenstadt situiert und befindet sich in direkter Nachbarschaft zum Hauptbahnhof. Die zentrale Lage mit ausgezeichneter ÖPNV-Anbindung und Infrastruktur hat eine Vielzahl an umsatzstarken Firmen jeglicher Branche hergezogen. Auch bekannte Modeketten, Gastronomien, Parfümerien oder Elektronik Märkte sind zahlreich vertreten. Markante Gebäude sind die Corso Passage sowie das Krügerhaus.

Bedeutende Unternehmen in der Büromarktzone: Ruhr Nachrichten Verlag, Creditreform Dortmund

Hotels in der Umgebung: Hotel NH Dortmund, Sport Hotel Dortmund, Hotel Esplanade, Hotel Königshof, Mercure Hotel Dortmund

• Öffenbare Fenster: vorhanden
• Bodenbelag: Teppichboden
• Sonnenschutz: außenliegend elektrisch
• Teeküche: voll ausgestattet
• Beleuchtung: Aufbauleuchten
• Kühlung: nicht vorhanden

Es gelten ausschließlich unsere AGB (www.ruhr-real.de/agb). Wir möchten Sie darauf hinweisen, dass die Angaben ausschließlich auf den uns vom Eigentümer übermittelten Unterlagen und Informationen basieren. Für Richtigkeit und Vollständigkeit übernehmen wir keine Gewähr. Zwischenvermietung vorbehalten.

Energieeffizienz

  • Energieausweis-Jahrgang: nicht verfügbar

  • Stadt Dortmund
  • PLZ 44137
  • Land Deutschland

Grundrisse

image

Beschreibung:

image

Beschreibung:

image

Beschreibung:

Compare listings

Vergleichen
Frederic Jeschke
  • Frederic Jeschke