Attraktiver Bürokomplex in Dortmund Marten | gute Verkehrs- und ÖPNV-Anbindungen
- 6,00€
- 6,00€ pro m²
- 6,00€
- 6,00€ pro m²
Details
Updated on September 26, 2025 at 3:11 p.m.-
Immobilien-ID 1293/E10
-
Preis 6,00€ / m²
-
Gesamtfläche des Objekts 206 m²
-
Art der Immobilie Büroflächen
-
Eigenschaftenstatus Zu Vermieten
-
Nebenkosten Auf Anfrage
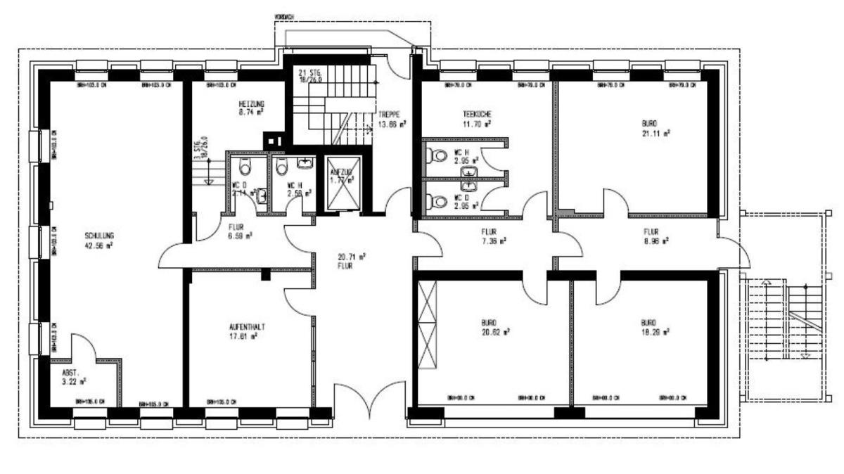
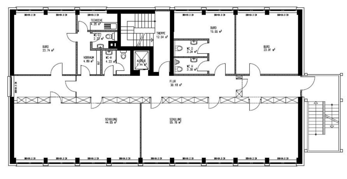
Beschreibung
Bei der angebotenen Liegenschaft handelt es sich um einen modernen Logistikstandort mit großzügiger Freifläche sowie Büro-/ und Sozialräumen. Die vakanten Flächen befinden sich in einem gepflegten Zustand und können flexibel an die individuellen Anforderungen des Mieters angepasst werden. Die Lagerhallen sind ebenerdig über elektrische Rolltore erschlossen.
Auf dem gesamten Gelände stehen dem Nutzer zahlreich Stellplätze zur Verfügung.
Derzeit stehen die folgenden Flächen zur Disposition:
EG: ca. 206 m²
1. OG: ca. 206 m²
2. OG: ca. 206 m²
Das Objekt Dortmund Oberdorstfeld ist sehr verkehrsgünstig gelegen. In nur wenigen Fahrminuten erreicht man die Autobahnen A40, A45 sowie die B1. Ferner ist die Liegenschaft gut an den ÖPNV angeschlossen. Der angrenzende Revierpark Wischlingen lädt zu entspannten Pausen ein.
Hotels in der Umgebung: Courtyard Dortmund, Steigenberger Hotel Dortmund, Radisson Blu Hotel Dortmund
Bedeutende Unternehmen in der Büromarktzone: Hülpert Gruppe, B.A.S. Verkehrstechnik AG, Technologiepark Dortmund
• Bodenbelag: Teppichboden, PVC-Boden in Holzoptik
• Verkabelung: vom Vormieter
• Verkabelungsort: vom Vormieter
• Kühlung: nach Vereinbarung
• Beleuchtung: Deckenleuchten
Es gelten ausschließlich unsere AGB (www.ruhr-real.de/agb). Die Halle ist nicht für Veranstaltungsräume geeignet. Wir möchten Sie darauf hinweisen, dass die Angaben ausschließlich auf den uns vom Eigentümer übermittelten Unterlagen und Informationen basieren. Für Richtigkeit und Vollständigkeit übernehmen wir keine Gewähr. Zwischenvermietung vorbehalten.
Adresse
Auf Google Maps öffnen-
Stadt: Dortmund
-
PLZ: 44379
-
Land: Deutschland





