Ausbau nach Mieterwunsch | Bürofläche in der Duisburger City | Glasfaseranschluss vorhanden

  • 10,85€
  • 10,75€ pro m²
47051 Duisburg
Zu Vermieten
Ausbau nach Mieterwunsch | Bürofläche in der Duisburger City | Glasfaseranschluss vorhanden
47051 Duisburg
  • 10,85€
  • 10,75€ pro m²

Details

Updated on September 26, 2025 at 3:10 p.m.
  • Immobilien-ID:1841/E1
  • Preis: 10,85€
  • Art der Immobilie:Büroflächen
  • Eigenschaftenstatus:Zu Vermieten

Beschreibung

Bei dem attraktiven Geschäftshaus handelt es sich um eine beliebte Anlaufstelle verschiedenster Praxen, sowie Dienstleistern. Alle Ebenen des Gebäudes sind sowohl über das moderne Treppenhaus, als auch über einen Personenaufzug barrierefrei zu erschließen. Der Grundriss ist flexibel und kann nach den Wünschen des Mieters angepasst werden.

Derzeit stehen folgende Flächen zur Disposition:

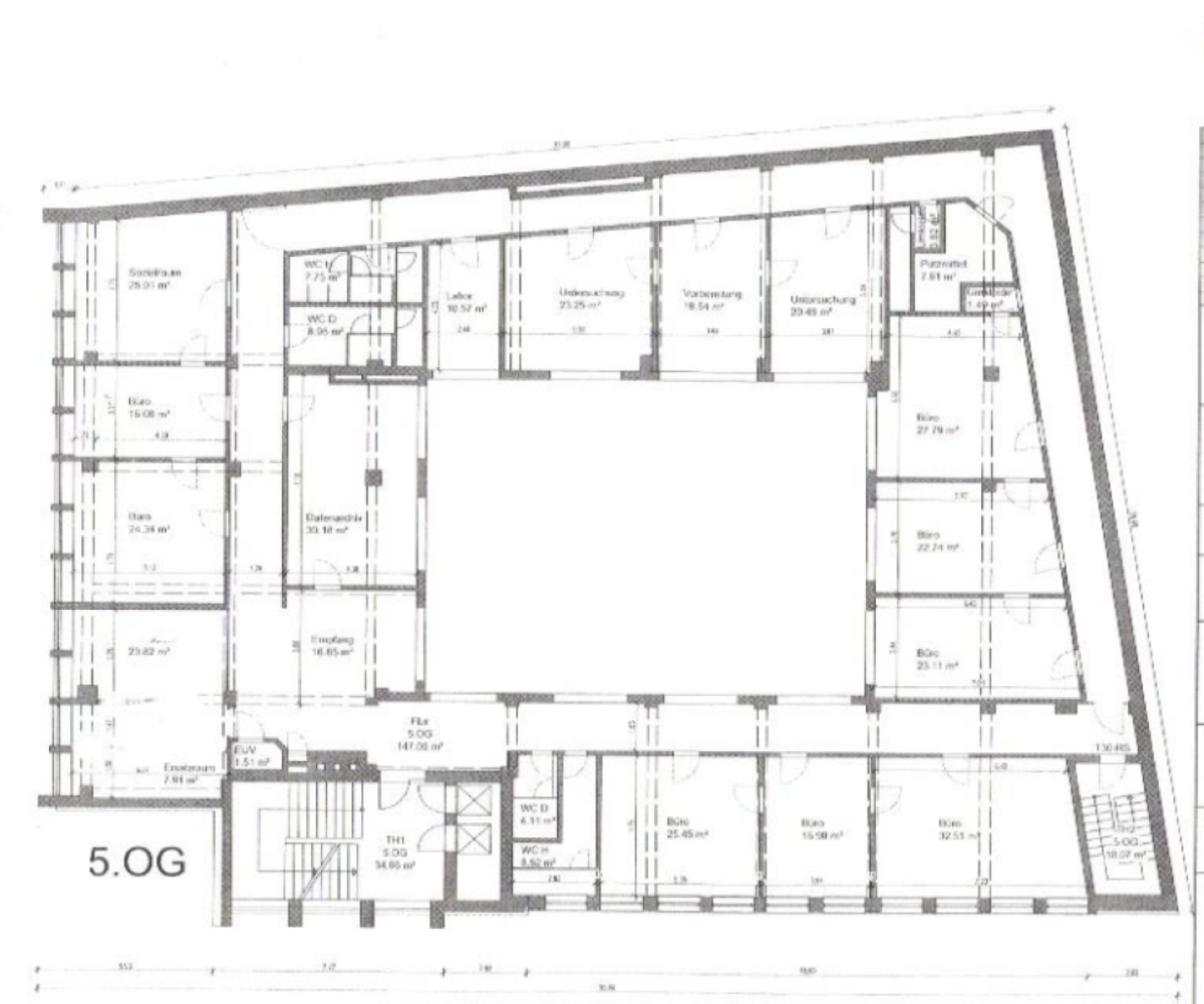
5. OG: ca. 551 m²
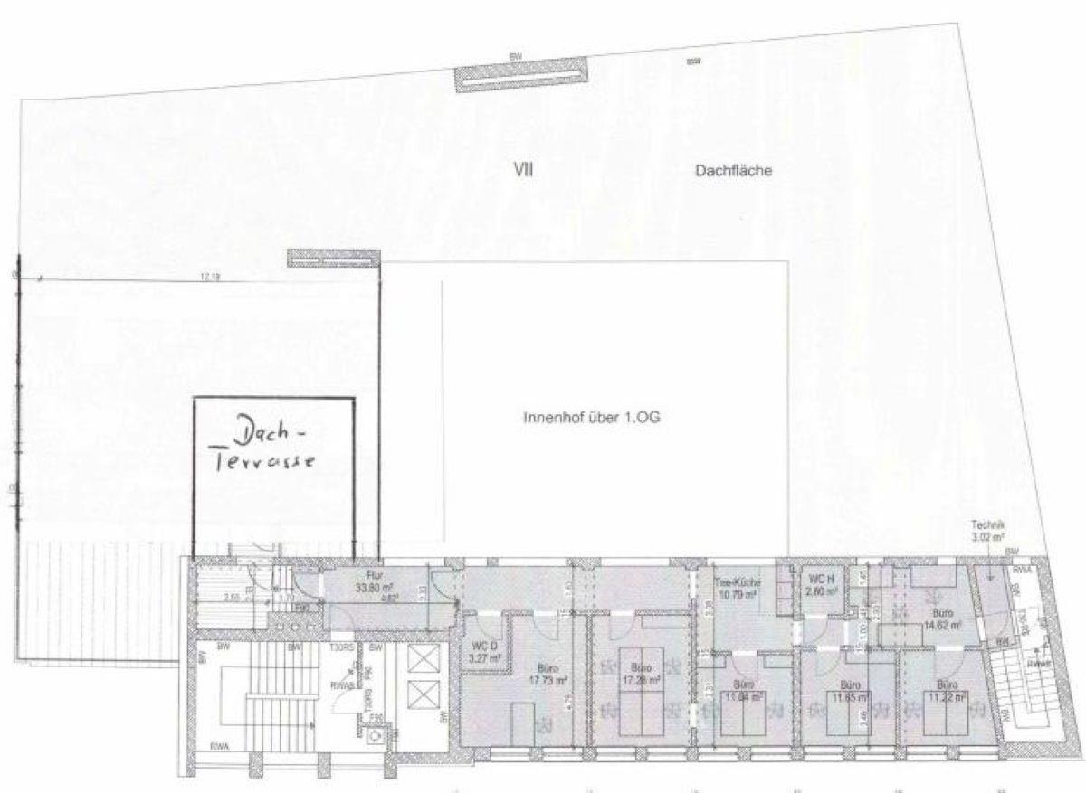
6. OG: ca. 551 m²

Die zentral gelegene Immobilie befindet sich in der Duisburger Innenstadt. Die A 59 und A 40 befinden sich in unmittelbarer Nähe. Des Weiteren sind Bus- und Bahnhaltestellen, sowie der naheliegende Hauptbahnhof in wenigen Gehminuten zu erreichen. In der direkten Nachbarschaft befindet sich das Forum Duisburg, welches als Zentrum für Einzelhandel, Gastronomie und Büro in der City bekannt ist.

Hotels in der Umgebung: Duisburger Hof, Mercure Hotels, Ibis, ferrotel Duisburg

Bedeutende Unternehmen in der Büromarktzone: TARGO Bank Zentrale, Finanzamt, IHK Duisburg

• Verkabelung: CAT-7 Verkabelung vom Vormieter, Glasfaseranschluss vorhanden
• Verkabelungsort: Bodentanks
• Bodenbelag: Teppichboden
• Beleuchtung: LED-Spots
• Sonnenschutz: elektrische Außenverschattung
• Aufzug: Personenaufzug

Die Ausstattung kann bei Bedarf angepasst werden!

Es gelten ausschließlich unsere AGB (www.ruhr-real.de/agb). Wir möchten Sie darauf hinweisen, dass die Angaben ausschließlich auf den uns vom Eigentümer übermittelten Unterlagen und Informationen basieren. Für Richtigkeit und Vollständigkeit übernehmen wir keine Gewähr. Zwischenvermietung vorbehalten.

Energieeffizienz

  • Energieausweis-Jahrgang: not available

  • Stadt Duisburg
  • PLZ 47051
  • Land Deutschland

Grundrisse

image

Description:

image

Description:

image

Description:

Compare listings

Compare
Jonas Bruckmann
  • Jonas Bruckmann