Büro- & Schulungsflächen auf der Bonner Straße
- 10.500,00€
Details
Updated on Oktober 22, 2025 at 12:01 a.m.-
Immobilien-ID 4322/G1/E1
-
Preis 10.500,00€ / m²
-
Gesamtfläche des Objekts 199 m²
-
Art der Immobilie Büroflächen
-
Eigenschaftenstatus Zu Vermieten
-
Nebenkosten Auf Anfrage
Beschreibung
Die moderne Schulungsfläche auf dem ehemaligen Möller-Glöckner-Gelände überzeugt durch eine funktionale Ausstattung: PVC-Boden, CAT-7-Verkabelung, Fensterbankkabelkanäle und eine Lüftungsanlage mit Nachklimatisierung. Ein manueller Blendschutz sorgt für angenehme Lichtverhältnisse.
Barrierefreiheit ist durch ein behindertengerechtes WC und einen Personenaufzug gewährleistet. Eine Gegensprechanlage sowie eine Brandmeldeanlage (BMA) ergänzen die Ausstattung.
Zwei Außenstellplätze können für je 110,00 EUR monatlich angemietet werden.
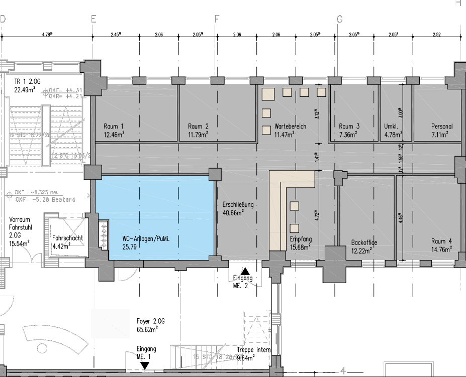
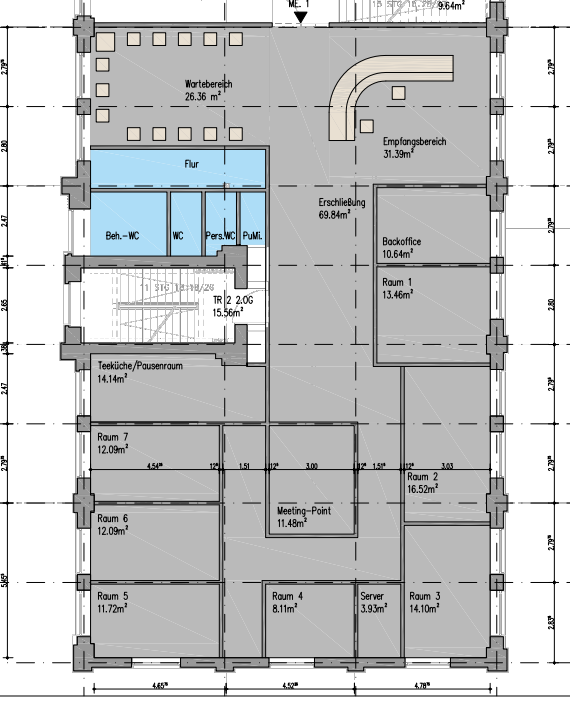
Zur Zeit stehen im 2. OG folgende Flächen zu Verfügung:
2. OG Gesamt 800 m²
2. OG ME1 207 m²
2. OG ME2 272 m²
2. OG ME3 199 m²
Die Lage befindet sich in einem gut angebundenen Stadtteil im Kölner Süden mit einer Mischung aus Wohn- und Geschäftsnutzung. Haltestellen des öffentlichen Nahverkehrs sind in wenigen Gehminuten erreichbar und bieten direkte Verbindungen in die Innenstadt sowie zu weiteren Stadtteilen. Gastronomische Angebote wie Cafés, Restaurants und Imbisse befinden sich in fußläufiger Entfernung. Der Kölner Hauptbahnhof ist mit dem Auto in etwa 15 Minuten erreichbar, der Flughafen Köln/Bonn liegt rund 20 Minuten entfernt. Die nächste Autobahnauffahrt ist in kurzer Zeit erreichbar und sorgt für eine gute Anbindung an das regionale und überregionale Straßennetz.
• Cafeteria vorhanden
• PVC-Boden
• Sanitäranlagen
• barrierefreies WC
• Kellerfläche vorhanden
Es gelten ausschließlich unsere AGB (www.ruhr-real.de/agb). Die Halle ist nicht für Veranstaltungsräume geeignet. Wir möchten Sie darauf hinweisen, dass die Angaben ausschließlich auf den uns vom Eigentümer übermittelten Unterlagen und Informationen basieren. Für Richtigkeit und Vollständigkeit übernehmen wir keine Gewähr. Zwischenvermietung vorbehalten.
Adresse
Auf Google Maps öffnen-
Stadt: Köln
-
PLZ: 50968
-
Land: Deutschland








