Citykern | Attraktive Bürofläche ab 9,50 EUR / m² | mitten im Geschehen!
- 9,50€
- 9,50€ pro m²
- 9,50€
- 9,50€ pro m²
Details
Updated on September 25, 2025 at 3:20 p.m.-
Immobilien-ID 682/E1
-
Preis 9,50€ / m²
-
Gesamtfläche des Objekts 375 m²
-
Art der Immobilie Büroflächen
-
Eigenschaftenstatus Zu Vermieten
-
Nebenkosten Auf Anfrage
Beschreibung
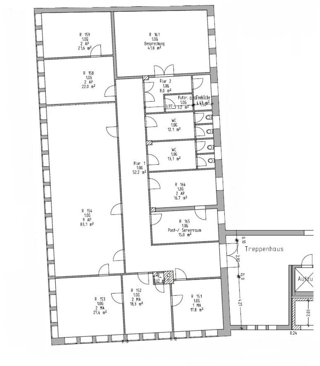
Bei dem angebotenen Objekt handelt es sich um eine Büroimmobilie in der Dortmunder Innenstadt. Die vakanten Büroflächen sind durch einen Personenaufzug, sowie ein Treppenhaus erschlossen und verfügen über eine vollausgestattete Teeküche.
Die Raumausstattung, sowie die Raumaufteilung sind flexibel und können individuell an den Mieterwunsch angepasst werden.
Derzeit stehen die folgenden Flächen zur Disposition:
1. OG: 375 m²
Das Objekt befindet sich innerhalb des Wallrings mitten in der Fußgängerzone von Dortmund. Die zentrale Lage gewährleistet eine exzellente Nahversorgung. Diverse Restaurants, Händler und Unternehmen der Lebensmittelbranche befinden sich im unmittelbaren Umfeld. Ferner ist die Liegenschaft hervorragend an den ÖPNV angebunden. In nur wenigen Fahrminuten erreicht man darüber hinaus die Autobahnen A1, A2, A40, A44 sowie die A 45.
Bedeutende Unternehmen in der Büromarktzone: Creditreform Dortmund, Ruhr Nachrichten Verlag, AOK, Continentale
Hotels in der Umgebung: Sport Hotel Dortmund, Hotel Esplanade, Hotel NH Dortmund, Mercure Hotel Dortmund
• Bodenbelag: Teppichboden
• Verkabelung: CAT-7
• Kabelführung: Känale über die Decke
• Beleuchtung: Rasterleuchten
• Teeküche: voll ausgestattet
• Aufzug: Personenaufzug
• Barrierearm: Ja, ebenerdiger Zugang
• Klimatisierung: nach Absprache
Die Ausstattung kann kann bei Bedarf angepasst werden!
Es gelten ausschließlich unsere AGB (www.ruhr-real.de/agb). Wir möchten Sie darauf hinweisen, dass die Angaben ausschließlich auf den uns vom Eigentümer übermittelten Unterlagen und Informationen basieren. Für Richtigkeit und Vollständigkeit übernehmen wir keine Gewähr. Zwischenvermietung vorbehalten.
Adresse
Auf Google Maps öffnen-
Stadt: Dortmund
-
PLZ: 44135
-
Land: Deutschland







