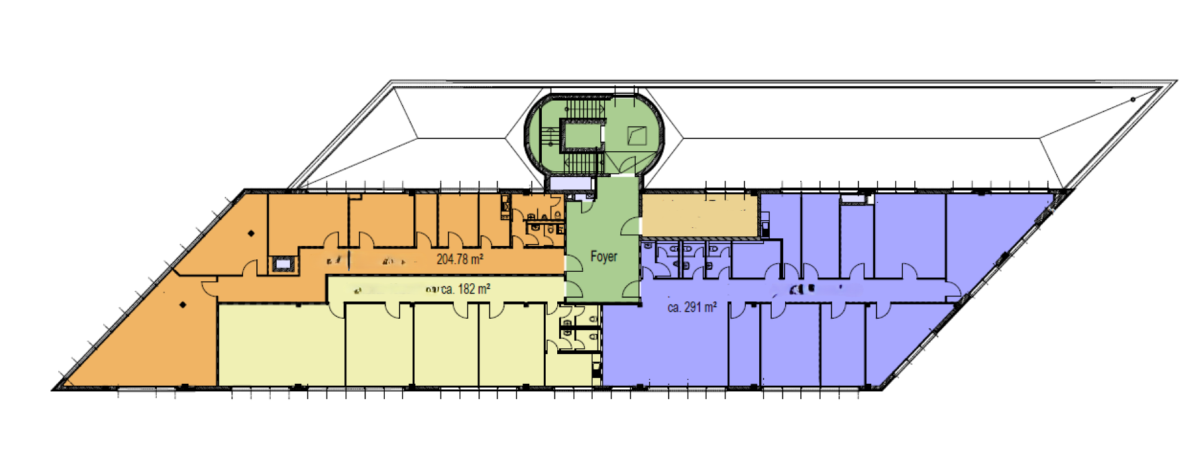
Direkt am Hauptbahnhof | moderne Büroflächen | 291 m²
  • 0

Details

Updated on April 22, 2026 at 1:55 p.m.
  • Immobilien-ID 4702/E2
  • Preis Auf Anfrage
  • Gesamtfläche des Objekts 291 m²
  • Baujahr 2009
  • Art der Immobilie Büroflächen
  • Eigenschaftenstatus Zu Vermieten
  • Nebenkosten Auf Anfrage

Beschreibung

Die moderne Bürofläche mit funktionaler Ausstattung befinden sich im Brücken-Center in Remscheid in zentraler Lage. Die Einheit verfügt über eine zeitgemäße Verkabelung über Bodentanks sowie eine effiziente Beleuchtung durch Rasterdeckenleuchten. Der Teppichboden sorgt für eine angenehme Arbeitsatmosphäre. Für optimalen Komfort ist ein außenliegender, elektrisch steuerbarer Sonnenschutz vorhanden. Ein Personenaufzug gewährleistet einen bequemen Zugang zu allen Etagen. Ergänzt wird das Angebot durch eine voll ausgestattete Teeküche, die den Arbeitsalltag ideal unterstützt. Ankermieter dieses Objektes, welches über insgesamt 17 Mieteinheiten verfügt, ist Kaufland, TAKKO, Intersport und Tedi.

Die Immobilie befindet sich im Zentrum von Remscheid mit sehr guter Anbindung an das Straßen- und Verkehrsnetz. Die Autobahn A 1 ist in kurzer Fahrzeit erreichbar und verbindet die Stadt effizient mit dem umliegenden Rhein-Ruhr-Gebiet. Der Hauptbahnhof Remscheid liegt in direkter Nachbarschaft, was eine schnelle Erreichbarkeit von Bahnverbindungen bedeutet, ÖPNV-Haltestellen für Busse befinden sich fußläufig in wenigen Minuten. Zum Flughafen Düsseldorf benötigt man mit dem Auto etwa 45 Minuten. Die Nahversorgung ist dank der im gleichen Gebäude befindlichen Supermärkten und Restaurants/ Bäckereien bestens bedient.

bedeutende Unternehmen in der Büromarktzone: Schulten Gebäudedienste, HEYCO Holding GmbH, ADAC

Hotels in der Nähe: mk-Hotel Remscheid, Holday Inn Express Remscheid by IHG, Hotel König

• Verkabelungsort: Bodentanks
• Beleuchtung: Ratserdeckenleuchten
• Bodenbelag: Teppichboden
• Sonnenschutz: außenliegend, elektrisch
• Aufzug: Personenaufzug
• Teeküche: voll ausgestattet
• PKW-Stellplätze:507
• Stellplatzart: Außenstellplatz, Parkhaus, Tiefgarage

Es gelten ausschließlich unsere AGB (www.ruhr-real.de/agb). Wir möchten Sie darauf hinweisen, dass die Angaben ausschließlich auf den uns vom Eigentümer übermittelten Unterlagen und Informationen basieren. Für Richtigkeit und Vollständigkeit übernehmen wir keine Gewähr. Zwischenvermietung vorbehalten.

Energieeffizienz

  • Energieausweis-Jahrgang: nicht verfügbar

  • Stadt: Remscheid
  • PLZ: 42859
  • Land: Deutschland

Eigenschaften

Grundrisse