Entern Sie den Innenhafen | Ihr perfektes Büro mit Blick aufs Wasser | Klimatisierung | RUHR REAL
- 13,50€
- 13,50€ pro m²
- 13,50€
- 13,50€ pro m²
Details
Updated on April 8, 2026 at 11:46 a.m.-
Immobilien-ID 486/E1
-
Preis 13,50€ / m²
-
Gesamtfläche des Objekts 164 m²
-
Baujahr 1999
-
Art der Immobilie Büroflächen
-
Eigenschaftenstatus Zu Vermieten
-
Nebenkosten 4 € / m²
Beschreibung
Bei der sehr besonderen, aus Backstein gebauten Büroimmobilie handelt es sich um ein Objekt in bester Lage des Duisburger Innenhafen. Das Objekt verfügt über eine gepflegte Ausstattung, eine großzügige Raumgestaltung und zwei attraktive Dachterassen . Die Immobilie besticht nicht nur durch ihre Lage, sondern auch durch eine gute ÖPNV-Anbindung. In der hauseigenen Tiefgarage stehen Stellplätze zur Anmietung bereit.
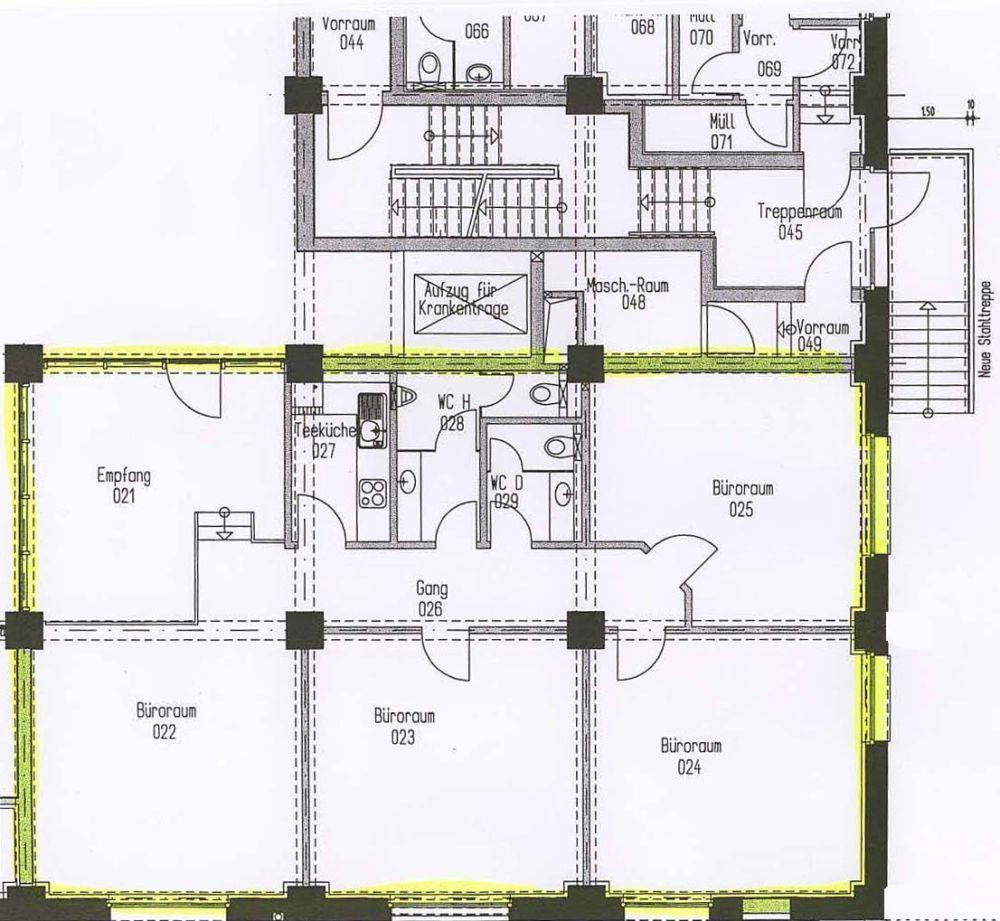
Folgende Flächen stehen derzeit zur Disposition:
EG: 164 m²
1. OG: 634 m²
4. OG: 662 m² teilbar ab 300 m²
5. OG: 95 m² (nicht separat verfügbar)
Der Innenhafen, ein früherer Industriehafen, gilt als Musterbeispiel für den Strukturwandel im Ruhrgebiet. Der heutige Innenhafen zeichnet sich durch moderne Büroneubauten entlang der Schifferstraße, sowie ehemalige Speichergebäude aus. Die Objekte bieten fast ausnahmslos einen direkten Blick auf das Wasser.
Zu den bedeutensten Immobilien im Innenhafen zählen die Objekte: H2-Office, Looper, Five Boats, Küppersmühle und das Landesarchiv NRW
Bedeutende Unternehmen in der Büromarktzone: Mitsubishi Hitachi Power, SPAETER, Volksbank Rhein-Ruhr, PKF
Hotels der Umgebung: Wyndham Duisburger Hof, Intercity Hotel, Ibis Budget City
• Bodenbelag: Laminat-, Fliesen-, Teppichboden
• Verkabelung: CAT-7/ vom Vormieter
• Klimatisierung: Wand- und Deckengeräte
• Verkabelungsort: Bodentanks
• Beleuchtung: arbeitsplatzgerechte Beleuchtung
• Aufzug: Personenaufzug
• Sonnenschutz: innenliegend, manuell
• Teeküche: voll ausgestattet
Die Ausstattung kann kann bei Bedarf angepasst werden!
Es gelten ausschließlich unsere AGB (www.ruhr-real.de/agb). Wir möchten Sie darauf hinweisen, dass die Angaben ausschließlich auf den uns vom Eigentümer übermittelten Unterlagen und Informationen basieren. Für Richtigkeit und Vollständigkeit übernehmen wir keine Gewähr. Zwischenvermietung vorbehalten.
Adresse
Auf Google Maps öffnen-
Stadt: Duisburg
-
PLZ: 47051
-
Stadtteil: Altstadt
-
Land: Deutschland







