Flexible Büroflächen im Westfalencenter | RUHR REAL

  • 12,50€
  • 12,50€ pro m²
44137 Dortmund
Zu Vermieten
Flexible Büroflächen im Westfalencenter | RUHR REAL
44137 Dortmund
  • 12,50€
  • 12,50€ pro m²

Details

Aktualisiert am September 26, 2025 beim 3:11 p.m.
  • Immobilien-ID:297/E18
  • Preis: 12,50€
  • Gesamtfläche des Objekts:633 m²
  • Baujahr:1998
  • Art der Immobilie:Büroflächen
  • Eigenschaftenstatus:Zu Vermieten

Beschreibung

Das Westfalen-Center Dortmund zeichnet sich durch den vielfältigen Mietermix, ein repräsentatives Foyer und attraktive Büroflächen aus. Die meisten Flächen sind in Form eines open Space gestaltet. Jedes Geschoss ist mit diversen Personenaufzügen erschlossen.
Darüber hinaus stehen in der Tiefgarage Stellplätze zur Anmietung bereit. Die parkartige Grünanlage, die das Objekt umschließt, bietet Ihren Mitarbeitern in der Mittagspause einen Rückzugsort. Zusätzliche Lagerflächen stehen ebenfalls zur Anmietung zur Verfügung.
Das Gebäudw wurde 2019 vollständig saniert und verfügt über insgesamt 3 drei Innenhöfe.

*die Nebenkostenvorauszahlung versteht sich zzgl. Verwaltungskosten- und Instandhaltungspauschale

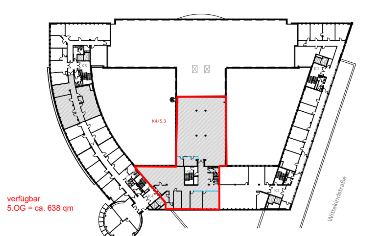
Folgende Flächen stehen derzeit zur Disposition:

EG (Hausnummer 79) – ca. 1.088 m² / teilbar ab 216 m²
1. OG (Hausnummer 81) – ca. 349 m²
2. OG (Hausnummer 32) – ca. 453 m² / teilbar ab 212 m²
2. OG (Hausnummer 77) – ca. 570 m²
2. OG (Hausnummer 79) – ca. 633 m²
2. OG (Hausnummer 81) – ca. 349 m²
3. OG (Hausnummer 30) – ca. 467 m² / teilbar ab 215 m²

Das Objekt ist direkt am beliebten Kreuzviertel gelegen und ist hervorragend an den öffentlichen Personennahverkehr angebunden. In nur wenigen Minuten erreicht man die Autobahn sowie den Citykern von Dortmund.

Hotels der Umgebung: Steigenberger, Ibis Hotel Dortmund City, Coffee Fellows Hotel Dortmund, B&B Hotel

Bedeutende Unternehmen in der Büromarktzone: Signal Iduna, Commerzbank

• Verkabelung: vom Vormieter
• Verkabelungsort: Doppelboden
• Kühlung/Lüftung: nach Vereinbarung / teilweise klimatisiert
• Sonnen-/Blendschutz: außenliegend elektrisch
• Bodenbelag: Teppichboden, nach Mieterwunsch
• Teeküche: voll ausgestattet
*Teilweise Klima/Kühldecken

Es gelten ausschließlich unsere AGB (www.ruhr-real.de/agb). Wir möchten Sie darauf hinweisen, dass die Angaben ausschließlich auf den uns vom Eigentümer übermittelten Unterlagen und Informationen basieren. Für Richtigkeit und Vollständigkeit übernehmen wir keine Gewähr. Zwischenvermietung vorbehalten.

Energieeffizienz

  • Energieausweis-Art: Verbrauch
  • Primärenergieträger: Gas
  • Heizenergieverbrauchskennwert: 102,8 kWh/(m²*a)
  • Baujahr (Energieausweis): 1998
  • Energieausweis-Jahrgang: vor 2014

  • Stadt Dortmund
  • PLZ 44137
  • Stadtteil Mitte (Dortmund)
  • Land Deutschland

Grundrisse

image

Beschreibung:

image

Beschreibung:

image

Beschreibung:

Compare listings

Vergleichen
Frederic Jeschke
  • Frederic Jeschke