Freistehendes Bürogebäude in Wattenscheid | viele Stellplätze! Repräsentativer Empfangsbereich
- 8,00€
- 9,50€ pro m²
- 8,00€
- 9,50€ pro m²
Details
Updated on April 8, 2026 at 12:30 p.m.-
Immobilien-ID 4681/E2
-
Preis 8,00€ / m²
-
Gesamtfläche des Objekts 927 m²
-
Art der Immobilie Büroflächen
-
Eigenschaftenstatus Zu Vermieten
-
Nebenkosten 6,20 € / m²
Beschreibung
Die Büroimmobilie überzeugt durch ihre moderne, funktionale Ausstattung sowie helle, großzügige Fensterfronten, die für eine angenehme Arbeitsatmosphäre sorgen. Ein repräsentativer Empfangsbereich mit Tresen bietet einen professionellen ersten Eindruck. Die Flächen sind barrierefrei erreichbar und ermöglichen damit einen komfortablen Zugang für Mitarbeitende und Besucher. Zahlreiche Stellplätze runden das Angebot ab und gewährleisten eine optimale Erreichbarkeit.
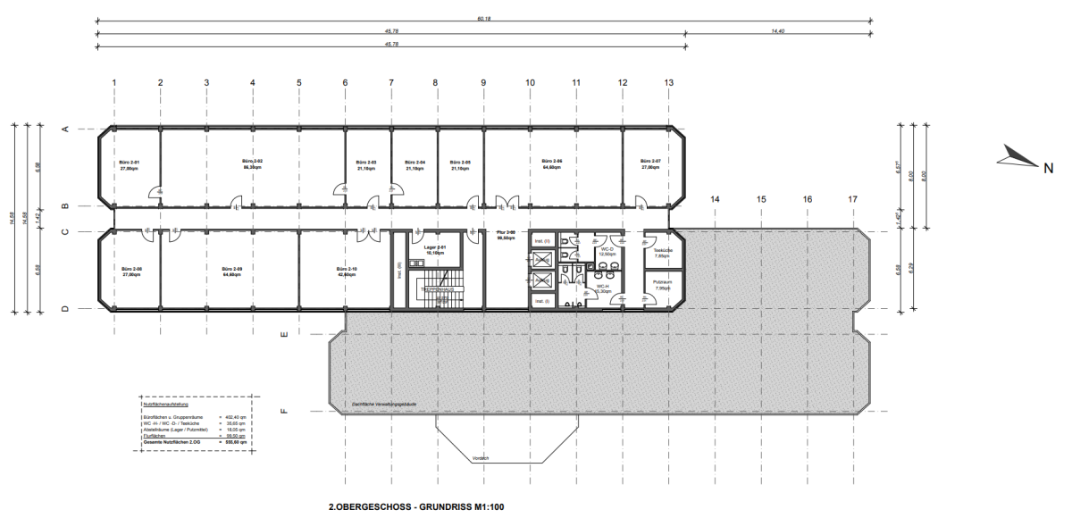
Derzeit stehen folgende Flächen zur Disposition:
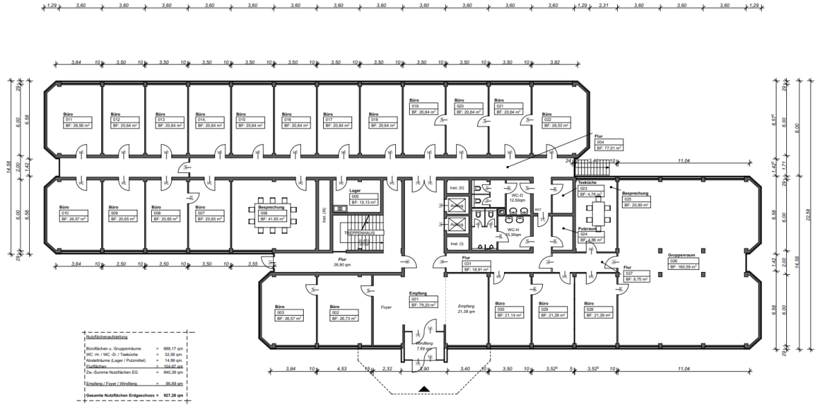
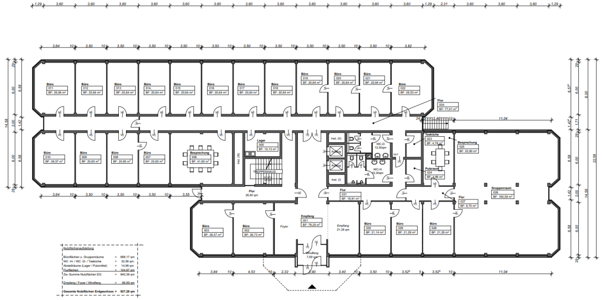
EG: ca. 927 m²
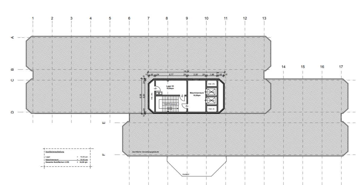
1. OG: 923 m²
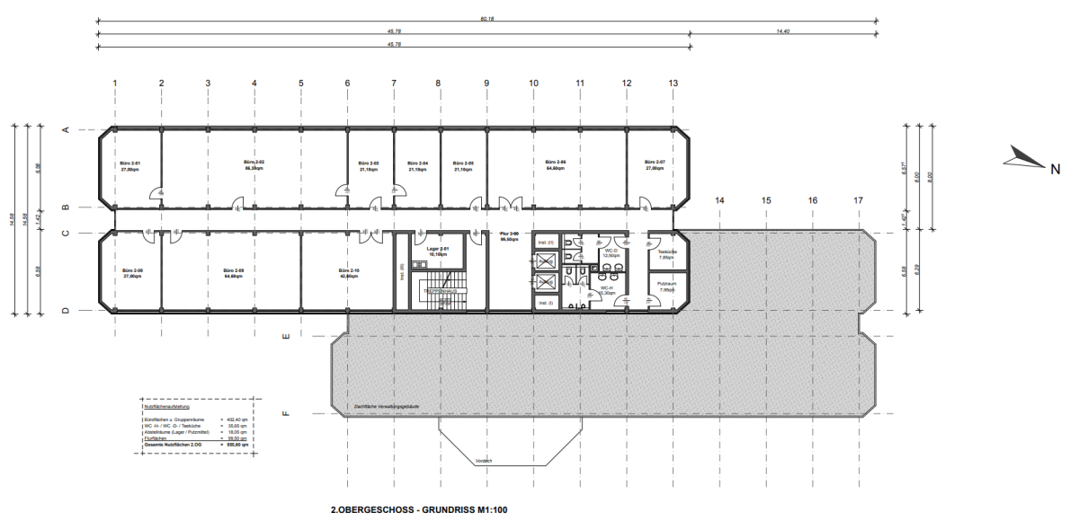
2. OG: 556 m²
Die Liegenschaft befindet sich zentral im Stadtteil Wattenscheid, umgeben von Nahversorgung und Dienstleistungen. Eine Bushaltestelle ist in rund 2 Minuten zu Fuß erreichbar, der Hauptbahnhof von Bochum ist in ca. 14 Minuten befahren. Die A40 ist in wenigen Minuten erreichbar und bietet eine schnelle Anbindung in alle Richtungen. Der Flughafen Düsseldorf liegt mit dem Auto rund 25 Minuten entfernt.
Hotels in der Umgebung: Hotel Bochum Wattenscheid – Affiliated by Meliá, Mercure Hotel Bochum City, Four Points Flex by Sheraton
bedeutende Unternehmen der Büromarktzone: Kompernaß Handelsgesellschaft, Wela GmbH, inventos, meeva GmbH
• Bodenbelag: Vinylboden in Holzoptik
• Verkabelungsort: Fensterbankkabelkanäle
• natürliche Be-/ Entlüftung
• Teeküche: voll ausgestattet
• Heizungsart: Gaszentralheizung
• Beleuchtung: Deckenleuchten
• Verkabelung: CAT-5E
Highlights:
• barrierefrei
• Lager-/ Archivflächen
• Empfangsbereich mit Tresen
• viele große Fensterelemente
• Konferenz- & Pausenräume
• getrennte WC-Anlagen
• Windfang
Es gelten ausschließlich unsere AGB (www.ruhr-real.de/agb). Wir möchten Sie darauf hinweisen, dass die Angaben ausschließlich auf den uns vom Eigentümer übermittelten Unterlagen und Informationen basieren. Für Richtigkeit und Vollständigkeit übernehmen wir keine Gewähr. Zwischenvermietung vorbehalten.
Adresse
Auf Google Maps öffnen-
Stadt: Bochum
-
PLZ: 44867
-
Land: Deutschland







