Gepflegte Bürofläche in Duisburg | Glasfaser vorhanden | flexible Gestaltungsmöglichkeiten
- 10,85€
- 10,85€ pro m²
- 10,85€
- 10,85€ pro m²
Details
Updated on Januar 16, 2026 at 2:54 p.m.-
Immobilien-ID 1841/E5
-
Preis 10,85€ / m²
-
Gesamtfläche des Objekts 551 m²
-
Art der Immobilie Büroflächen
-
Eigenschaftenstatus Zu Vermieten
-
Nebenkosten Auf Anfrage
Beschreibung
Bei dem attraktiven Geschäftshaus handelt es sich um eine beliebte Anlaufstelle verschiedenster Praxen, sowie Dienstleistern. Alle Ebenen des Gebäudes sind sowohl über das moderne Treppenhaus, als auch über einen Personenaufzug barrierefrei zu erschließen. Der Grundriss ist flexibel und kann nach den Wünschen des Mieters angepasst werden.
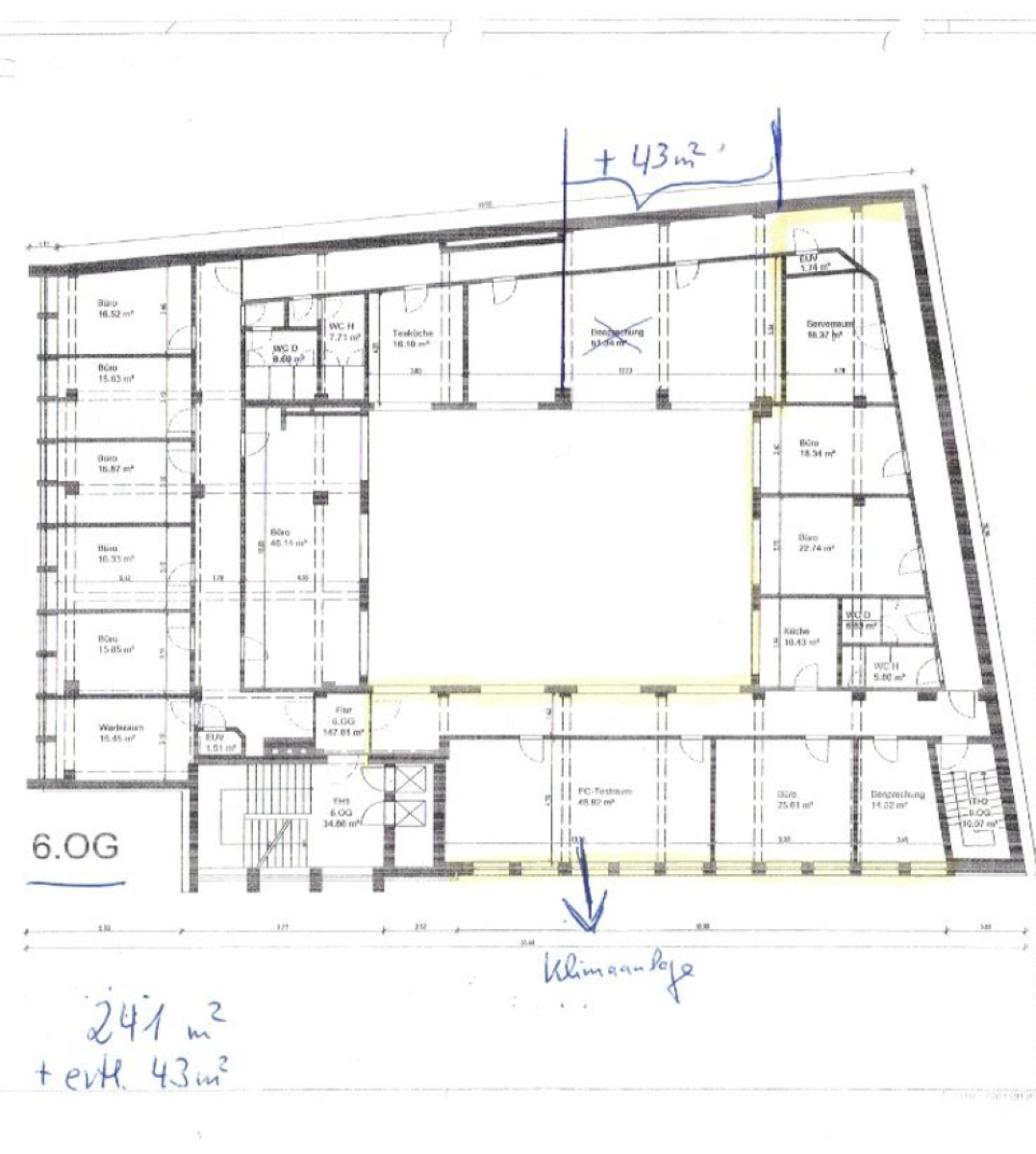
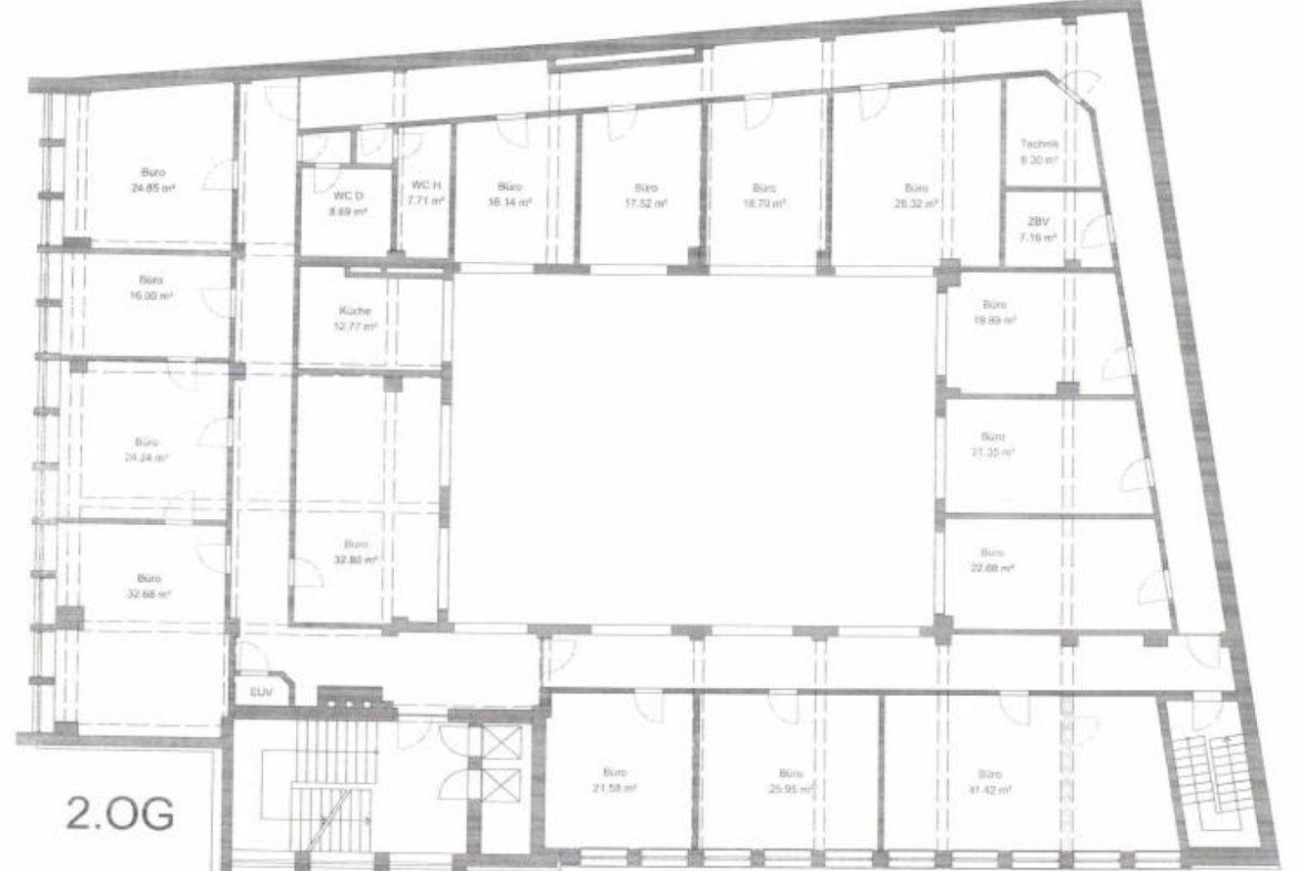
Derzeit stehen folgende Flächen zur Disposition:
5. OG: ca. 551 m²
6. OG: ca. 550 m²
Die zentral gelegene Immobilie befindet sich in der Duisburger Innenstadt. Die A 59 und A 40 befinden sich in unmittelbarer Nähe. Des Weiteren sind Bus- und Bahnhaltestellen, sowie der naheliegende Hauptbahnhof in wenigen Gehminuten zu erreichen. In der direkten Nachbarschaft befindet sich das Forum Duisburg, welches als Zentrum für Einzelhandel, Gastronomie und Büro in der City bekannt ist.
Hotels in der Umgebung: Duisburger Hof, Mercure Hotels, Ibis, ferrotel Duisburg
Bedeutende Unternehmen in der Büromarktzone: TARGO Bank Zentrale, Finanzamt, IHK Duisburg
• Verkabelung: CAT-7 Verkabelung vom Vormieter, Glasfaseranschluss vorhanden
• Verkabelungsort: Bodentanks
• Bodenbelag: Teppichboden
• Beleuchtung: LED-Spots
• Sonnenschutz: elektrische Außenverschattung
• Aufzug: Personenaufzug
Die Ausstattung kann bei Bedarf angepasst werden!
Es gelten ausschließlich unsere AGB (www.ruhr-real.de/agb). Wir möchten Sie darauf hinweisen, dass die Angaben ausschließlich auf den uns vom Eigentümer übermittelten Unterlagen und Informationen basieren. Für Richtigkeit und Vollständigkeit übernehmen wir keine Gewähr. Zwischenvermietung vorbehalten.
Adresse
Auf Google Maps öffnen-
Stadt: Duisburg
-
PLZ: 47051
-
Land: Deutschland







