Hervorragend ausgestattete Büroflächen im HCC in sehr zentraler Innenstadtlage! Tiefgarage
- 14,50€ pro m²
- 14,50€ pro m²
Details
Updated on April 10, 2026 at 12:46 p.m.-
Immobilien-ID 258/E8
-
Preis 14,50€ pro m² / m²
-
Gesamtfläche des Objekts 1702 m²
-
Baujahr 1994
-
Art der Immobilie Büroflächen
-
Eigenschaftenstatus Zu Vermieten
-
Nebenkosten Auf Anfrage
Beschreibung
Die Büroimmobilie HCC teilt sich in zwei Gebäudeteile. Das Hochhaus, auch “Tower” genannt, verfügt über 20 Etagen, welche alle über das eindrucksvolle Foyer und die vier innenliegenden Glasaufzüge zu erschließen sind. Im Tower befinden sich neben zahlreichen sehr gut ausgestatteten Büroflächen diverse weitere Räumlichkeiten wie Lounges, Konferenzräume etc., welche von den ansässigen Firmen genutzt werden können. Das Pendant zum Tower bildet der sehr markante 6 geschossige Gebäudeflügel “Tortenstück”. In diesem Gebäudeabschnitt befindet sich das hauseigene Bistro, welches über eine Außenterrasse verfügt und allen Mietern zur Verfügung steht.
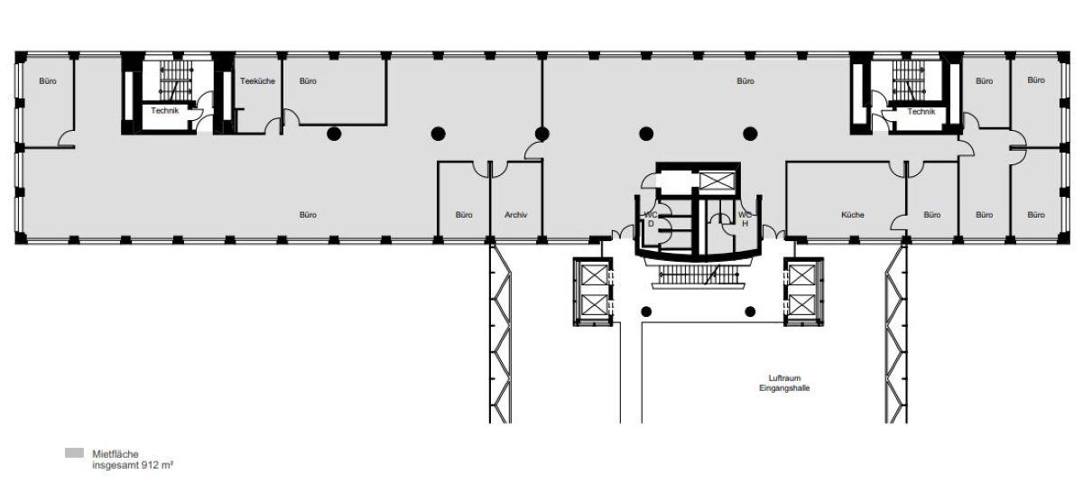
Ferner bietet Ihnen das Objekt flexible Grundrissvarianten, welche die Möglichkeiten Großraum-, Gruppen-, und Einzelbüros beinhaltet.
Derzeit steht folgende Fläche zur Verfügung:
Souterrain + EG: 1.702 m²
1. OG: 190 m²
6. OG: 542 m²
Die Möglichkeit Außenstellplätze oder PKW-Stellplätze in der hauseigenen Tiefgarage zu Mieten besteht ebenfalls.
Das markante Landmark “Harenberg City-Center” (HCC) befindet sich in direkter Innenstadtlage von Dortmund und ist eines der modernsten Bürogebäude der Stadt.
Die Autobahnen A2, A40, A42, A45 sowie der Flughafen sind in nur wenigen Minuten mit dem Auto erreichbar.
Die Immobilie ist darüber hinaus hervorragend an das ÖPNV Netz in alle Richtungen angebunden.
Ferner garantiert der Standort aufgrund des zahlreichen Angebots von Handels- und Gastronomieunternehmen eine ideale Nahversorgung.
Hotels der Umgebung: LivInn, Novum, Mercure Hotel, NH Dortmund
Bedeutende Unternehmen in der Büromarktzone: Creditreform Dortmund, Ruhr Nachrichten Verlag, AOK
• Bodenbelag: Teppichboden
• EDV-Verkabelung: nach Absprache
• Kabelführung: Bodentanks
• Sonnenschutz: innenliegend
• Beleuchtung: Arbeitsplatzgerechte Beleuchtung
• Lüftung: Kombinierte Kühl- und Lüftungsanlage
• Sicherheit: Zutrittskontrollsystem
• WC-Anlagen: getrennte Damen- und Herren WCs
• Aufzüge: 4 gläserne Aufzüge vorhanden
Sonstiges:
• 24 Stunden besetzter Empfang
• Hohlraumfußböden
• flexible Grundrissvarianten für Gruppe -, Großraum-, oder Einzelbüros
• Fenster mit Wärme- u. Schallschutzisolierung
Es gelten ausschließlich unsere AGB (www.ruhr-real.de/agb). Wir möchten Sie darauf hinweisen, dass die Angaben ausschließlich auf den uns vom Eigentümer übermittelten Unterlagen und Informationen basieren. Für Richtigkeit und Vollständigkeit übernehmen wir keine Gewähr. Zwischenvermietung vorbehalten.
Adresse
Auf Google Maps öffnen-
Stadt: Dortmund
-
PLZ: 44137
-
Stadtteil: Mitte (Dortmund)
-
Land: Deutschland







