Hochwertig ausgestattete Büroflächen mit guter Visibilität | BREEAM zertifiziert
- 15,00€
- 15,00€ pro m²
- 15,00€
- 15,00€ pro m²
Details
Updated on April 8, 2026 at 11:42 a.m.-
Immobilien-ID 413/E9
-
Preis 15,00€ / m²
-
Gesamtfläche des Objekts 556 m²
-
Baujahr 1986
-
Art der Immobilie Büroflächen
-
Eigenschaftenstatus Zu Vermieten
-
Nebenkosten 4,75 € / m²
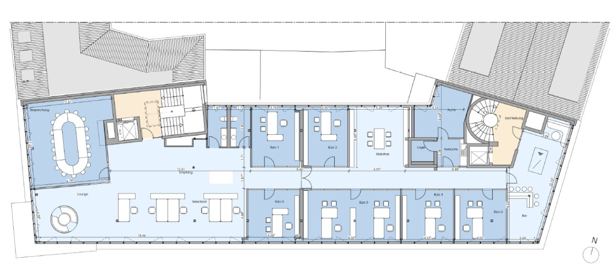
Beschreibung
Die moderne Gewerbeimmobilie besticht durch Ihre zentrale Lage in der Dortmunder Innenstadt. Die interessante Außenarchitektur des Gebäudes, sowie die großen teilweise bodentiefen Fensterfronten sorgen für einen repräsentativen und angenehmen Arbeitsplatz.
Zur Zeit stehen folgende Flächen zur Disposition:
1. OG: ca. 148 m²
5. OG: ca. 519 m²
6. OG: ca. 556 m²
Das Objekt befindet sich mitten in der Dortmunder City, unweit des Hauptbahnhofs. In nur wenigen Fahrminuten sind die Autobahnen (A40, A45, A1, A2) und der Flughafen erreichbar. Aufgrund der zentralen Lage ist darüber hinaus eine sehr gute Anbindung an den ÖPNV gewährleistet.
Gastronomisches Angebot und zahlreiche Händler in der Umgebung gewährleisten eine optimale Nahversorgung.
Hotels in der Umgebung: Mercure Hotel, Coffee Fellows Hotel, A&O Hotel
Bedeutende Unternehmen in der Büromarktzone: Sparkasse, Medizinischer Dienst der Krankenkassen
• Sonnenschutz: außenliegend, elektrisch
• Bodenbelag: Teppichboden, PVC mit Holzoptik
• Verkabelung: CAT-6
• Kühlung: teilw. klimatisiert
• Kabelführung: Bodentanks
• Beleuchtung: arbeitsplatzgerechte Deckenbeleuchtung
• Teeküche: voll ausgestattet
• Aufzug: Personenaufzug
• Barrierearm: ebenerdiger Zugang
Die Ausstattung kann kann bei Bedarf angepasst werden!
Es gelten ausschließlich unsere AGB (www.ruhr-real.de/agb). Wir möchten Sie darauf hinweisen, dass die Angaben ausschließlich auf den uns vom Eigentümer übermittelten Unterlagen und Informationen basieren. Für Richtigkeit und Vollständigkeit übernehmen wir keine Gewähr. Zwischenvermietung vorbehalten.
Adresse
Auf Google Maps öffnen-
Stadt: Dortmund
-
PLZ: 44137
-
Stadtteil: Mitte (Dortmund)
-
Land: Deutschland





