IHRE neue Bürofläche im HENRY | moderne Ausstattung | verkehrsgünstige Lage
- 0
- 0
Details
Updated on April 29, 2026 at 8:39 p.m.-
Immobilien-ID 1857/E3
-
Preis Auf Anfrage
-
Gesamtfläche des Objekts 433 m²
-
Art der Immobilie Büroflächen
-
Eigenschaftenstatus Zu Vermieten
-
Nebenkosten 3,50 € / m²
Beschreibung
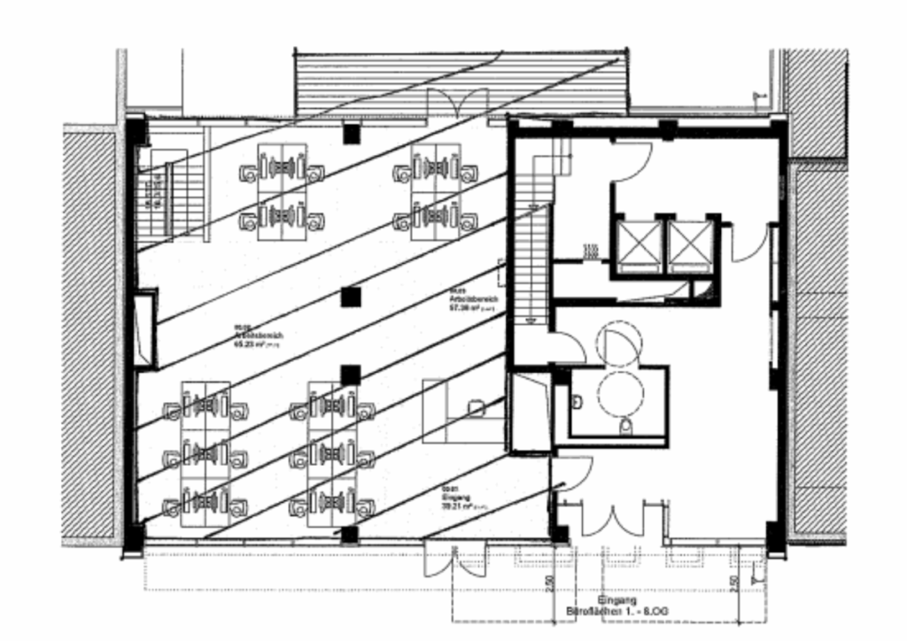
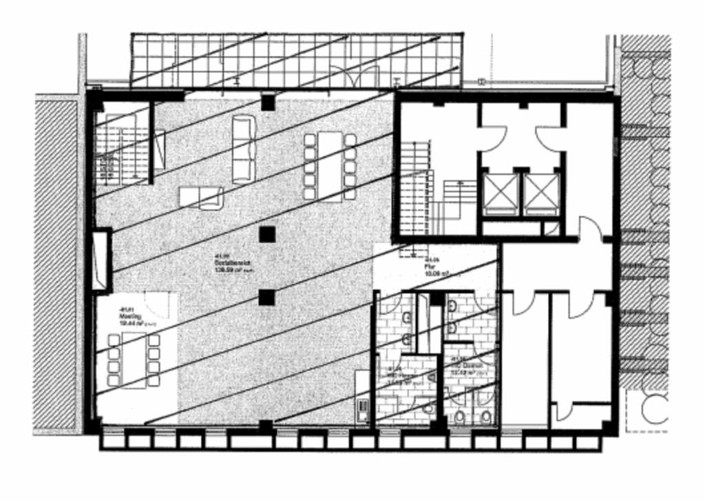
Bei der angebotenen Liegenschaft handelt es sich um ein modernes Bürogebäude, welches im Jahre 2022 vollständig saniert wurde. Die Büroflächen haben einen direkten Blick auf die Philharmonie und können separat voneinander angemietet werden. Alle Flächen sind über einen Personenaufzug oder das Treppenhaus zu erreichen. Dem Nutzer werden im EG neben einer effizienten CAT-7 Verkabelung repräsentative Räumlichkeiten mit Open Space Charakter und bodentiefen Fenstern sowie modernen Designelementen geboten. Darüber hinaus stehen Stellplätze zur Anmietung in der Tiefgarage und in umliegenden Parkhäusern zur Verfügung.
Derzeit stehen folgende Flächen zur Disposition:
EG + UG: ca. 433 m²
3. OG: ca. 240 m²
8. OG: ca. 240 m²
Das Gebäude liegt im Bereich Rüttenscheid/Südviertel von Essen, nahe der Philharmonie und dem Stadtgarten. Aufgrund der direkten Anbindung an die Autobahn A40, sowie der Nähe zum Essener Hauptbahnhof, ist dieses Objekt besonders verkehrsgünstig gelegen. Zahlreiche Cafés und Restaurants, sowie Einkaufsmöglichkeiten und Grünflächen sind ebenfalls in nur wenigen Gehminuten erreichbar.
Bedeutende Unternehmen in der Büromarktzone: Evonik, Funke Mediengruppe, RWE, Siemens, STEAG
Hotels in der Nähe: Sheraton Hotel, Mercure Hotel Plaza
• Bodenbelag: PVC-Boden in Holzoptik, Teppichboden
• Kühlung: nach Vereinbarung
• EDV-Verkabelung: CAT-7 Verkabelung, Glasfaser
• Beleuchtung: Deckenleuchten
• Tiefgarage mit E-Ladesäulen
• Personenaufzug
Die Ausstattung kann nach Absprache flexibel angepasst werden.
Highlights:
• bodentiefe Fenster
• attraktive Lage
• sehr gute Verkehrsanbindung
• Gestaltung variabel
• Sanierung 2022
• Terrasse zum Innenhof
Es gelten ausschließlich unsere AGB (www.ruhr-real.de/agb). Wir möchten Sie darauf hinweisen, dass die Angaben ausschließlich auf den uns vom Eigentümer übermittelten Unterlagen und Informationen basieren. Für Richtigkeit und Vollständigkeit übernehmen wir keine Gewähr. Zwischenvermietung vorbehalten.
Adresse
Auf Google Maps öffnen-
Stadt: Essen
-
PLZ: 45128
-
Stadtteil: Rüttenscheid
-
Land: Deutschland






