Ihr neues Büro direkt am Limbecker Platz | optimale Anbindung | flexible Gestaltung
- 8,50€
- 8,50€ pro m²
- 8,50€
- 8,50€ pro m²
Details
Updated on März 10, 2026 at 2:46 p.m.-
Immobilien-ID 073/E2
-
Preis 8,50€ / m²
-
Gesamtfläche des Objekts 310 m²
-
Baujahr 1992
-
Art der Immobilie Büroflächen
-
Eigenschaftenstatus Zu Vermieten
-
Nebenkosten Auf Anfrage
Beschreibung
Die Büroimmobilie befindet sich in bester Citylage in Essen mit hervorragender ÖPNV-Anbindung. Durch den vorhandenen Personenaufzug lässt sich das Obergeschoss problemlos erreichen. Das Objekt hat eine optimale Sichtbarkeit und bietet viel Platz für individuelle Gestaltungsmöglichkeiten. Der neue Mieter kann die Flächen selbst mitgestalten und nach seinen individuellen Ansprüchen einrichten. Die Räume sind hell, modern und bieten einen Arbeitsplatz zum Wohlfühlen.
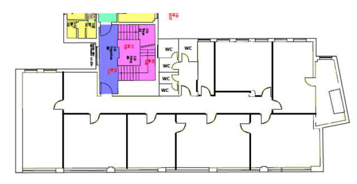
Folgende Flächen stehen zur Disposition:
3. OG vorne: ca. 310 m²
Das Objekt befindet sich nördlich der Essener City. Fußläufig sind die Fußgängerzonen Kettwiger Straße und Limbecker Straße erreichbar. In der urbanen Lage finden sich zahlreiche Cafés sowie die Universität Essen-Duisburg. Angrenzend liegt das Rathaus mit dem anschließenden Shopping Center Rathaus-Galerie. Durch die angrenzende Lage zur attraktiven Fußgängerzone sowie zum Hauptbahnhof ist die Infrastruktur sowie die ÖPNV Anbindung als exzellent zu bezeichnen.
Bedeutende Unternehmen in der Büromarktzone: Allbau, AOK, Commerzbank, IHK, Funke Mediengruppe, Evonik, Innogy
Hotels in der Umgebung: Welcome Hotel, Novum Hotel, Motel One, Mövenpick Hotel
• Aufzug: Personenaufzug
• Verkabelung: nach Vereinbarung
• Sonnenschutz: innenliegend, manuell (3. OG)
• Barrierearm: ebenerdiger Zugang
• Beleuchtung: Rasterleuchten
• Bodenbelag: nach Vereinbarung
Die Ausstattung kann auf Mieterwunsch angepasst werden!
Es gelten ausschließlich unsere AGB (www.ruhr-real.de/agb). Wir möchten Sie darauf hinweisen, dass die Angaben ausschließlich auf den uns vom Eigentümer übermittelten Unterlagen und Informationen basieren. Für Richtigkeit und Vollständigkeit übernehmen wir keine Gewähr. Zwischenvermietung vorbehalten.
Adresse
Auf Google Maps öffnen-
Stadt: Essen
-
PLZ: 45127
-
Stadtteil: Stadtkern
-
Land: Deutschland









