Mit Blick auf den Hafen: Moderne Bürofläche in Duisburg | Stellplätze | gute Anbindung
- 13,00€
- 13,00€ pro m²
- 13,00€
- 13,00€ pro m²
Details
Updated on November 3, 2025 at 9:54 a.m.-
Immobilien-ID 2853/E4
-
Preis 13,00€ / m²
-
Gesamtfläche des Objekts 673 m²
-
Baujahr 2008
-
Art der Immobilie Büroflächen
-
Eigenschaftenstatus Zu Vermieten
-
Nebenkosten Auf Anfrage
Beschreibung
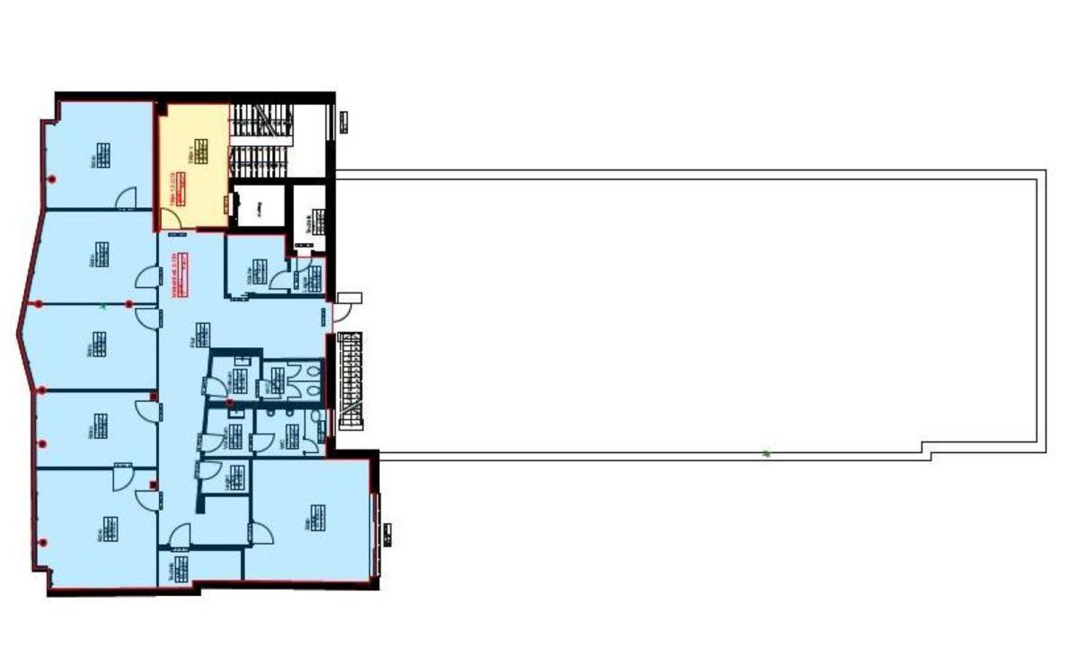
Das gepflegte Bürogebäude verfügt über vier Geschosse und sorgt mit seiner modernen Optik für Aufsehen. Die vakanten Büroflächen im 1. und 2. OG sind mit Teppichboden ausgelegt und verfügen über eine CAT-Verkabelung sowie Vollklimatisierung. Die Teeküchen sind voll ausgestattet. Darüber hinaus können die Flächen per Treppenhaus oder Personenaufzug barrierefrei erschlossen werden. In der Tiefgarage stehen Stellflächen zur Anmietung zur Verfügung.
Zurzeit stehen folgende Flächen zur Disposition:
1. OG: 673,30 m²
2. OG: 271,30 m²
Das Bürogebäude befindet sich direkt am Damm im Duisburger Norden. Die A40 und die A59 sind nur wenige Fahrminuten entfernt. ÖPNV-Verbindungen können innerhalb weniger Gehminuten erreicht werden. Zum Düsseldorfer Flughafen sind es rund 25 Fahrminuten. Die direkte Lage am Wasser lädt zu Spaziergängen in der Mittagspause ein und umliegende gastronomische Lokale sorgen für eine flexible Nahversorgung.
Bedeutende Unternehmen in der Büromarktzone: duisport, HUI Hydrauliktechnik Industrietechnik GmbH, DB Schenker
• Verkabelungsort: Bodentanks
• Verkabelung: vom Vormieter/ CAT
• Kühlung: Vollklimatisierung
• Bodenbelag: Teppichboden
• Sonnenschutz: außenliegend, elektrisch
• Teeküche: voll ausgestattet
• Beleuchtung: Rasterleuchten
Die Ausstattung kann bei Bedarf angepasst werden!
Es gelten ausschließlich unsere AGB (www.ruhr-real.de/agb). Die Halle ist nicht für Veranstaltungsräume geeignet. Wir möchten Sie darauf hinweisen, dass die Angaben ausschließlich auf den uns vom Eigentümer übermittelten Unterlagen und Informationen basieren. Für Richtigkeit und Vollständigkeit übernehmen wir keine Gewähr. Zwischenvermietung vorbehalten.
Adresse
Auf Google Maps öffnen-
Stadt: Duisburg
-
PLZ: 47119
-
Land: Deutschland









