Moderne Büro- und Gewerbeflächen | sehr gute Anbindung | Werbemöglichkeiten
- 7,00€
- 7,00€
Details
Updated on März 12, 2026 at 6:01 p.m.-
Immobilien-ID 3572/E3
-
Preis 7,00€ / m²
-
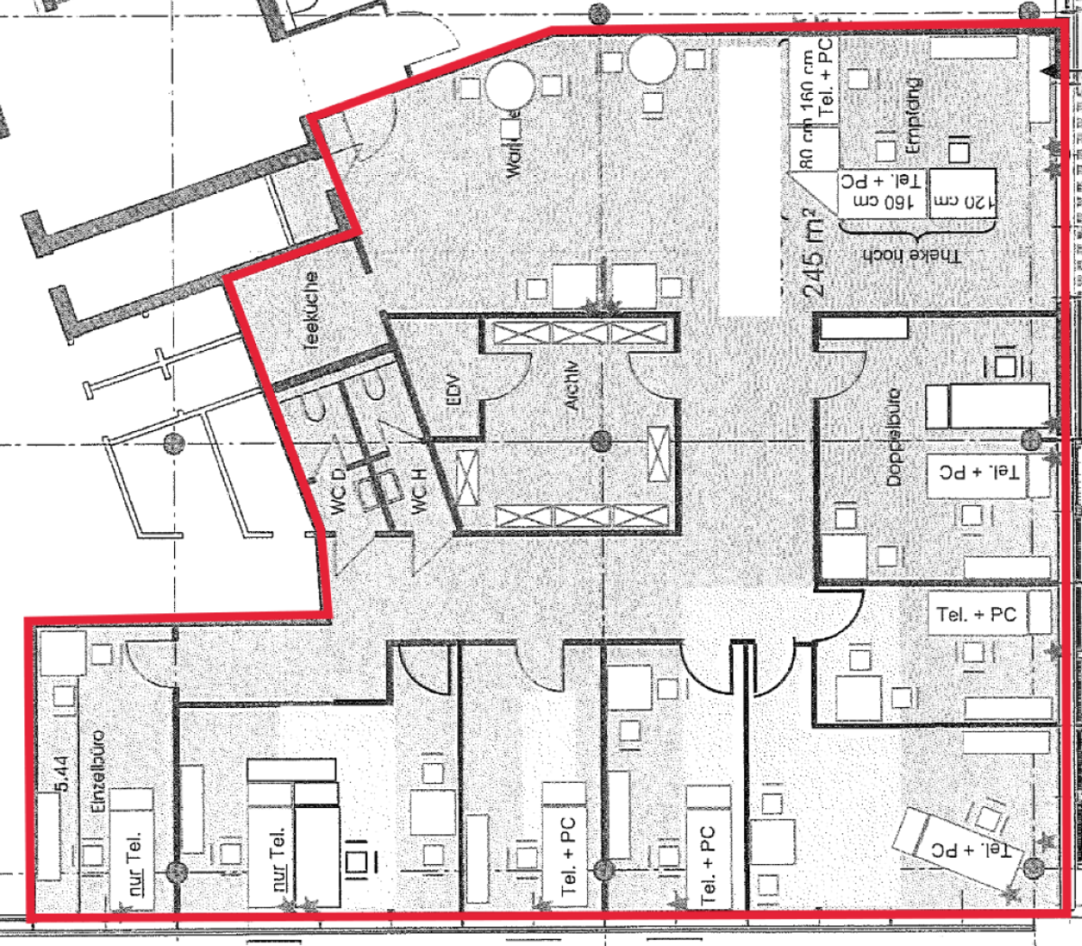
Gesamtfläche des Objekts 245 m²
-
Baujahr 2001
-
Art der Immobilie Büroflächen
-
Eigenschaftenstatus Zu Vermieten
-
Nebenkosten Auf Anfrage
Beschreibung
Die Immobilie befindet sich mitten in der Wittener Innenstadt und besticht somit durch ihre exzellente Anbindung. Auf verschiedenen Geschossen des Gebäudes befinden sich mehrere zur Disposition stehende, moderne Büroflächen. Zudem verfügt das Gebäude über eine genehmigte Praxis- und Gastronomiefläche.
Die Räume sind hell, modern und lassen sich flexibel einrichten. Mit einem Personenaufzug lassen sich alle Etagen problemlos erschließen.
Folgende Flächen stehen aktuell zur Disposition:
1. OG: 538 m² Gastronomie
2. OG: 379 m² Büro
3. OG: 245 m² Büro
4. OG rechts: 214 m² Büro
4. OG links: 350 m² Praxis
Die Flächen im 4. OG können zusammengelegt werden.
Die Immobilie befindet sich in der Wittener Innenstadt, vis-a-vis mit dem Rathaus. Zahlreiche Einzelhandelsbetrieben, Nahversorgungsmöglichkeiten und gastronomischen Betrieben liegen unmittelbar am Objekt. Die Autobahnen A43 & 448 sind in wenigen Minuten per PKW erreichbar. Öffentliche Verkehrsmittel sind fußläufig zu erreichen.
• Bodenbelag: Nach Absprache
• EDV-Verkabelung: Kat 6a – Kat 7
• Kabelführung: Bodentanks
• Sonnenschutz: Außenliegend, elektrisch & innenliegend, manuell
• Teeküche: Zum Teil voll ausgestattet
• Beleuchtung: Pendelleuchten
Es gelten ausschließlich unsere AGB (www.ruhr-real.de/agb). Wir möchten Sie darauf hinweisen, dass die Angaben ausschließlich auf den uns vom Eigentümer übermittelten Unterlagen und Informationen basieren. Für Richtigkeit und Vollständigkeit übernehmen wir keine Gewähr. Zwischenvermietung vorbehalten.
Adresse
Auf Google Maps öffnen-
Stadt: Witten
-
PLZ: 58452
-
Land: Deutschland







