Moderne Büroarbeitswelten im Jahrhunderthaus | Flexible Gestaltung | RUHR REAL
- 11,00€
- 11,00€ pro m²
- 11,00€
- 11,00€ pro m²
Details
Updated on September 26, 2025 at 3:11 p.m.-
Immobilien-ID 1211/E2
-
Preis 11,00€ / m²
-
Gesamtfläche des Objekts 671 m²
-
Art der Immobilie Büroflächen
-
Eigenschaftenstatus Zu Vermieten
-
Nebenkosten Auf Anfrage
Beschreibung
Das moderne Bürogebäude mit seiner außergewöhnlichen Architektur befindet sich in direkter Lage zum Westpark in Bochum. Der repräsentative Eingangsbereich führt den Nutzer mithilfe eines Personenaufzuges, oder dem Treppenhaus, problemlos in die verschiedenen Ebenen des Gebäudes. Der zukünftige Mieter kann den Grundriss und die Ausstattung der Büroflächen freigestalten. Die Umbauten werden in Abstimmung mit dem Eigentümer durchgeführt. Parkflächen können in der Tiefgarage angemietet werden.
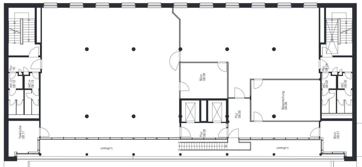
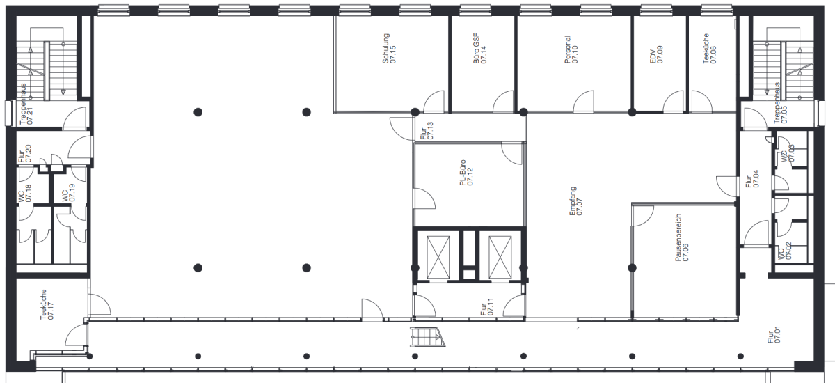
Zur Zeit stehen folgende Flächen zur Disposition:
2. OG: 485 m²
6. OG: 485 m²
*7. OG: 671 m²
*8. OG: 584 m²
*Das 7. + 8. OG sind durch eine interne Treppe miteinander verbunden.
Das Objekt befindet sich nahe der Bochumer Innenstadt, in unmittelbarer Nähe zur Jahrhunderthalle. Die Autobahnen 40 und 448 sind nur wenige Fahrminuten entfernt. Direkt vor dem Gebäude befindet sich eine U-Bahn Station, über die man in wenigen Minuten die Innenstadt erreicht. Die S-Bahnstation Bochum-Ehrenfeld ist fußläufig erreichbar. Das Umfeld ist sehr Urban. Geschäfte das täglichen Bedarfs befinden sich im direkten Umfeld.
Bedeutende Unternehmen in der Büromarktzone: DAIKIN, IG Metall, Bochumer Verein Verkehrstechnik
Hotels in der Umgebung: GHOTEL, B&B, Holiday Inn
• Bodenbelag: Teppichboden
• EDV-Verkabelung: vom Vormieter
• Kabelführung: Bodentanks
• Sonnenschutz: außenliegend, elektrisch
• Teeküche: voll ausgestattet
• Beleuchtung: Pendelleuchten
• Kühlung: Umluftgeräte & Deckenkühlung
Es gelten ausschließlich unsere AGB (www.ruhr-real.de/agb). Wir möchten Sie darauf hinweisen, dass die Angaben ausschließlich auf den uns vom Eigentümer übermittelten Unterlagen und Informationen basieren. Für Richtigkeit und Vollständigkeit übernehmen wir keine Gewähr. Zwischenvermietung vorbehalten.
Adresse
Auf Google Maps öffnen-
Stadt: Bochum
-
PLZ: 44793
-
Land: Deutschland








