Moderne Bürofläche in zentraler Lage Essen | Ausstattung nach Mieterwunsch | gute ÖPNV-Anbindung
- 0
- 0
Details
Updated on September 26, 2025 at 3:11 p.m.-
Immobilien-ID 109/E4
-
Preis Auf Anfrage
-
Art der Immobilie Büroflächen
-
Eigenschaftenstatus Zu Vermieten
-
Nebenkosten Auf Anfrage
Beschreibung
Das Gebäude mit einer Fassade aus Klinkern und Kalksteinen steht seit 1988 unter Denkmalschutz. Heute bietet der Gebäudekomplex nicht nur der Deutschen Post Büro- und Einzelhandelsflächen. Auch Mieter unterschiedlichster Branchen finden hier optimale räumliche Bedingungen in einem außergewöhnlichen Objekt. Die Flächen sind komplett modernisiert und können nach Mieterwunsch angepasst werden.
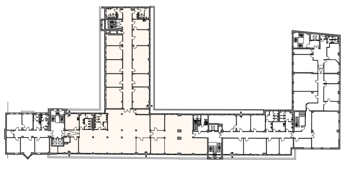
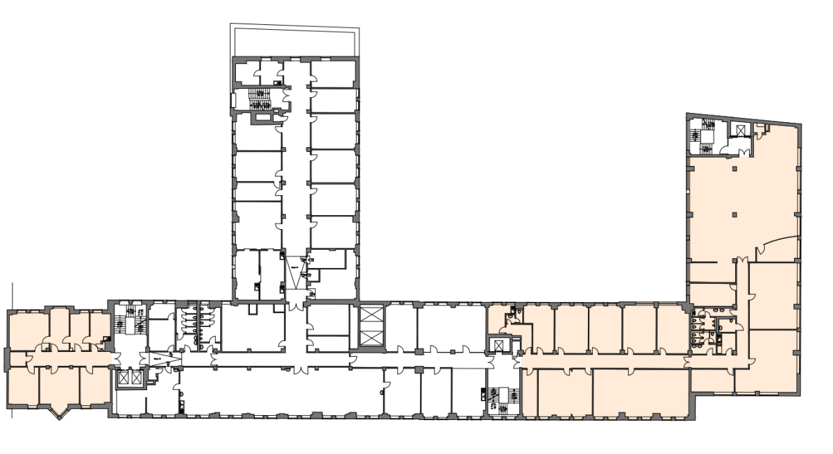
Zur Zeit stehen folgende Flächen zur Disposition:
1. OG: 553,25 m²
2. OG: 680 m²
3. OG: 364 m²
5. OG: 1.006 m²
Ferner können weitere Archivflächen im Untergeschoss angemietet werden (68 m²).
Das attraktive Objekt befindet sich direkt am Essener Hauptbahnhof in bester Citylage. Die Autobahnen A40 und A52 sind nur wenige Fahrminuten entfernt. Die U-Bahn Haltestelle des Hauptbahnhofes befindet sich direkt vor der Tür. Die beliebte Innenstadt ist in nur weniger als einer Minute zu Fuß erreichbar. Hier befinden sich zahlreiche Einkaufsmöglichkeiten, sowie ein breites gastronomisches Angebot.
Bedeutende Unternehmen in der Büromarktzone: Commerzbank, DAK, Deutsche Bank, DB Schenker, Evonik
Hotels in der Umgebung: Intercity Hotel, Select Hotel, Center Hotel, Motel One, GHOTEL
• Beleuchtung: LED-Deckenleuchten
• Bodenbelag: Vinyl-, Teppichboden
• Verkabelung: CAT-5 Verkabelung, Glasfaseranschluss vorhanden
• Verkabelungsort: Bodentanks/Kabelkanäle
• Klimatisierung: teilklimatisiert
• Teeküche: voll ausgestattet
• Heizungsart: Fernwärme
• Aufzug: Personenaufzug
• ebenerdiger Zugang
Die Ausstattung kann bei Bedarf angepasst werden!
Es gelten ausschließlich unsere AGB (www.ruhr-real.de/agb). Wir möchten Sie darauf hinweisen, dass die Angaben ausschließlich auf den uns vom Eigentümer übermittelten Unterlagen und Informationen basieren. Für Richtigkeit und Vollständigkeit übernehmen wir keine Gewähr. Zwischenvermietung vorbehalten.
Adresse
Auf Google Maps öffnen-
Stadt: Essen
-
PLZ: 45127
-
Stadtteil: Stadtkern
-
Land: Deutschland







