Moderne Büroflächen am Logport | Kantine | viele Stellplätze & klimatisiert | RUHR REA
- 6,50€
- 6,50€ pro m²
- 6,50€
- 6,50€ pro m²
Details
Updated on September 26, 2025 at 3:11 p.m.-
Immobilien-ID 887/E6
-
Preis 6,50€ / m²
-
Baujahr 1955/58
-
Art der Immobilie Büroflächen
-
Eigenschaftenstatus Zu Vermieten
-
Nebenkosten Auf Anfrage
Beschreibung
Die 1956 erbaute Liegenschaft wurde im Jahre 2013 modernisiert und lässt durch verschiedene Elemente den besonderen Stil der 50er Jahre erkennen. Eine Teilvermietung ab ca. 500 m² ist aufgrund der Flexibilität der Etagen realisierbar. Die einzelnen Etagen sind über einen Personenaufzug erschlossen. Der Eingangsbereich des Gebäudes ist besonders einladend gestaltet, mit beidseitiger Verglasung und einem repräsentativen Empfangsbereich, der eine Wartelounge für Besucher und Mitarbeiter bietet. Ferner befindet sich hier ein besetzter Empfang.
Die nachträgliche eingebrachte Klimaanlage kann raumweise gesteuert werden. Das Gebäude verfügt über einen besetzen Empfang. Ferner können Ihre Mitarbeiter die hauseigene Kantine nutzen.
Der Eigentümer beabsichtigt die Büroflächen nach Mieterwunsch umzubauen und modernisiert zu übergeben.
Auf dem eigenen Grundstück stehen derzeit 63 Stellplätze dauerhaft zur Verfügung.
Derzeit stehen folgende Flächen zur Disposition:
1. OG Nord: ca. 797 m²
1. OG Anbau: ca. 623 m²
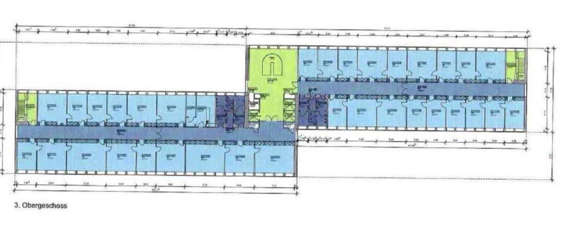
3. OG Süd: ca. 698 m²
4. OG Süd: ca. 698 m²
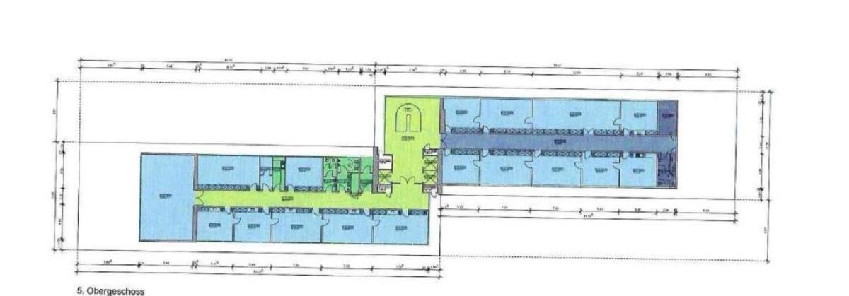
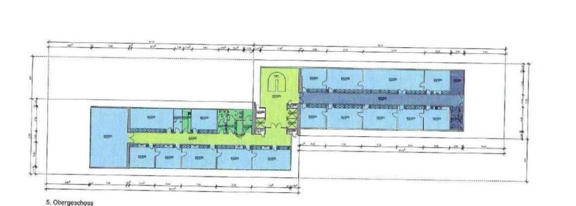
5. OG Süd: ca. 500 m²
Das angebotene Objekt hat seinen Standort in Duisburg Rheinhausen. Rheinhausen befindet sich auf der linken Rheinseite und zeichnet sich durch eine zentrale und gut angebundene Lage aus.
Der Bahnhof Rheinhausen Ost liegt in unmittelbarer Nähe und auch der Hauptbahnhof ist nur wenige Fahrminuten vom Gebäude entfernt.
Die Autobahnauffahrten der A40 und A57 sind ebenfalls schnell und einfach erreicht, somit ist eine flexible An- und Abreise mit dem Auto, sowie mit öffentlichen Verkehrsmitteln gewährleistet.
• EDV-Verkabelung: CAT-7
• Kabelführung: Kabelkanäle
• Teeküche: voll ausgestattet
• Beleuchtung: Aufsatz- bzw. Einbauleuchten, teilw. LED
• Heizung: Fernwärme
• voll klimatisiert (3. und 4. OG Süd)
• Bodenbelag: Teppich-, Fliesenboden
• zahlreiche Parkplätze am Objekt
• Sonnenschutz: innenliegend, manuell
• Besetzter Empfang
• 3 Personenaufzüge
• Kantine im Objekt
• Zugangssystem (Codekarten)
• Parkplatz mit Schrankenanlagen
Es gelten ausschließlich unsere AGB (www.ruhr-real.de/agb). Wir möchten Sie darauf hinweisen, dass die Angaben ausschließlich auf den uns vom Eigentümer übermittelten Unterlagen und Informationen basieren. Für Richtigkeit und Vollständigkeit übernehmen wir keine Gewähr. Zwischenvermietung vorbehalten.
Adresse
Auf Google Maps öffnen-
Stadt: Duisburg
-
PLZ: 47229
-
Stadtteil: Rheinhausen-Mitte
-
Land: Deutschland










