Moderne Büros | Viele Stellplätze | Kurzfristig Verfügbar
- 8,50€
- 8,50€ pro m²
- 8,50€
- 8,50€ pro m²
Details
Updated on April 9, 2026 at 5:52 p.m.-
Immobilien-ID 3244/E3
-
Preis 8,50€ / m²
-
Gesamtfläche des Objekts 1240 m²
-
Baujahr 1988
-
Art der Immobilie Büroflächen
-
Eigenschaftenstatus Zu Vermieten
-
Nebenkosten 2 € / m²
Beschreibung
Das angebotene Objekt ist ein modernisiertes und attraktives Bürohaus.
Auf mehreren Etagen stehen individuell aufteilbare Flächen sowie gemeinschaftlich genutzte Meetingräume zur Verfügung. Der Glasfaserausbau ist fest geplant. Darüber hinaus sind eine Kantine und Dachterrasse vorhanden.
Derzeit stehen folgende Flächen zur Disposition:
EG (Südflügel): ca. 250 m²
EG (an der Halle): ca. 445 m²
1. OG (“Studio”): ca. 427 m²
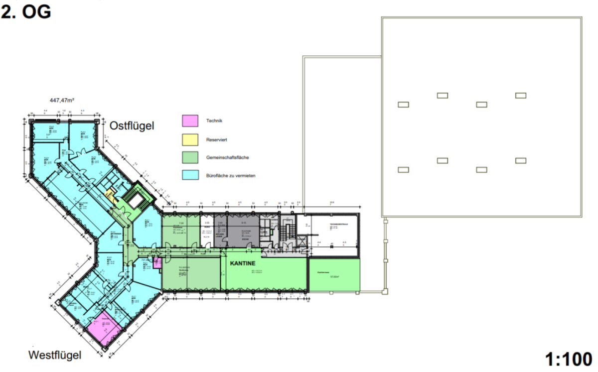
2. OG (Ost-, West- & Südflügel): ca. 648 m²
Das repräsentative Objekt befindet sich in unmittelbarer Nähe der hochfrequentierten Bundesstraßen B 22 und B 23 sowie der Autobahn A 44.
Es ist in einem ruhigen Gewerbegebiet gelegen, verfügt über einen guten Anschluss an das ÖPNV-Netz und die Nahversorgung ist u.a. eine innerhäusliche Kantine gewährleistet.
Bedeutende Unternehmen in der Büromarktzone: Saint-Gobain Performance Plastics Pampus GmbH, Schunk Ingenieurkeramik GmbH, LACROIX Electronics GmbH
Hotels in der Umgebung: Hotel Hubertus Hamacher, Hotel am Park, Gästehaus Räck
• Sonnenschutz: außenliegend, elektrisch und innenliegend, manuell
• Bodenbelag: Vinylboden / nach Vereinbarung
• Verkabelung: EDV-Verkabelung vorhanden, Glasfaser geplant
• Kabelführung: Kabelkanäle
• Beleuchtung: LED
• Teeküche: Anschlüsse vorhanden
• Aufzug: Personenaufzug
• Barrierearm: barrierefrei
• Heizungsart: Gasheizung
• Lüftung/Klimatisierung: teilweise klimatisiert
• Kantine
• Dachterrasse
Die Ausstattung kann bei Bedarf angepasst werden!
Es gelten ausschließlich unsere AGB (www.ruhr-real.de/agb). Wir möchten Sie darauf hinweisen, dass die Angaben ausschließlich auf den uns vom Eigentümer übermittelten Unterlagen und Informationen basieren. Für Richtigkeit und Vollständigkeit übernehmen wir keine Gewähr. Zwischenvermietung vorbehalten.
Adresse
Auf Google Maps öffnen-
Stadt: Willich
-
PLZ: 47877
-
Land: Deutschland
- Christopher Schürk







