Moderne und attraktive Büroflächen mit gehobener Ausstattung | Stellplätze vorhanden | RUHR REAL
- 14,00€
- 14,00€
Details
Updated on April 2, 2026 at 3:55 p.m.-
Immobilien-ID 112/E6
-
Preis 14,00€ / m²
-
Baujahr 1958
-
Art der Immobilie Büroflächen
-
Eigenschaftenstatus Zu Vermieten
-
Nebenkosten 2,50 € / m²
Beschreibung
Die Büroimmobilie befindet sich in sichtbarer Lage auf der renommierten “Huyssenallee” im beliebten Essener Südviertel. Alle Flächen sind über einen Personenaufzug oder das Treppenhaus zu erreichen. Die Flächen können zusammen angemietet werden, da alle drei Etagen durch eine innenliegende Treppe miteinander verbunden sind. Ein Trennung der Flächen ist jedoch möglich.
Die Flächen werden in Absprache mit Eigentümer auf Kundenwunsch umgebaut.
Ferner stehen für die Mieter einige Parkplätze zur Anmietung bereit, zusätzlich kann in den umliegenden Parkhäuser kostengünstig geparkt werden.
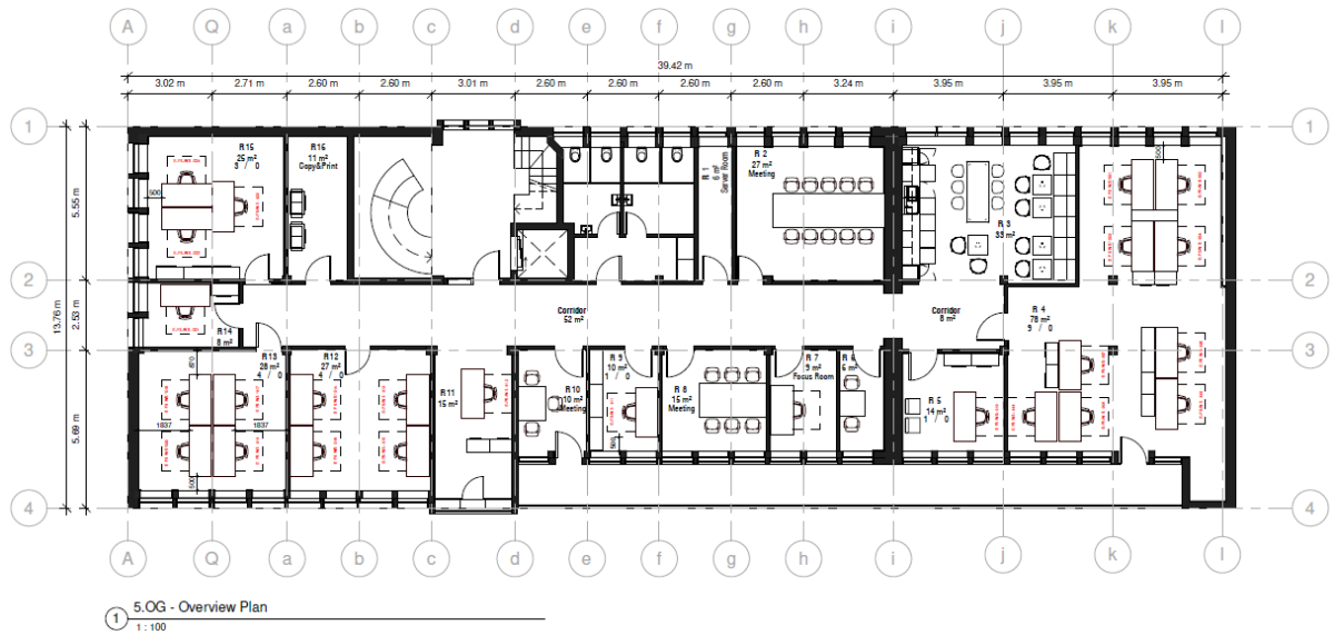
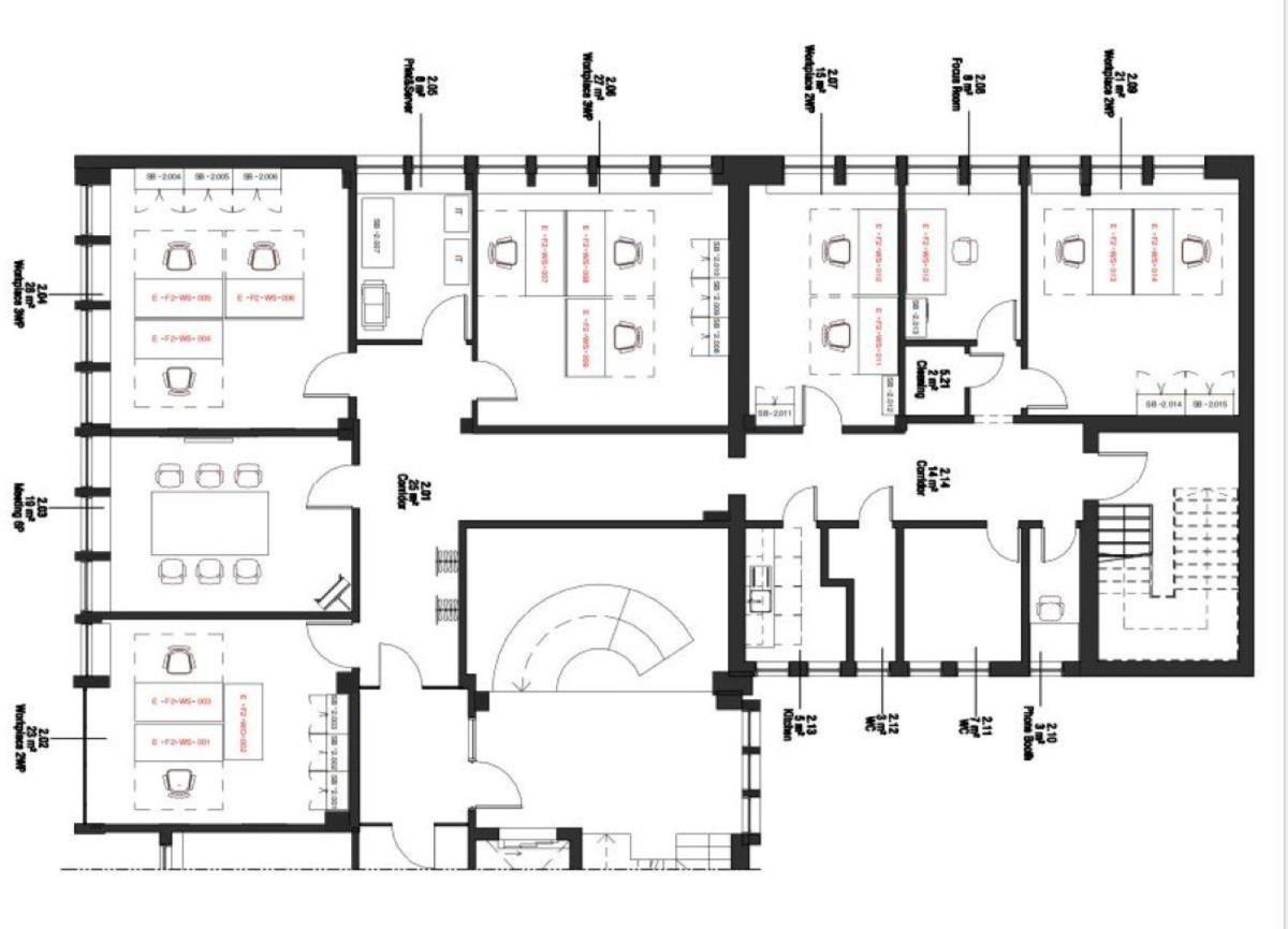
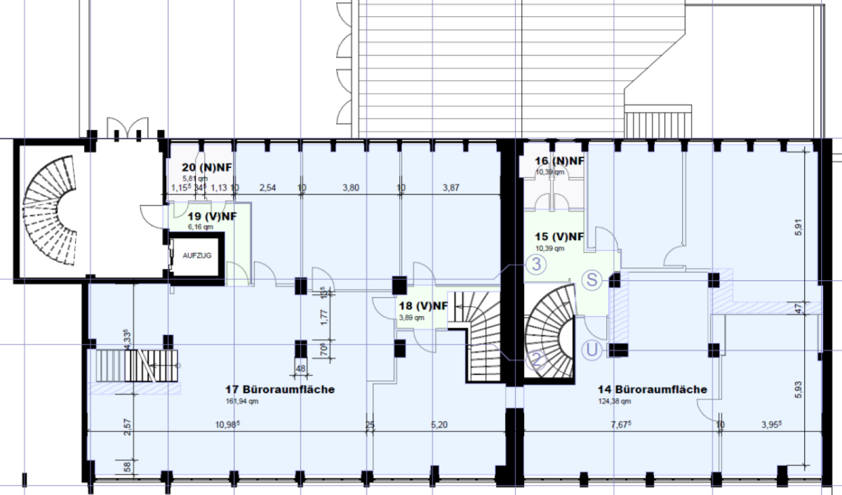
Folgende Flächen stehen derzeit zur Disposition:
Lagerfläche im UG: ca. 270 m²
ZG: ca. 320 m²
1. OG: ca. 355 m²
1. OG links: ca. 202 m²
2. OG: ca. 225 m²
4. OG rechts: ca. 111 m²
Das Gebäude liegt im Südviertel von Essen, nahe der Philharmonie und dem Stadtgarten. Aufgrund der direkten Anbindung an die Autobahn A40, sowie der Nähe zum Essener Hauptbahnhof, ist dieses Objekt besonders verkehrsgünstig gelegen. Zahlreiche Cafés und Restaurants, sowie Einkaufsmöglichkeiten und Grünflächen sind ebenfalls in nur wenigen Gehminuten erreichbar.
Hotels in der Nähe: Sheraton Hotel, Intercity Hotel, Mercure Hotel, ibis Hotel, Select Hotel Handelshof
Bedeutende Unternehmen in der Büromarktzone: Evonik, Funke Mediengruppe, RWE, Siemens, STEA
• Bodenbelag: Teppichboden/ Fliesen
• Verkabelung: Vom Vormieter
• Kabelführung: Brüstungskanäle
• Sonnenschutz: außenliegend
• Teeküche: voll ausgestattet
• Beleuchtung: Rasterdeckenleuchten
• Aufzug: Personenaufzug
Die Ausstattung kann bei Bedarf angepasst werden!
Es gelten ausschließlich unsere AGB (www.ruhr-real.de/agb). Wir möchten Sie darauf hinweisen, dass die Angaben ausschließlich auf den uns vom Eigentümer übermittelten Unterlagen und Informationen basieren. Für Richtigkeit und Vollständigkeit übernehmen wir keine Gewähr. Zwischenvermietung vorbehalten.
Adresse
Auf Google Maps öffnen-
Stadt: Essen
-
PLZ: 45128
-
Stadtteil: Südviertel
-
Land: Deutschland









