Provisionsfrei | Moderne Büroflächen im HAGENCAMPUS | Ideale Anbindung
- 0
Details
Updated on Januar 13, 2026 at 12:01 a.m.-
Immobilien-ID 4564/G1/E8
-
Preis Auf Anfrage
-
Gesamtfläche des Objekts 289 m²
-
Art der Immobilie Büroflächen
-
Eigenschaftenstatus Zu Vermieten
-
Nebenkosten Auf Anfrage
Beschreibung
Die hochwertigen und modernen Büroflächen bieten ideale Voraussetzungen für eine Vielzahl von Nutzungsarten. Die Flächen sind flexibel gestaltbar und ermöglichen eine individuelle Anpassung an unterschiedliche Arbeits- und Nutzungskonzepte. Ein Personenaufzug gewährleistet eine barrierefreie Erschließung aller Etagen, während ausreichend PKW-Stellplätze am Objekt den Standort zusätzlich aufwerten. Die Büroflächen sind ab einer Größe von ca. 289 m² teilbar und stehen nach Vereinbarung zur Verfügung. Insgesamt stehen ca. 2.136,55 m² Bürofläche zur Vermietung.
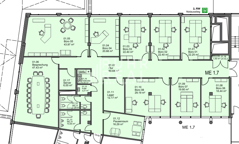
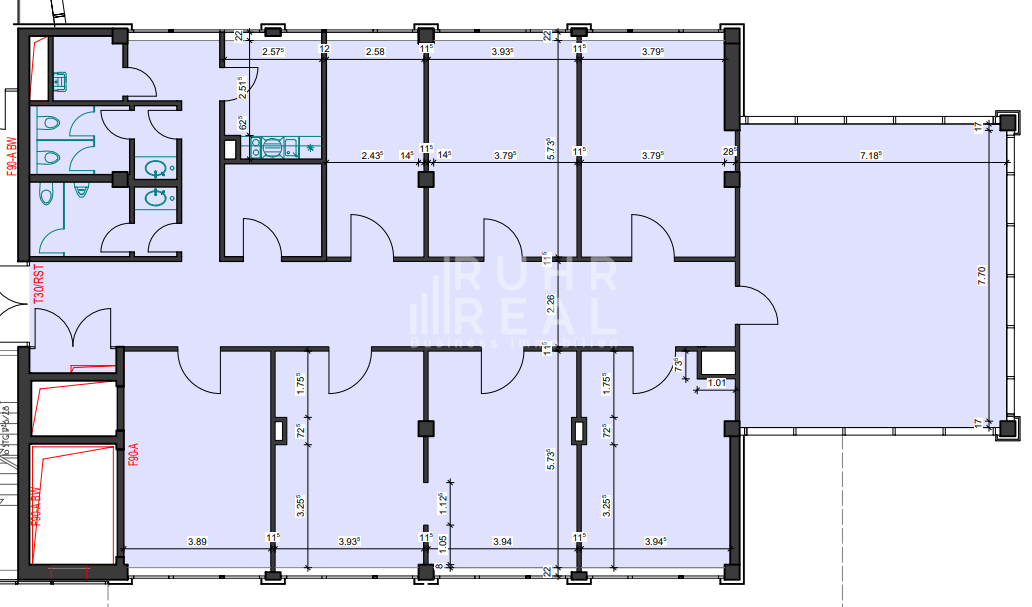
Folgende Mietflächen stehen aktuell zur Disposition:
• ME 1.5 | 1. OG: ca. 289,10 m² Bürofläche
• ME 1.6 & ME 1.7 | 1. OG*: ca. 730,42 m² Büro-/Laborflächen
•
ME 2.12 | 2. OG: ca. 372,39 m² Bürofläche
•
ME 4.18 & ME 4.19 | 4. OG**: ca. 744,64 m² Bürofläche
•
ME 4.20 | 4. OG: ca. 339,90 m² Bürofläche
* Die Mieteinheiten ME 1.6 und ME 1.7 können ausschließlich gemeinsam angemietet werden.
** Die Mieteinheiten ME 4.18 und ME 4.19 können ausschließlich gemeinsam angemietet werden.
Die Büroflächen befinden sich in einem etablierten und gut angebundenen Gewerbestandort im Kölner Stadtteil Kalk. Das Umfeld ist geprägt von einer Mischung aus Büro-, Dienstleistungs- und Gewerbenutzungen und bietet eine angenehme, professionelle Arbeitsatmosphäre. Die Anbindung an den Individualverkehr ist sehr gut, sowohl die Kölner Innenstadt als auch die umliegenden Autobahnen sind in wenigen Minuten erreichbar. Öffentliche Verkehrsmittel befinden sich in fußläufiger Entfernung und gewährleisten eine komfortable Erreichbarkeit für Mitarbeiter und Kunden. Einkaufsmöglichkeiten sowie gastronomische Angebote zur täglichen Versorgung sind ebenfalls im näheren Umfeld vorhanden.
• Verkabelung: teilw. CAT7-Verkabelung
• Verkabelungsort: Fensterbankkabelkanäle, Bodentanks
• Kühlung/Lüftung: teilweise klimatisiert
• Sonnenschutz: außenliegend, elektrisch
• Teeküvollausgestattete Teeküchen
• Beleuchtung: LED-Beleuchtung
• Rasterdeckenleuchten
• Bodenbelag: Teppichboden, Parkett, Vinyl
Es gelten ausschließlich unsere AGB (www.ruhr-real.de/agb). Wir möchten Sie darauf hinweisen, dass die Angaben ausschließlich auf den uns vom Eigentümer übermittelten Unterlagen und Informationen basieren. Für Richtigkeit und Vollständigkeit übernehmen wir keine Gewähr. Zwischenvermietung vorbehalten.
Adresse
Auf Google Maps öffnen-
Stadt: Köln
-
PLZ: 51105
-
Land: Deutschland








