Repräsentative Büros mit Open Space Konzept | viele Stellplätze vorhanden | Glasfaseranschluss
- 0
- 0
Details
Updated on Januar 16, 2026 at 11:23 a.m.-
Immobilien-ID 1246/E10
-
Preis Auf Anfrage
-
Gesamtfläche des Objekts 510 m²
-
Baujahr 1946
-
Art der Immobilie Büroflächen
-
Eigenschaftenstatus Zu Vermieten
-
Nebenkosten Auf Anfrage
Beschreibung
Der repräsentative Büro- und Lagerkomplex verfügt über einen eindrucksvollen Eingangsbereich mit zentral besetztem Empfang. Durch die helle Eingangshalle gelangt man mithilfe des Treppenhaus und den Personenaufzügen problemlos in alle Etagen des Gebäudes. Die Büroflächen sind mit einem Teppichboden, teils auch mit Laminat ausgestattet. Die Verkabelung verläuft über Bodentanks. Dem Mieter steht eine hauseigene Kantine zur Verfügung. Ferner können Parkplätze im Parkhaus angemietet werden. Die Büros sind voll klimatisiert. Ein Glasfaseranschluss liegt bereits im Gebäude und garantiert schnelles Internet.
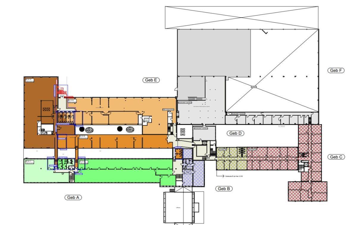
Zur Zeit stehen folgende Flächen zur Disposition:
EG 1: ca. 550 m²
EG 2: ca. 620 m²
EG 3: ca. 510 m² (+ 490 m² Archiv)
EG 4: ca. 510 m²
EG 6: ca. 700 m²
EG + 1. OG: ca. 513 m²
1. OG 7: ca. 675 m²
1. OG 8: ca. 460 m²
1. OG 9: ca. 835 m²
1. OG 10: ca. 705 m²
1. OG 11: ca. 250 m²
1. OG B + C: ca. 1.000 m²
Lager K1: ca. 2.600 m²
Der Büro- & Lagerkomplex ist im Gewerbegebiet Hagen-Boele situiert. Die Lage zeichnet sich durch eine gute Autobahnanbindung an die A1 aus. Darüber hinaus befindet sich ein gut sortiertes Fachmarktcenter in der Nachbarschaft. Darüber hinaus liegen Haltestellen des ÖPNV-Netz in der Nähe des Objektes.
Bedeutende Unternehmen in der Büromarktzone: Adler Pelzer Holding GmbH, Douglas Group Technology GmbH & Co. KG, STS Group AG, Leif Nelson GmbH
Hotels in der Umgebung: Mercure Hotel, Campushotel, Arcadeon Hotel
• Verkabelung: CAT-5
• Verkabelungsort: Bodentanks
• Bodenbelag: Teppich-, Laminat-, Steinboden
• Personenaufzug
• Beleuchtung: Rasterleuchten
• Verkabelungsort: Bodentanks
• Teeküche
• Glasfaseranschluss
Die Ausstattung kann bei Bedarf angepasst werden!
Es gelten ausschließlich unsere AGB (www.ruhr-real.de/agb). Wir möchten Sie darauf hinweisen, dass die Angaben ausschließlich auf den uns vom Eigentümer übermittelten Unterlagen und Informationen basieren. Für Richtigkeit und Vollständigkeit übernehmen wir keine Gewähr. Zwischenvermietung vorbehalten.
Adresse
Auf Google Maps öffnen-
Stadt: Hagen
-
PLZ: 58099
-
Land: Deutschland









