RUHR REAL: Ihre neue Bürofläche in Essen | flexibler Grundriss | zentrumsnah
- 6,50€
- 6,50€ pro m²
- 6,50€
- 6,50€ pro m²
Details
Updated on September 26, 2025 at 3:11 p.m.-
Immobilien-ID 1818/E4
-
Preis 6,50€ / m²
-
Gesamtfläche des Objekts 702 m²
-
Baujahr 1993
-
Art der Immobilie Büroflächen
-
Eigenschaftenstatus Zu Vermieten
-
Nebenkosten Auf Anfrage
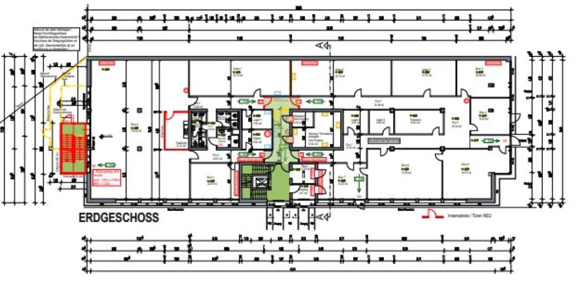
Beschreibung
Die Immobilie kann sowohl als Praxis- als auch als Bürofläche genutzt werden und bietet durch ihren zentralen Standort eine strategisch vorteilhafte Lage. Darüber hinaus stehen auf dem Grundstück umfangreiche Parkmöglichkeiten zur Verfügung. Je nach Bedarf können die Flächen im Gesamten oder geteilt angemietet und individuell gestaltet werden.
Derzeit stehen folgende Flächen zur Disposition:
EG: ca. 738,92 m²
1. OG: ca. 704,41 m²
2. OG: ca. 706,93 m²
3. OG: ca. 702,24 m²
4. OG: ca. 704,38 m²
Gesamtfläche: ca. 3.556,78 m²
Die angebotene Liegenschaft liegt zentrumsnah im Stadtteil Holsterhausen, südwestlich der Innenstadt und in der Nähe des Universitätsklinikums Essen. Die Lage bietet eine sehr gute infrastrukturelle Versorgung. In wenigen Minuten sind Bushaltestellen sowie Autobahnen wie die A40 und die B224 zu erreichen.
Aufgrund der Innenstadtnähe ist überdies für die örtliche Nahversorgung gesorgt.
Hotels in der Nähe: Atlantic Congress Hotel, Hotel an der Gruga, Novum Hotel
Bedeutende Unternehmen in der Büromarktzone: Funke Mediengruppe, FOM, GFKL Financial Services, BITMARCK
• Sonnenschutz: außenliegend, elektrisch
• Bodenbelag: Vinylboden
• Verkabelung: vom Vormieter
• Kabelführung: Kabelkanäle
• Beleuchtung: Deckenleuchten
• Teeküche: vorhanden
• Aufzug: Personenaufzug
• Barrierearm: Ja, ebenerdiger Zugang
Sonstiges: Flexible Raumaufteilung möglich
Es gelten ausschließlich unsere AGB (www.ruhr-real.de/agb). Wir möchten Sie darauf hinweisen, dass die Angaben ausschließlich auf den uns vom Eigentümer übermittelten Unterlagen und Informationen basieren. Für Richtigkeit und Vollständigkeit übernehmen wir keine Gewähr. Zwischenvermietung vorbehalten.
Adresse
Auf Google Maps öffnen-
Stadt: Essen
-
PLZ: 45145
-
Land: Deutschland








