TOP LAGE in Dortmund | Attraktive und modernisierte Büroflächen | Stellplätze vorhanden
- 14,00€
- 14,00€ pro m²
- 14,00€
- 14,00€ pro m²
Details
Updated on September 26, 2025 at 3:10 p.m.-
Immobilien-ID 1017/E3
-
Preis 14,00€ / m²
-
Gesamtfläche des Objekts 365 m²
-
Baujahr 1960
-
Art der Immobilie Büroflächen
-
Eigenschaftenstatus Zu Vermieten
-
Nebenkosten Auf Anfrage
Beschreibung
Bei dem angebotenen Objekt handelt es sich um ein 1960 erbautes und stetig modernisiertes Bürogebäude. Situiert in der Dortmunder Innenstadt, nahe des Hauptbahnhofes ist es besonders attraktiv. Die Liegenschaft befindet sich in einem sehr modernen und gepflegtem Zustand und überzeugt neben der hervorragenden Lage auch durch sein äußeres Erscheinungsbild. Die hochwertige Marmor-Hausfassade lassen das Objekt edel wirken und die hellen Büroräume schaffen eine angenehme Arbeitsatmosphäre.
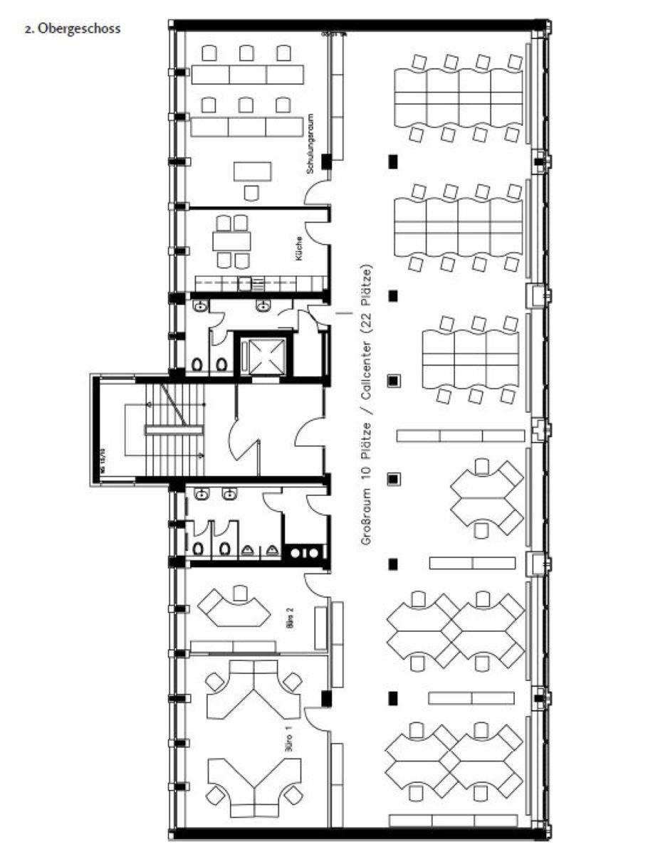
Darüber hinaus verfügt das Gebäude über einen flexiblen Grundriss und somit über optimale Aufteilungsmöglichkeiten. Vom Einzelbüro bis zum Großraumbüro ist in dieser Fläche alles darstellbar und die Gestaltung kann dabei individuell nach Mieterwunsch erfolgen.
Stellplätze sind nach Mieterwunsch ebenfalls flexibel anmietbar.
Zur Zeit stehen folgende Flächen zur Disposition:
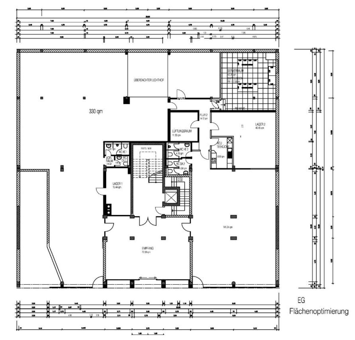
EG: 684,21 m²
1. OG: 310,92 m²
2. OG: 364,72 m²
3. OG: 353,72 m²
4. OG: 361,34 m²
5. OG: 340,49 m²
Die angebotene Bürofläche ist in der Dortmunder Innenstadt situiert und befindet sich in direkter Nachbarschaft zum Hauptbahnhof. Die zentrale Lage mit ausgezeichneter ÖPNV-Anbindung und Infrastruktur hat eine Vielzahl an umsatzstarken Firmen jeglicher Branche hergezogen. Auch bekannte Modeketten, Gastronomien, Parfümerien oder Elektronik Märkte sind zahlreich vertreten. Markante Gebäude sind die Corso Passage sowie das Krügerhaus.
Bedeutende Unternehmen in der Büromarktzone: Ruhr Nachrichten Verlag, Creditreform Dortmund
Hotels in der Umgebung: Hotel NH Dortmund, Sport Hotel Dortmund, Hotel Esplanade, Hotel Königshof, Mercure Hotel Dortmund
• Öffenbare Fenster: vorhanden
• Bodenbelag: Teppichboden
• Sonnenschutz: außenliegend elektrisch
• Teeküche: voll ausgestattet
• Beleuchtung: Aufbauleuchten
• Kühlung: nicht vorhanden
Es gelten ausschließlich unsere AGB (www.ruhr-real.de/agb). Wir möchten Sie darauf hinweisen, dass die Angaben ausschließlich auf den uns vom Eigentümer übermittelten Unterlagen und Informationen basieren. Für Richtigkeit und Vollständigkeit übernehmen wir keine Gewähr. Zwischenvermietung vorbehalten.
Adresse
Auf Google Maps öffnen-
Stadt: Dortmund
-
PLZ: 44137
-
Land: Deutschland









