Top Lage | Stadion-Aussicht | Provisionsfrei
- 11,90€
- 11,90€ pro m²
Details
Updated on November 13, 2025 at 12:01 a.m.-
Immobilien-ID 3166/E2
-
Preis 11,90€ / m²
-
Gesamtfläche des Objekts 330 m²
-
Baujahr 2015
-
Art der Immobilie Büroflächen
-
Eigenschaftenstatus Zu Vermieten
-
Nebenkosten Auf Anfrage
Beschreibung
Die angebotene Liegenschaft ist ein modernes und repräsentatives Bürogebäude. Die Flächenaufteilung lässt sich nach Mieterwunsch in weiten Teilen individualisieren. Das Objekt befindet sich in einem neuwertigen Zustand, verfügt über Personenfahrstühle und ist barrierefrei zugänglich.
Die Flächen sind klimatisiert und verfügen über einen Glasfaseranschluss.
In den ausgewiesenen Nebenkosten sind bereits die Kosten für Heizung & Kühlung enthalten.
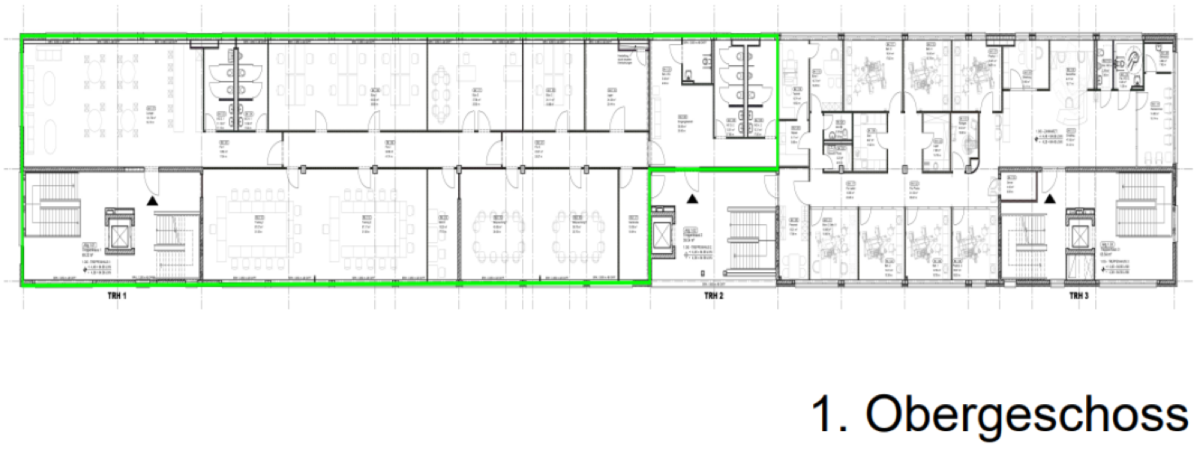
Derzeit stehen folgende Flächen zur Disposition:
EG: ca. 128 m² (Büro)
1. OG: ca. 661 m² (Büro) + 86 m²
4. OG: 330 m² (Büro) + 71 m²
Die Immobilie ist im Mönchengladbacher Nordpark, in einem attraktiven und elitären Umfeld gelegen. Das Borussia-Stadion ist fußläufig erreichbar.
Die hochfrequentierten Bundesstraßen B 57 und B 11 sind, genau wie eine Anbindung an die Autobahn A 61, innerhalb kürzester Zeit erreichbar.
Anschlussmöglichkeiten an den ÖPNV sind nahe gelegen. Gleiches gilt für ein diverses, gastronomisches Angebot sowie Läden des täglichen Bedarfs.
Bedeutende Unternehmen in der Büromarktzone: FAMO GmbH, Van Laack, Borussia Mönchengladbach
Hotels in der Umgebung: H4 Hotel, Palace St.George, Hotel Tannenhof
• Bodenbelag: nach Mieterwunsch
• Verkabelung: CAT-7, Glasfaser
• Kabelführung: Bodentanks
• Beleuchtung: nach Vereinbarung
• Teeküche: kann übernommen werden / Anschluss vorhanden
• Aufzug: Personenaufzüge
• Barrierearm: barrierefreier Zugang
• Lüftung/Klimatisierung: Klimatisierung vorhanden
Die Ausstattung kann bei Bedarf angepasst werden!
Es gelten ausschließlich unsere AGB (www.ruhr-real.de/agb). Wir möchten Sie darauf hinweisen, dass die Angaben ausschließlich auf den uns vom Eigentümer übermittelten Unterlagen und Informationen basieren. Für Richtigkeit und Vollständigkeit übernehmen wir keine Gewähr. Zwischenvermietung vorbehalten.
Adresse
Auf Google Maps öffnen-
Stadt: Mönchengladbach
-
PLZ: 41179
-
Land: Deutschland
- Christopher Schürk





