Traumhafte Bürofläche in der Essener City!
- 13,00€
- 13,00€ pro m²
Details
Updated on April 28, 2026 at 10:15 a.m.-
Immobilien-ID 4830/G1/E1
-
Preis 13,00€ / m²
-
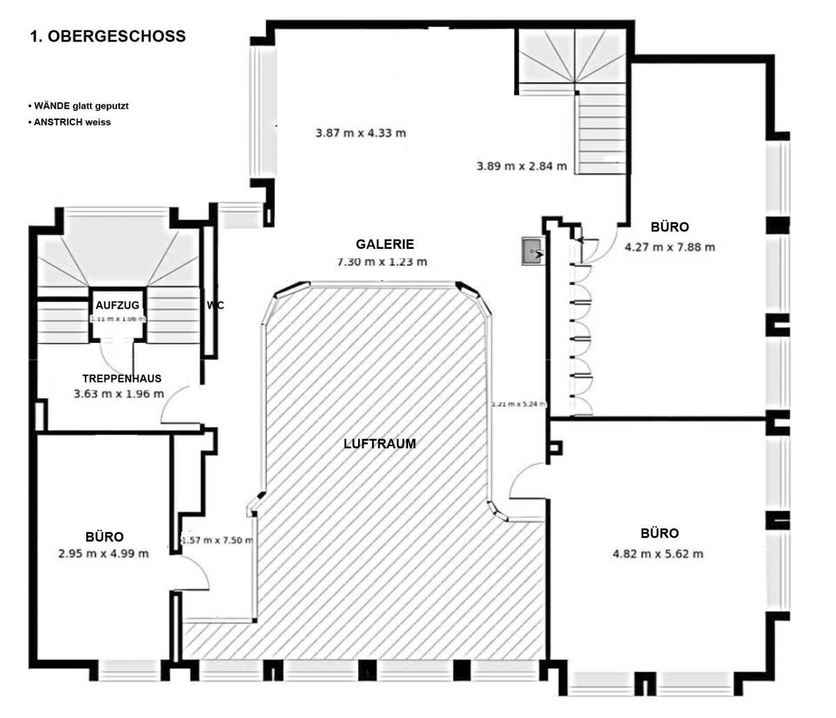
Gesamtfläche des Objekts 430 m²
-
Art der Immobilie Büroflächen
-
Eigenschaftenstatus Zu Vermieten
-
Nebenkosten Auf Anfrage
Beschreibung
Dieses attraktive Gewerbeobjekt befindet sich in bester Lage der Essener Innenstadt und überzeugt durch seine gute Erreichbarkeit sowie eine durchdachte Flächenaufteilung.
Der Innenbereich wird derzeit umfassend renoviert, wodurch zukünftige Mieter die Möglichkeit haben, die Räumlichkeiten nach eigenen Vorstellungen mitzugestalten. Die flexibel nutzbaren Grundrisse und großen Fenster sorgen für ein angenehmes und helles Arbeitsumfeld.
Dank der zentralen Lage profitieren Nutzer von einer hervorragenden Infrastruktur mit kurzen Wegen zu Einkaufsmöglichkeiten, Gastronomie und öffentlichen Verkehrsmitteln.
Das Bürogebäude befindet sich im Citykern von Essen und in direkter Lage zur Essener Innenstadt. Der Limbecker Platz befindet sich nur ca. 5 Gehminuten entfernt. Durch die zentrale Lage, bietet das Objekt eine hervorragende ÖPVN Anbindung. Die Autobahn A40 und die Bundesstraße B224 ist innerhalb weniger Minuten zu erreichen.
Hotels in der Umgebung: Novum Hotel, NH Hotel, Welcome Hotel Essen
Bedeutende Unternehmen in der Büromarktzone: Santander Bank, Commerzbank, Deutsche Bank, Stadt Essen, Radio Essen
• gehobene Ausstattung
• Open Space
Es gelten ausschließlich unsere AGB (www.ruhr-real.de/agb). Wir möchten Sie darauf hinweisen, dass die Angaben ausschließlich auf den uns vom Eigentümer übermittelten Unterlagen und Informationen basieren. Für Richtigkeit und Vollständigkeit übernehmen wir keine Gewähr. Zwischenvermietung vorbehalten.
Adresse
Auf Google Maps öffnen-
Stadt: Essen
-
PLZ: 45127
-
Land: Deutschland





